Log In/Sign Up
Your email has been sent.
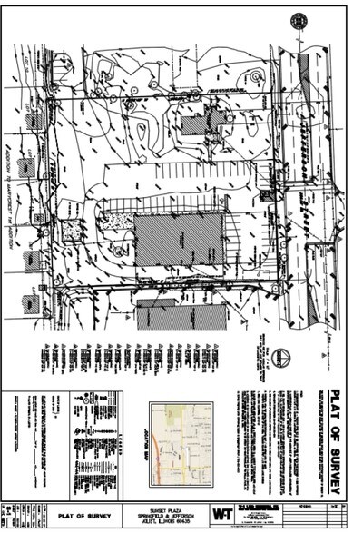
2210 W Jefferson St
Joliet, IL 60435
Land For Sale
·
1.72 AC


Investment Highlights
- Located at a lighted intersection.
- Springfield Avenue dead-ends into property.
Executive Summary
1.72 acres of land for sale. National tenants located around the site.
Property Facts
1 Lot Available
Lot
| Lot Size | 1.72 AC |
| Lot Size | 1.72 AC |
Description
Owner is a licensed Real Estate Broker in Illinois. Managing Broker - Owner.
1 of 3
Videos
Matterport 3D Exterior
Matterport 3D Tour
Photos
Street View
Street
Map
