Log In/Sign Up
Your email has been sent.
2214 5th St - Shoppes at Banning and Fifth 7,651 SF Office/Medical Condo Unit in White Bear Lake, MN 55110



Investment Highlights
- Private Entrance, Multiple Exam Room/Offices, Vaulted Ceilings with Wood Beams
- Central Air with Multiple Zones
Executive Summary
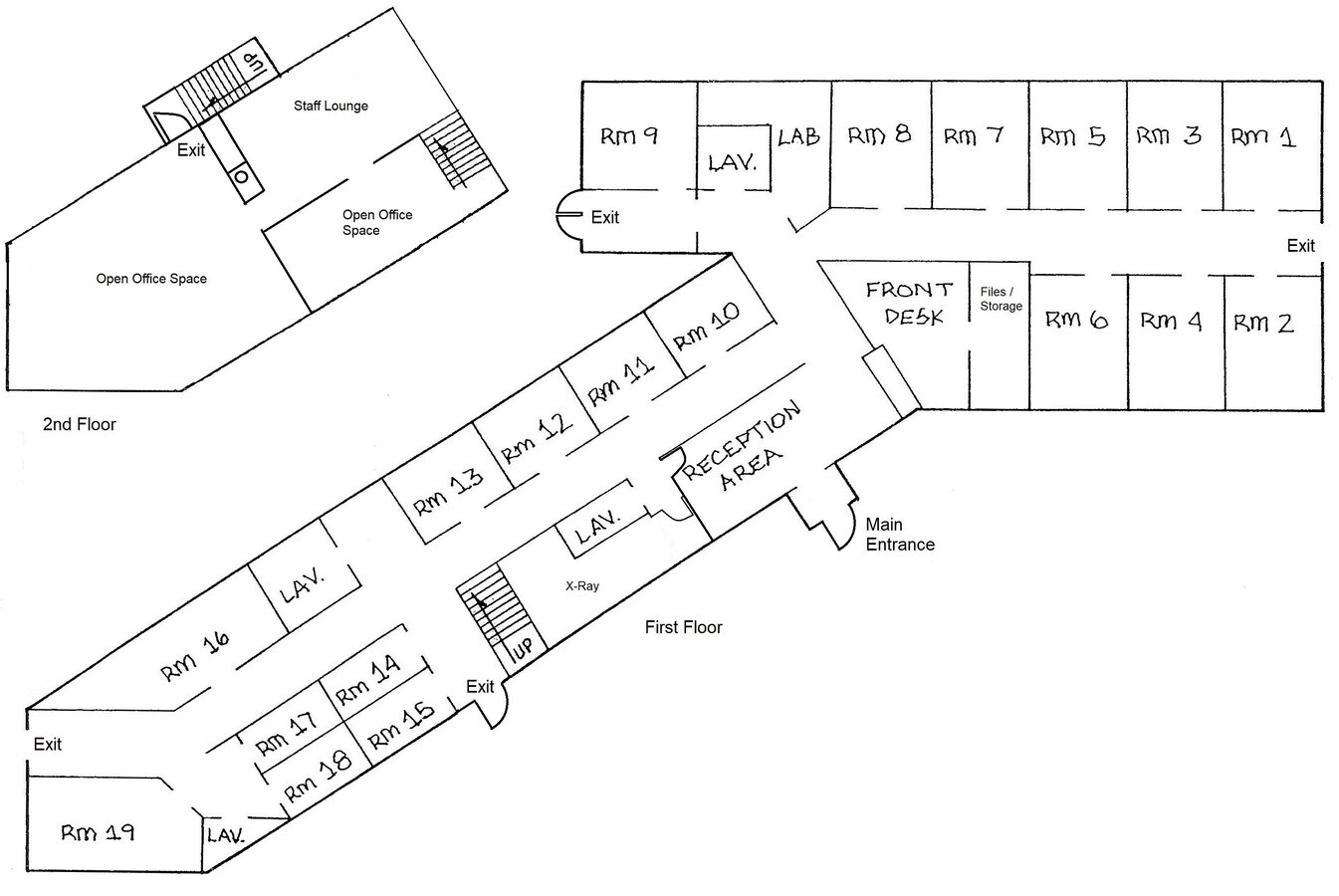
This former medical office would be ideal for general practice, specialty medical, counseling clinic, autism clinic, spa, or a business that wants visibility, a professional environment, and is conveniently located just a few steps from a wide array of retail, dining and entertainment.
1 Unit Available
Unit 6-8
| Unit Size | 7,651 SF | Sale Type | Investment or Owner User |
| Condo Use | Office/Medical |
| Unit Size | 7,651 SF |
| Condo Use | Office/Medical |
| Sale Type | Investment or Owner User |
Description
- Private Entrance, Multiple Exam Room/Offices, Vaulted Ceilings with Wood Beams
- Central Air with Multiple Zones,
- Private Parking Lot, Large Public Parking Lot and Off-Street Parking Available
2214 5th Street, White Bear Lake, MN
2214 5th Street, White Bear Lake, MN
2214 5th Street, White Bear Lake, MN
1 of 3
Videos
Matterport 3D Exterior
Matterport 3D Tour
Photos
Street View
Street
Map
Property Facts
The following property facts and amenities apply to the entire building. Details for individual condo units may vary and are listed in the unit information above.
Amenities
- 24 Hour Access
- Signage
- Monument Signage
- Air Conditioning
Moderately walkable
60/100
Exceptionally drivable
90/100
Fairly bikeable
50/100
1 of 19
Videos
Matterport 3D Exterior
Matterport 3D Tour
Photos
Street View
Street
Map
Presented by
2214 5th St - Shoppes at Banning and Fifth
Already a member? Log In
Hmm, there seems to have been an error sending your message. Please try again.
Thanks! Your message was sent.


