Your email has been sent.
Woodland Medical Center 22341 W Eight Mile Rd 1,445 - 16,304 SF of Office/Medical Space Available in Detroit, MI 48219



Highlights
- 53,629 SF Medical Office Building.
- New ADA complaint Elevator 2024 & Mechanical Systems.
- Centrally located within the Detroit metropolitan marketplace, easily accessible to all major hospital systems and major freeways.
- Newly Renovated common areas.
- Onsight management and Security.
- Excellent Turnkey 2nd generation & ADA complaint medical suites.
All Available Spaces(5)
Display Rental Rate as
- Space
- Size
- Term
- Rental Rate
- Space Use
- Build-Out
- Available
Suite 1 – 5,118 RSF – Urgent Care. 13+ exam rooms with plumbing; Large waiting area & reception; Procedure, lab & trauma rooms; 3 restrooms within suite; Spacious medical corridors & circular flow
- Listed lease rate plus proportional share of utilities
- Mostly Open Floor Plan Layout
- Space is in Excellent Condition
- Spacious medical corridors & circular flow.
- Fully Built-Out as Standard Medical Space
- Fits 13 - 41 People
- Reception Area
Suite 2 – 1,445 RSF - Pharmacy - Pharmacy. Turnkey infrastructure in place.
- Listed lease rate plus proportional share of utilities
- Mostly Open Floor Plan Layout
- Space is in Excellent Condition
- Pharmacy, Turnkey infrastructure in place.
- Fully Built-Out as Standard Medical Space
- Fits 4 - 12 People
- Reception Area
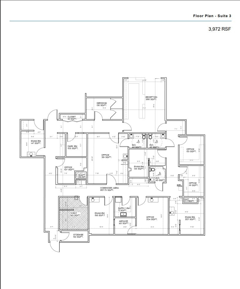
Blood draw lab; X-ray room, dark, supply & archive rooms; Exam & offices, dressing rooms; 3 restrooms in suite
- Listed lease rate plus proportional share of utilities
- Mostly Open Floor Plan Layout
- Space is in Excellent Condition
- Includes Blood draw lab, x-ray room and exam rooms
- Fully Built-Out as Standard Medical Space
- Fits 10 - 32 People
- Secure Storage
Suite 4 – 2,653 RSF – NW Corner Suite. Pediatric & Primary Care; 8+ exam rooms & large reception / waiting room.
- Listed lease rate plus proportional share of utilities
- Mostly Open Floor Plan Layout
- Space is in Excellent Condition
- Large reception / waiting room.
- Fully Built-Out as Standard Medical Space
- Fits 7 - 22 People
- Reception Area
Suite 5 – 3,116 RSF – NE Corner Suite. OBGYN; Very nice reception, lab & circular flow; 8 exam rooms, lab, 3 restrooms.
- Listed lease rate plus proportional share of utilities
- Mostly Open Floor Plan Layout
- Space is in Excellent Condition
- Very nice reception, lab & circular flow.
- Fully Built-Out as Standard Medical Space
- Fits 8 - 25 People
- Reception Area
| Space | Size | Term | Rental Rate | Space Use | Build-Out | Available |
| 1st Floor, Ste 1 | 5,118 SF | Negotiable | $16.00 /SF/YR $1.33 /SF/MO $81,888 /YR $6,824 /MO | Office/Medical | Full Build-Out | Now |
| 1st Floor, Ste 2 | 1,445 SF | Negotiable | $16.00 /SF/YR $1.33 /SF/MO $23,120 /YR $1,927 /MO | Office/Medical | Full Build-Out | Now |
| 1st Floor, Ste 3 | 3,972 SF | Negotiable | $16.00 /SF/YR $1.33 /SF/MO $63,552 /YR $5,296 /MO | Office/Medical | Full Build-Out | Now |
| 1st Floor, Ste 4 | 2,653 SF | Negotiable | $16.00 /SF/YR $1.33 /SF/MO $42,448 /YR $3,537 /MO | Office/Medical | Full Build-Out | Now |
| 1st Floor, Ste 5 | 3,116 SF | Negotiable | $16.00 /SF/YR $1.33 /SF/MO $49,856 /YR $4,155 /MO | Office/Medical | Full Build-Out | Now |
1st Floor, Ste 1
| Size |
| 5,118 SF |
| Term |
| Negotiable |
| Rental Rate |
| $16.00 /SF/YR $1.33 /SF/MO $81,888 /YR $6,824 /MO |
| Space Use |
| Office/Medical |
| Build-Out |
| Full Build-Out |
| Available |
| Now |
1st Floor, Ste 2
| Size |
| 1,445 SF |
| Term |
| Negotiable |
| Rental Rate |
| $16.00 /SF/YR $1.33 /SF/MO $23,120 /YR $1,927 /MO |
| Space Use |
| Office/Medical |
| Build-Out |
| Full Build-Out |
| Available |
| Now |
1st Floor, Ste 3
| Size |
| 3,972 SF |
| Term |
| Negotiable |
| Rental Rate |
| $16.00 /SF/YR $1.33 /SF/MO $63,552 /YR $5,296 /MO |
| Space Use |
| Office/Medical |
| Build-Out |
| Full Build-Out |
| Available |
| Now |
1st Floor, Ste 4
| Size |
| 2,653 SF |
| Term |
| Negotiable |
| Rental Rate |
| $16.00 /SF/YR $1.33 /SF/MO $42,448 /YR $3,537 /MO |
| Space Use |
| Office/Medical |
| Build-Out |
| Full Build-Out |
| Available |
| Now |
1st Floor, Ste 5
| Size |
| 3,116 SF |
| Term |
| Negotiable |
| Rental Rate |
| $16.00 /SF/YR $1.33 /SF/MO $49,856 /YR $4,155 /MO |
| Space Use |
| Office/Medical |
| Build-Out |
| Full Build-Out |
| Available |
| Now |
1st Floor, Ste 1
| Size | 5,118 SF |
| Term | Negotiable |
| Rental Rate | $16.00 /SF/YR |
| Space Use | Office/Medical |
| Build-Out | Full Build-Out |
| Available | Now |
Suite 1 – 5,118 RSF – Urgent Care. 13+ exam rooms with plumbing; Large waiting area & reception; Procedure, lab & trauma rooms; 3 restrooms within suite; Spacious medical corridors & circular flow
- Listed lease rate plus proportional share of utilities
- Fully Built-Out as Standard Medical Space
- Mostly Open Floor Plan Layout
- Fits 13 - 41 People
- Space is in Excellent Condition
- Reception Area
- Spacious medical corridors & circular flow.
1st Floor, Ste 2
| Size | 1,445 SF |
| Term | Negotiable |
| Rental Rate | $16.00 /SF/YR |
| Space Use | Office/Medical |
| Build-Out | Full Build-Out |
| Available | Now |
Suite 2 – 1,445 RSF - Pharmacy - Pharmacy. Turnkey infrastructure in place.
- Listed lease rate plus proportional share of utilities
- Fully Built-Out as Standard Medical Space
- Mostly Open Floor Plan Layout
- Fits 4 - 12 People
- Space is in Excellent Condition
- Reception Area
- Pharmacy, Turnkey infrastructure in place.
1st Floor, Ste 3
| Size | 3,972 SF |
| Term | Negotiable |
| Rental Rate | $16.00 /SF/YR |
| Space Use | Office/Medical |
| Build-Out | Full Build-Out |
| Available | Now |
Blood draw lab; X-ray room, dark, supply & archive rooms; Exam & offices, dressing rooms; 3 restrooms in suite
- Listed lease rate plus proportional share of utilities
- Fully Built-Out as Standard Medical Space
- Mostly Open Floor Plan Layout
- Fits 10 - 32 People
- Space is in Excellent Condition
- Secure Storage
- Includes Blood draw lab, x-ray room and exam rooms
1st Floor, Ste 4
| Size | 2,653 SF |
| Term | Negotiable |
| Rental Rate | $16.00 /SF/YR |
| Space Use | Office/Medical |
| Build-Out | Full Build-Out |
| Available | Now |
Suite 4 – 2,653 RSF – NW Corner Suite. Pediatric & Primary Care; 8+ exam rooms & large reception / waiting room.
- Listed lease rate plus proportional share of utilities
- Fully Built-Out as Standard Medical Space
- Mostly Open Floor Plan Layout
- Fits 7 - 22 People
- Space is in Excellent Condition
- Reception Area
- Large reception / waiting room.
1st Floor, Ste 5
| Size | 3,116 SF |
| Term | Negotiable |
| Rental Rate | $16.00 /SF/YR |
| Space Use | Office/Medical |
| Build-Out | Full Build-Out |
| Available | Now |
Suite 5 – 3,116 RSF – NE Corner Suite. OBGYN; Very nice reception, lab & circular flow; 8 exam rooms, lab, 3 restrooms.
- Listed lease rate plus proportional share of utilities
- Fully Built-Out as Standard Medical Space
- Mostly Open Floor Plan Layout
- Fits 8 - 25 People
- Space is in Excellent Condition
- Reception Area
- Very nice reception, lab & circular flow.
Property Facts
Select Tenants
- Floor
- Tenant Name
- Industry
- 1st
- Extra Care Pharmacy Inc.
- Retailer
- 2nd
- Ima Group
- Health Care and Social Assistance
- 1st
- Medical Services Group Plc
- Public Administration
- 1st
- Quality Family Group PLC
- Health Care and Social Assistance
Presented by
Woodland Medical Center | 22341 W Eight Mile Rd
Hmm, there seems to have been an error sending your message. Please try again.
Thanks! Your message was sent.










