Your email has been sent.
Display Rental Rate as
- Space
- Size
- Term
- Rental Rate
- Space Use
- Build-Out
- Available
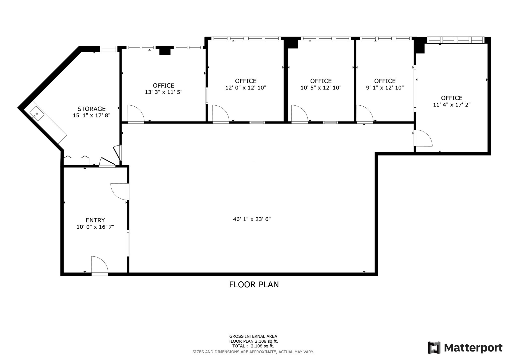
The building complex was built in 1992 and it has 2 stories. It features office and retail spaces with dental offices amongst others with an ample parking lot. Second Street Plaza is located very close to Highway 238, one block away from downtown Hayward Suite 240 is a spacious office on the second floor. It has approximately 2,350 SF office space. The suite has a reception area and a waiting room, a spacious Kitchenette, and multiple private offices. Commercial Tenants can savor a diverse culinary scene at eateries like Buffalo Bill's Brewery and The Golden Peacock Indian Restaurant. Nature enthusiasts can relish tranquil escapes at Hayward Japanese Gardens and Sulphur Creek Nature Center, while the arts thrive at the Hayward Area Historical Society & Museum and the Sun Gallery. With such a dynamic blend of amenities and attractions, Second Street Plaza presents an enticing opportunity for professionals seeking a vibrant office environment.
- Listed rate may not include certain utilities, building services and property expenses
- 6 Private Offices
- 6 Workstations
- Space is in Excellent Condition
- Central Heating System
- Kitchen
- Fully Carpeted
- Fully Built-Out as Standard Office
- 1 Conference Room
- Finished Ceilings: 8’
- Can be combined with additional space(s) for up to 3,950 SF of adjacent space
- Reception Area
- Print/Copy Room
- Accent Lighting
Suite 255 is located on the second floor with approximately 1,600 SF of office space. It has 3 private offices and a main area. It also has the potential to be combined with an adjacent unit with approximately 2,350 SF, expanding the total office space to 3,950 square feet. For the virtual tour, use this link: https://my.matterport.com/show/?m=g9wVv6ybkyM
- Listed rate may not include certain utilities, building services and property expenses
- 3 Private Offices
- Space is in Excellent Condition
- Central Air Conditioning
- Fully Built-Out as Standard Office
- 1 Conference Room
- Can be combined with additional space(s) for up to 3,950 SF of adjacent space
- Drop Ceilings
| Space | Size | Term | Rental Rate | Space Use | Build-Out | Available |
| 2nd Floor, Ste 240 | 2,350 SF | Negotiable | Upon Request Upon Request Upon Request Upon Request | Office | Full Build-Out | Now |
| 2nd Floor, Ste 255 | 1,600 SF | Negotiable | Upon Request Upon Request Upon Request Upon Request | Office | Full Build-Out | Now |
2nd Floor, Ste 240
| Size |
| 2,350 SF |
| Term |
| Negotiable |
| Rental Rate |
| Upon Request Upon Request Upon Request Upon Request |
| Space Use |
| Office |
| Build-Out |
| Full Build-Out |
| Available |
| Now |
2nd Floor, Ste 255
| Size |
| 1,600 SF |
| Term |
| Negotiable |
| Rental Rate |
| Upon Request Upon Request Upon Request Upon Request |
| Space Use |
| Office |
| Build-Out |
| Full Build-Out |
| Available |
| Now |
- Space
- Size
- Term
- Rental Rate
- Space Use
- Build-Out
- Available
Discover the Opportunity: This "plug and play" retail/cafe space is perfectly set up for a quick-service food business, like a bakery, cafe, or sandwich shop. Situated in the bustling heart of Hayward, the unit has a proven track record, previously occupied by Mad Butter Bakery and Subway. Location Advantage: Nestled in a thriving retail environment, you'll benefit from high foot traffic and a dynamic mix of nearby shopping and dining with convenient access to major transportation routes like Highway 238. This location presents an unmatched opportunity to establish and grow your business in a lively, high-demand setting. This front street corner space has great lighting, a hood (with a fan), a private restroom, a compartment sink, ideal to bring your equipment and run the business. FOR 3D TOUR PLEASE CLICK HERE: https://my.matterport.com/show/?m=NbB3Ntgxtkm
- Listed rate may not include certain utilities, building services and property expenses
- Space is in Excellent Condition
- Private Restrooms
- Plug & Play
- Corner cafe/bakery/quick services
- Fully Built-Out as a Restaurant or Café Space
- Central Air and Heating
- Corner Space
- Proximity to Downtown Hayward
- plug and play
The building complex was built in 1992 and it has 2 stories. It features office and retail spaces with dental offices amongst others with an ample parking lot. Second Street Plaza is located very close to Highway 238, one block away from downtown Hayward Suite 240 is a spacious office on the second floor. It has approximately 2,350 SF office space. The suite has a reception area and a waiting room, a spacious Kitchenette, and multiple private offices. Commercial Tenants can savor a diverse culinary scene at eateries like Buffalo Bill's Brewery and The Golden Peacock Indian Restaurant. Nature enthusiasts can relish tranquil escapes at Hayward Japanese Gardens and Sulphur Creek Nature Center, while the arts thrive at the Hayward Area Historical Society & Museum and the Sun Gallery. With such a dynamic blend of amenities and attractions, Second Street Plaza presents an enticing opportunity for professionals seeking a vibrant office environment.
- Listed rate may not include certain utilities, building services and property expenses
- 6 Private Offices
- 6 Workstations
- Space is in Excellent Condition
- Central Heating System
- Kitchen
- Fully Carpeted
- Fully Built-Out as Standard Office
- 1 Conference Room
- Finished Ceilings: 8’
- Can be combined with additional space(s) for up to 3,950 SF of adjacent space
- Reception Area
- Print/Copy Room
- Accent Lighting
Suite 255 is located on the second floor with approximately 1,600 SF of office space. It has 3 private offices and a main area. It also has the potential to be combined with an adjacent unit with approximately 2,350 SF, expanding the total office space to 3,950 square feet. For the virtual tour, use this link: https://my.matterport.com/show/?m=g9wVv6ybkyM
- Listed rate may not include certain utilities, building services and property expenses
- 3 Private Offices
- Space is in Excellent Condition
- Central Air Conditioning
- Fully Built-Out as Standard Office
- 1 Conference Room
- Can be combined with additional space(s) for up to 3,950 SF of adjacent space
- Drop Ceilings
| Space | Size | Term | Rental Rate | Space Use | Build-Out | Available |
| Ground, Ste 22549 | 735 SF | Negotiable | Upon Request Upon Request Upon Request Upon Request | Retail | Full Build-Out | Now |
| 2nd Floor, Ste 240 | 2,350 SF | Negotiable | Upon Request Upon Request Upon Request Upon Request | Office | Full Build-Out | Now |
| 2nd Floor, Ste 255 | 1,600 SF | Negotiable | Upon Request Upon Request Upon Request Upon Request | Office | Full Build-Out | Now |
Ground, Ste 22549
| Size |
| 735 SF |
| Term |
| Negotiable |
| Rental Rate |
| Upon Request Upon Request Upon Request Upon Request |
| Space Use |
| Retail |
| Build-Out |
| Full Build-Out |
| Available |
| Now |
2nd Floor, Ste 240
| Size |
| 2,350 SF |
| Term |
| Negotiable |
| Rental Rate |
| Upon Request Upon Request Upon Request Upon Request |
| Space Use |
| Office |
| Build-Out |
| Full Build-Out |
| Available |
| Now |
2nd Floor, Ste 255
| Size |
| 1,600 SF |
| Term |
| Negotiable |
| Rental Rate |
| Upon Request Upon Request Upon Request Upon Request |
| Space Use |
| Office |
| Build-Out |
| Full Build-Out |
| Available |
| Now |
Ground, Ste 22549
| Size | 735 SF |
| Term | Negotiable |
| Rental Rate | Upon Request |
| Space Use | Retail |
| Build-Out | Full Build-Out |
| Available | Now |
Discover the Opportunity: This "plug and play" retail/cafe space is perfectly set up for a quick-service food business, like a bakery, cafe, or sandwich shop. Situated in the bustling heart of Hayward, the unit has a proven track record, previously occupied by Mad Butter Bakery and Subway. Location Advantage: Nestled in a thriving retail environment, you'll benefit from high foot traffic and a dynamic mix of nearby shopping and dining with convenient access to major transportation routes like Highway 238. This location presents an unmatched opportunity to establish and grow your business in a lively, high-demand setting. This front street corner space has great lighting, a hood (with a fan), a private restroom, a compartment sink, ideal to bring your equipment and run the business. FOR 3D TOUR PLEASE CLICK HERE: https://my.matterport.com/show/?m=NbB3Ntgxtkm
- Listed rate may not include certain utilities, building services and property expenses
- Fully Built-Out as a Restaurant or Café Space
- Space is in Excellent Condition
- Central Air and Heating
- Private Restrooms
- Corner Space
- Plug & Play
- Proximity to Downtown Hayward
- Corner cafe/bakery/quick services
- plug and play
2nd Floor, Ste 240
| Size | 2,350 SF |
| Term | Negotiable |
| Rental Rate | Upon Request |
| Space Use | Office |
| Build-Out | Full Build-Out |
| Available | Now |
The building complex was built in 1992 and it has 2 stories. It features office and retail spaces with dental offices amongst others with an ample parking lot. Second Street Plaza is located very close to Highway 238, one block away from downtown Hayward Suite 240 is a spacious office on the second floor. It has approximately 2,350 SF office space. The suite has a reception area and a waiting room, a spacious Kitchenette, and multiple private offices. Commercial Tenants can savor a diverse culinary scene at eateries like Buffalo Bill's Brewery and The Golden Peacock Indian Restaurant. Nature enthusiasts can relish tranquil escapes at Hayward Japanese Gardens and Sulphur Creek Nature Center, while the arts thrive at the Hayward Area Historical Society & Museum and the Sun Gallery. With such a dynamic blend of amenities and attractions, Second Street Plaza presents an enticing opportunity for professionals seeking a vibrant office environment.
- Listed rate may not include certain utilities, building services and property expenses
- Fully Built-Out as Standard Office
- 6 Private Offices
- 1 Conference Room
- 6 Workstations
- Finished Ceilings: 8’
- Space is in Excellent Condition
- Can be combined with additional space(s) for up to 3,950 SF of adjacent space
- Central Heating System
- Reception Area
- Kitchen
- Print/Copy Room
- Fully Carpeted
- Accent Lighting
2nd Floor, Ste 255
| Size | 1,600 SF |
| Term | Negotiable |
| Rental Rate | Upon Request |
| Space Use | Office |
| Build-Out | Full Build-Out |
| Available | Now |
Suite 255 is located on the second floor with approximately 1,600 SF of office space. It has 3 private offices and a main area. It also has the potential to be combined with an adjacent unit with approximately 2,350 SF, expanding the total office space to 3,950 square feet. For the virtual tour, use this link: https://my.matterport.com/show/?m=g9wVv6ybkyM
- Listed rate may not include certain utilities, building services and property expenses
- Fully Built-Out as Standard Office
- 3 Private Offices
- 1 Conference Room
- Space is in Excellent Condition
- Can be combined with additional space(s) for up to 3,950 SF of adjacent space
- Central Air Conditioning
- Drop Ceilings
Property Overview
The building complex was built in 1992 and it has 2 stories. It features office and retail spaces with dental offices amongst others with an ample parking lot. Second Street Plaza is located very close to Highway 238, one block away f rom downtown Hayward.
Property Facts
Presented by
Second Street Plaza Bldg | 22535-22551 2nd St
Hmm, there seems to have been an error sending your message. Please try again.
Thanks! Your message was sent.












