Your email has been sent.
Highlights
- Industrial multi-tenant property
- Dock level shipping doors
- 18' clear heights
- Close to all amenities and public transportation
Features
All Available Spaces(2)
Display Rental Rate as
- Space
- Size
- Term
- Rental Rate
- Space Use
- Build-Out
- Available
- Lease rate does not include utilities, property expenses or building services
- 1 Loading Dock
- Can be combined with additional space(s) for up to 7,467 SF of adjacent space
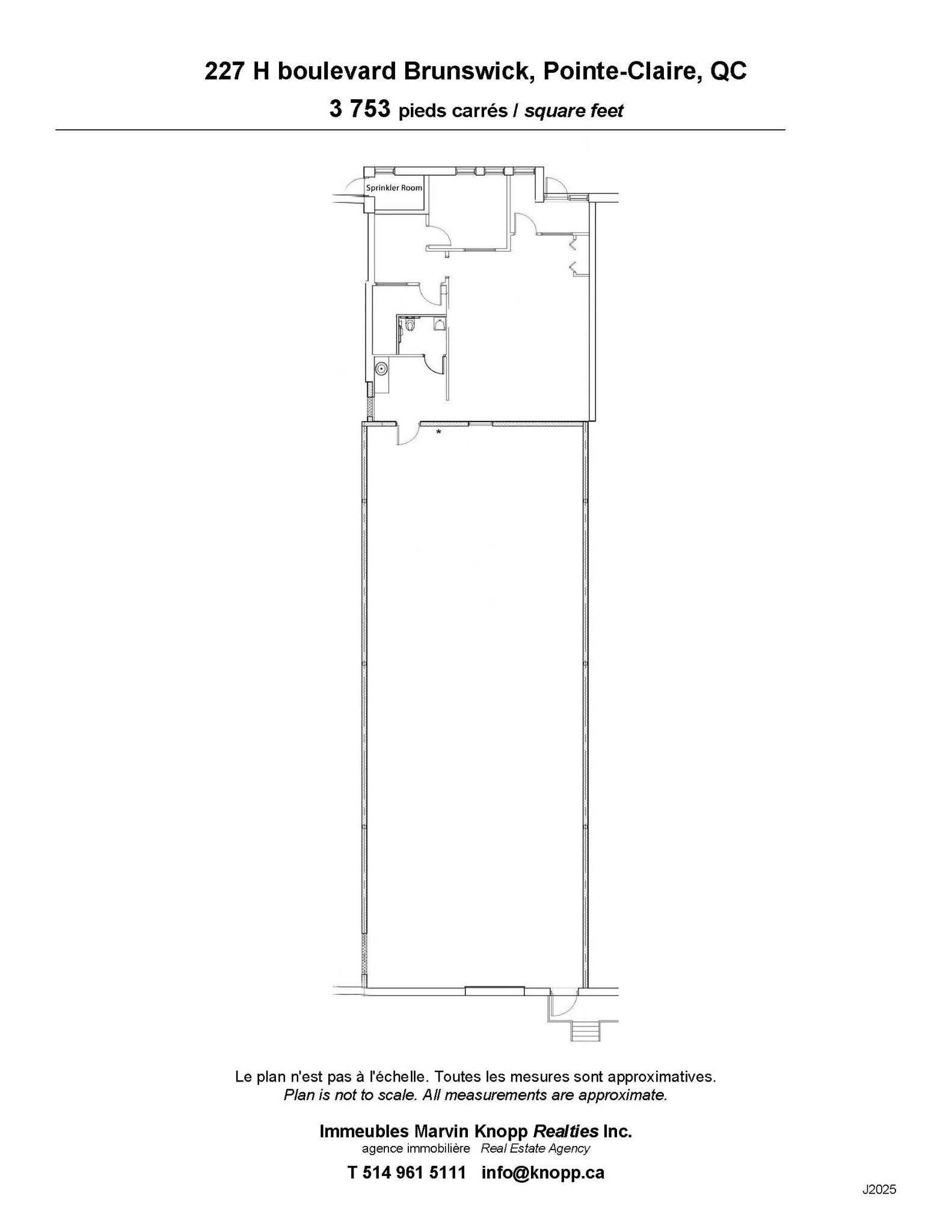
Ideal location for a small business requiring office space and dock level shipping. The space has 3 washrooms and a kitchen area. Easy access to Highways and public transportation. One block from Fairview Shopping Mall. Large parking area. Located in the heart of the Pointe-Claire Industrial Park. This offering does not constitute a promise or offer to sell or lease that could bind the property owner, but an invitation to submit such a promise or an offer. The information contained herein has been obtained from sources deemed reliable, interested parties should complete a due diligence inspection. This information may change and the property may be withdrawn from the market without notice.
- Lease rate does not include utilities, property expenses or building services
- Space is in Excellent Condition
- 1 Loading Dock
- Natural Light
- 3 washrooms and a kitchen area
- Bright space with many windows
- Includes 760 SF of dedicated office space
- Can be combined with additional space(s) for up to 7,467 SF of adjacent space
- Central Heating System
- 760 square feet of office space
- 1 dock level shipping door
| Space | Size | Term | Rental Rate | Space Use | Build-Out | Available |
| 1st Floor - H | 3,753 SF | Negotiable | Upon Request Upon Request Upon Request Upon Request | Industrial | - | Now |
| 1st Floor - K | 3,714 SF | 1-10 Years | $8.82 USD/SF/YR $0.74 USD/SF/MO $32,758 USD/YR $2,730 USD/MO | Industrial | Partial Build-Out | Now |
1st Floor - H
| Size |
| 3,753 SF |
| Term |
| Negotiable |
| Rental Rate |
| Upon Request Upon Request Upon Request Upon Request |
| Space Use |
| Industrial |
| Build-Out |
| - |
| Available |
| Now |
1st Floor - K
| Size |
| 3,714 SF |
| Term |
| 1-10 Years |
| Rental Rate |
| $8.82 USD/SF/YR $0.74 USD/SF/MO $32,758 USD/YR $2,730 USD/MO |
| Space Use |
| Industrial |
| Build-Out |
| Partial Build-Out |
| Available |
| Now |
1st Floor - H
| Size | 3,753 SF |
| Term | Negotiable |
| Rental Rate | Upon Request |
| Space Use | Industrial |
| Build-Out | - |
| Available | Now |
- Lease rate does not include utilities, property expenses or building services
- Can be combined with additional space(s) for up to 7,467 SF of adjacent space
- 1 Loading Dock
1st Floor - K
| Size | 3,714 SF |
| Term | 1-10 Years |
| Rental Rate | $8.82 USD/SF/YR |
| Space Use | Industrial |
| Build-Out | Partial Build-Out |
| Available | Now |
Ideal location for a small business requiring office space and dock level shipping. The space has 3 washrooms and a kitchen area. Easy access to Highways and public transportation. One block from Fairview Shopping Mall. Large parking area. Located in the heart of the Pointe-Claire Industrial Park. This offering does not constitute a promise or offer to sell or lease that could bind the property owner, but an invitation to submit such a promise or an offer. The information contained herein has been obtained from sources deemed reliable, interested parties should complete a due diligence inspection. This information may change and the property may be withdrawn from the market without notice.
- Lease rate does not include utilities, property expenses or building services
- Includes 760 SF of dedicated office space
- Space is in Excellent Condition
- Can be combined with additional space(s) for up to 7,467 SF of adjacent space
- 1 Loading Dock
- Central Heating System
- Natural Light
- 760 square feet of office space
- 3 washrooms and a kitchen area
- 1 dock level shipping door
- Bright space with many windows
Property Overview
Ideal location for a small business requiring office space and dock level shipping. Easy access to Highways and public transportation. One block from Fairview Shopping Mall. Large parking area. Located in the heart of the Pointe-Claire Industrial Park.
Warehouse Facility Facts
Presented by
227 Boul Brunswick
Hmm, there seems to have been an error sending your message. Please try again.
Thanks! Your message was sent.









