Log In/Sign Up
Your email has been sent.
Executive Place Offices 2285 Executive Dr 1,260 - 11,865 SF of Office/Medical Space Available in Lexington, KY 40505



Highlights
- Nearby Hamburg Pavilion, Lexington's most innovative new development, provides a multitude of amenities, including shopping and dining.
- Located near the intersection of Winchester Road and I-75
- Two-story atrium located at entrance greeted by polished granite/marble in the lobby
All Available Spaces(2)
Display Rental Rate as
- Space
- Size
- Term
- Rental Rate
- Space Use
- Build-Out
- Available
$3,100/month
- Rate includes utilities, building services and property expenses
- Office intensive layout
- 2 Conference Rooms
- Fully Built-Out as Standard Office
- Fits 5 - 15 People
- Space is in Excellent Condition
- Rate includes utilities, building services and property expenses
- Office intensive layout
- 2 Conference Rooms
- Fully Built-Out as Standard Office
- Fits 4 - 80 People
- Space is in Excellent Condition
| Space | Size | Term | Rental Rate | Space Use | Build-Out | Available |
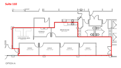
| 1st Floor, Ste 110 | 1,865 SF | 5 Years | $19.95 /SF/YR $1.66 /SF/MO $37,207 /YR $3,101 /MO | Office/Medical | Full Build-Out | Now |
| 2nd Floor, Ste 2nd Floor | 1,260-10,000 SF | 5 Years | $18.25 /SF/YR $1.52 /SF/MO $182,500 /YR $15,208 /MO | Office/Medical | Full Build-Out | Now |
1st Floor, Ste 110
| Size |
| 1,865 SF |
| Term |
| 5 Years |
| Rental Rate |
| $19.95 /SF/YR $1.66 /SF/MO $37,207 /YR $3,101 /MO |
| Space Use |
| Office/Medical |
| Build-Out |
| Full Build-Out |
| Available |
| Now |
2nd Floor, Ste 2nd Floor
| Size |
| 1,260-10,000 SF |
| Term |
| 5 Years |
| Rental Rate |
| $18.25 /SF/YR $1.52 /SF/MO $182,500 /YR $15,208 /MO |
| Space Use |
| Office/Medical |
| Build-Out |
| Full Build-Out |
| Available |
| Now |
1 of 2
Videos
Matterport 3D Exterior
Matterport 3D Tour
Photos
Street View
Street
Map
1st Floor, Ste 110
| Size | 1,865 SF |
| Term | 5 Years |
| Rental Rate | $19.95 /SF/YR |
| Space Use | Office/Medical |
| Build-Out | Full Build-Out |
| Available | Now |
$3,100/month
- Rate includes utilities, building services and property expenses
- Fully Built-Out as Standard Office
- Office intensive layout
- Fits 5 - 15 People
- 2 Conference Rooms
- Space is in Excellent Condition
1 of 2
Videos
Matterport 3D Exterior
Matterport 3D Tour
Photos
Street View
Street
Map
2nd Floor, Ste 2nd Floor
| Size | 1,260-10,000 SF |
| Term | 5 Years |
| Rental Rate | $18.25 /SF/YR |
| Space Use | Office/Medical |
| Build-Out | Full Build-Out |
| Available | Now |
- Rate includes utilities, building services and property expenses
- Fully Built-Out as Standard Office
- Office intensive layout
- Fits 4 - 80 People
- 2 Conference Rooms
- Space is in Excellent Condition
Property Overview
NAI Isaac is pleased to present leasing opportunities at Executive Place in Lexington. Executive Place is a +/-38,367 SF, four-story office building offering high quality office space. Its located in Eastern Fayette County with close proximity to the I-75/I-64 interchange, Hamburg Pavilion and downtown Lexington.
Property Facts
Building Type
Office
Year Built
1990
Building Height
4 Stories
Building Size
38,367 SF
Building Class
B
Typical Floor Size
9,592 SF
Parking
150 Surface Parking Spaces
Select Tenants
- Floor
- Tenant Name
- Industry
- 4th
- Aerotek Inc
- Professional, Scientific, and Technical Services
- 1st
- Blumine Health
- -
- 3rd
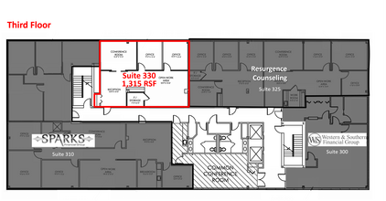
- Sparks Financial Group
- Finance and Insurance
- 3rd
- Western & Southern Life
- Finance and Insurance
1 1
Fairly walkable
40/100
Exceptionally drivable
100/100
Limited public transit
30/100
Somewhat bikeable
30/100
1 of 6
Videos
Matterport 3D Exterior
Matterport 3D Tour
Photos
Street View
Street
Map
1 of 1
Presented by
Executive Place Offices | 2285 Executive Dr
Already a member? Log In
Hmm, there seems to have been an error sending your message. Please try again.
Thanks! Your message was sent.






