Log In/Sign Up
Your email has been sent.
230 Ocean View Ave - Newport Luxury Home Development Opportunity 0.27 Acres of Residential Land Offered at $6,200,000 in Newport Beach, CA 92663



INVESTMENT HIGHLIGHTS
- Large Flat Lot
- Views of Newport Harbor, the Pacific Ocean, and Catalina Island
EXECUTIVE SUMMARY
Exceptional opportunity in the heart of Newport Heights, just steps from Mariners Mile dining and shopping. Perched on an elevated lot with sweeping views of Newport Harbor, the Pacific Ocean, and Catalina Island, this property offers rare potential to build a custom estate in one of Newport Beach’s most coveted communities.
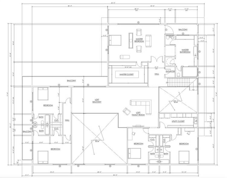
Approved plans call for a 9,148 sq ft modern residence with 8 bedrooms and 10 bathrooms, featuring dramatic living spaces, a private cinema, game room, elevator, and a primary suite with its own balcony. However, the seller is open to working with a buyer on custom plans if the included designs are not preferred. Located minutes from Newport Harbor, local beaches, world-class shopping at Fashion Island, and top-tier dining, this property offers both luxury and convenience. With proximity to Hoag Hospital, championship golf courses, and premier schools, it’s ideal as a full-time coastal residence or an exquisite vacation retreat. This is a rare chance to build a one-of-a-kind dream home in one of Newport Beach’s most desirable neighborhoods.
Approved plans call for a 9,148 sq ft modern residence with 8 bedrooms and 10 bathrooms, featuring dramatic living spaces, a private cinema, game room, elevator, and a primary suite with its own balcony. However, the seller is open to working with a buyer on custom plans if the included designs are not preferred. Located minutes from Newport Harbor, local beaches, world-class shopping at Fashion Island, and top-tier dining, this property offers both luxury and convenience. With proximity to Hoag Hospital, championship golf courses, and premier schools, it’s ideal as a full-time coastal residence or an exquisite vacation retreat. This is a rare chance to build a one-of-a-kind dream home in one of Newport Beach’s most desirable neighborhoods.
PROPERTY FACTS
| Price | $6,200,000 | Property Subtype | Residential |
| Sale Type | Investment or Owner User | Proposed Use | Single Family Development |
| No. Lots | 1 | Total Lot Size | 0.27 AC |
| Property Type | Land | ||
| Zoning | Residential - Residential | ||
| Price | $6,200,000 |
| Sale Type | Investment or Owner User |
| No. Lots | 1 |
| Property Type | Land |
| Property Subtype | Residential |
| Proposed Use | Single Family Development |
| Total Lot Size | 0.27 AC |
| Zoning | Residential - Residential |
1 LOT AVAILABLE
Lot
| Price | $6,200,000 | Lot Size | 0.27 AC |
| Price Per AC | $23,220,973.78 |
| Price | $6,200,000 |
| Price Per AC | $23,220,973.78 |
| Lot Size | 0.27 AC |
Exceptional opportunity in the heart of Newport Heights, just steps from Mariners Mile dining and shopping. Perched on an elevated lot with sweeping views of Newport Harbor, the Pacific Ocean, and Catalina Island.
1 1
Walk Score®
Very Walkable (86)
PROPERTY TAXES
| Parcel Number | 049-123-11 | Improvements Assessment | $0 |
| Land Assessment | $3,963,022 | Total Assessment | $3,963,022 |
PROPERTY TAXES
Parcel Number
049-123-11
Land Assessment
$3,963,022
Improvements Assessment
$0
Total Assessment
$3,963,022
1 of 9
VIDEOS
MATTERPORT 3D EXTERIOR
MATTERPORT 3D TOUR
PHOTOS
STREET VIEW
STREET
MAP
1 of 1
Presented by
230 Ocean View Ave - Newport Luxury Home Development Opportunity
Already a member? Log In
Hmm, there seems to have been an error sending your message. Please try again.
Thanks! Your message was sent.
