Your email has been sent.
Highlights
- 8,010± SF Modern Industrial Space For Lease At Grandview Business Park
- Office Area Reception, 6 Offices, 2 ADA Restrooms & Break Room
- Just 1.7 Miles From I-79 & 6.1 Miles From I-90
- 5,287± SF Warehouse Features 16' Ceilings, Shop Office, Shop Restroom, Overhead Door & Truck Dock
- Zoned I-1, Light Industrial - Floor Plan & 3D Tour Available
Features
All Available Space(1)
Display Rental Rate as
- Space
- Size
- Term
- Rental Rate
- Space Use
- Condition
- Available
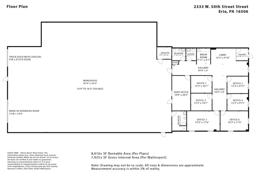
8,010± SF modern industrial space for lease at Grandview Business Park. 5,287± SF warehouse features 14'9" to 16'2" ceilings, 12'x14' drive-in overhead door, raised truck dock with leveler (8'W x 8'10"H overhead door), shop office, shop restroom, 200 amp, 3-phase power & more. 2,723± SF office area with reception, 6 private offices - 4 including windows for natural light, break room & two ADA restrooms. Located just 1.7 miles to I-79 & 6.1 miles to I-90. Zoned I-1 Light Industrial. Offered at $12.95/SF/YR-NNN. NNN estimated at $2.14/SF/YR based on 2025. Floor plan and 3D tour available. Contact broker for additional information or to schedule a tour.
- Lease rate does not include utilities, property expenses or building services
- 1 Drive Bay
- 1 Loading Dock
- 5,287±SF Warehouse With Truck Dock & Drive-In Door
- 2,723± SF Office Area Lobby/Reception & 6 Offices
- Floor Plan & 3D Tour Available - Zoned Lt. Ind.
- Includes 2,723 SF of dedicated office space
- Space is in Excellent Condition
- 8,010±SF Modern Industrial Space For Lease
- 16' Ceilings, Shop Office & Shop Restroom
- Break Room & 2 Restrooms
| Space | Size | Term | Rental Rate | Space Use | Condition | Available |
| 1st Floor - 2333 W. 50th Street | 8,010 SF | Negotiable | $12.95 /SF/YR $1.08 /SF/MO $103,730 /YR $8,644 /MO | Industrial | Full Build-Out | Now |
1st Floor - 2333 W. 50th Street
| Size |
| 8,010 SF |
| Term |
| Negotiable |
| Rental Rate |
| $12.95 /SF/YR $1.08 /SF/MO $103,730 /YR $8,644 /MO |
| Space Use |
| Industrial |
| Condition |
| Full Build-Out |
| Available |
| Now |
1st Floor - 2333 W. 50th Street
| Size | 8,010 SF |
| Term | Negotiable |
| Rental Rate | $12.95 /SF/YR |
| Space Use | Industrial |
| Condition | Full Build-Out |
| Available | Now |
8,010± SF modern industrial space for lease at Grandview Business Park. 5,287± SF warehouse features 14'9" to 16'2" ceilings, 12'x14' drive-in overhead door, raised truck dock with leveler (8'W x 8'10"H overhead door), shop office, shop restroom, 200 amp, 3-phase power & more. 2,723± SF office area with reception, 6 private offices - 4 including windows for natural light, break room & two ADA restrooms. Located just 1.7 miles to I-79 & 6.1 miles to I-90. Zoned I-1 Light Industrial. Offered at $12.95/SF/YR-NNN. NNN estimated at $2.14/SF/YR based on 2025. Floor plan and 3D tour available. Contact broker for additional information or to schedule a tour.
- Lease rate does not include utilities, property expenses or building services
- Includes 2,723 SF of dedicated office space
- 1 Drive Bay
- Space is in Excellent Condition
- 1 Loading Dock
- 8,010±SF Modern Industrial Space For Lease
- 5,287±SF Warehouse With Truck Dock & Drive-In Door
- 16' Ceilings, Shop Office & Shop Restroom
- 2,723± SF Office Area Lobby/Reception & 6 Offices
- Break Room & 2 Restrooms
- Floor Plan & 3D Tour Available - Zoned Lt. Ind.
Property Overview
8,010± SF modern industrial space for lease at Grandview Business Park. 5,287± SF warehouse features 14'9" to 16'2" ceilings, 12'x14' drive-in overhead door, raised truck dock with leveler (8'W x 8'10"H overhead door), shop office, shop restroom, 200 amp, 3-phase power & more. 2,723± SF office area with reception, 6 private offices - 4 including windows for natural light, break room & two ADA restrooms. Located just 1.7 miles to I-79 & 6.1 miles to I-90. Zoned I-1 Light Industrial. Offered at $12.95/SF/YR-NNN. Floor plan and 3D tour available. Offered at $12.95/SF/YR-NNN. NNN estimated at $2.14/SF/YR based on 2025. Contact broker for additional information or to schedule a tour.
Warehouse Facility Facts
Select Tenants
- Tenant Name
- Industry
- Kaman Industrial
- Manufacturing
- Service Coordination Unlimited
- Services
Presented by
2333-2335 W 50th St
Hmm, there seems to have been an error sending your message. Please try again.
Thanks! Your message was sent.






