Your email has been sent.
Mission Viejo Commerce Park 23352 Madero 1,200 - 3,600 SF of Flex Space Available in Mission Viejo, CA 92691



FEATURES
ALL AVAILABLE SPACES(3)
Display Rental Rate as
- SPACE
- SIZE
- TERM
- RENTAL RATE
- SPACE USE
- CONDITION
- AVAILABLE
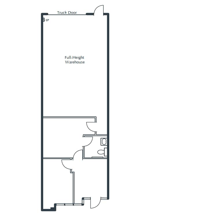
Reception - Window Office - Restroom - Ground-Level Truck Door - Approximately 813 sq. ft. of Full-Height Warehouse - Part of a Professionally Managed Business Park
- Lease rate does not include utilities, property expenses or building services
- Reception Area
- Includes 387 SF of dedicated office space
- Private Restrooms
Reception - Window Office - Restroom - Ground-Level Truck Door - Approximately 702 sq. ft. of Full-Height Warehouse - Part of a Professionally Managed Business Park
- Lease rate does not include utilities, property expenses or building services
- Reception Area
- Professional Lease
- Ground-Level Truck Door
- Includes 498 SF of dedicated office space
- Private Restrooms
- Window Office
- Approximately 702 sq. ft. of Full-Height Warehouse
Reception - Window Office - Restroom - Open Work Area - Ground-Level Truck Door - Approximately 612 sq. ft. of Full-Height Warehouse - Part of a Professionally Managed Business Park
- Lease rate does not include utilities, property expenses or building services
- Reception Area
- Professional Lease
- Window Office
- Includes 588 SF of dedicated office space
- Private Restrooms
- Ground-Level Truck Door
- Approximately 612 sq. ft. of Full-Height Warehouse
| Space | Size | Term | Rental Rate | Space Use | Condition | Available |
| 1st Floor - K | 1,200 SF | 3 Years | $21.00 /SF/YR $1.75 /SF/MO $25,200 /YR $2,100 /MO | Flex | - | January 01, 2026 |
| 1st Floor - N | 1,200 SF | 3 Years | $21.00 /SF/YR $1.75 /SF/MO $25,200 /YR $2,100 /MO | Flex | - | Now |
| 1st Floor - P | 1,200 SF | 3 Years | $21.00 /SF/YR $1.75 /SF/MO $25,200 /YR $2,100 /MO | Flex | - | Now |
1st Floor - K
| Size |
| 1,200 SF |
| Term |
| 3 Years |
| Rental Rate |
| $21.00 /SF/YR $1.75 /SF/MO $25,200 /YR $2,100 /MO |
| Space Use |
| Flex |
| Condition |
| - |
| Available |
| January 01, 2026 |
1st Floor - N
| Size |
| 1,200 SF |
| Term |
| 3 Years |
| Rental Rate |
| $21.00 /SF/YR $1.75 /SF/MO $25,200 /YR $2,100 /MO |
| Space Use |
| Flex |
| Condition |
| - |
| Available |
| Now |
1st Floor - P
| Size |
| 1,200 SF |
| Term |
| 3 Years |
| Rental Rate |
| $21.00 /SF/YR $1.75 /SF/MO $25,200 /YR $2,100 /MO |
| Space Use |
| Flex |
| Condition |
| - |
| Available |
| Now |
1st Floor - K
| Size | 1,200 SF |
| Term | 3 Years |
| Rental Rate | $21.00 /SF/YR |
| Space Use | Flex |
| Condition | - |
| Available | January 01, 2026 |
Reception - Window Office - Restroom - Ground-Level Truck Door - Approximately 813 sq. ft. of Full-Height Warehouse - Part of a Professionally Managed Business Park
- Lease rate does not include utilities, property expenses or building services
- Includes 387 SF of dedicated office space
- Reception Area
- Private Restrooms
1st Floor - N
| Size | 1,200 SF |
| Term | 3 Years |
| Rental Rate | $21.00 /SF/YR |
| Space Use | Flex |
| Condition | - |
| Available | Now |
Reception - Window Office - Restroom - Ground-Level Truck Door - Approximately 702 sq. ft. of Full-Height Warehouse - Part of a Professionally Managed Business Park
- Lease rate does not include utilities, property expenses or building services
- Includes 498 SF of dedicated office space
- Reception Area
- Private Restrooms
- Professional Lease
- Window Office
- Ground-Level Truck Door
- Approximately 702 sq. ft. of Full-Height Warehouse
1st Floor - P
| Size | 1,200 SF |
| Term | 3 Years |
| Rental Rate | $21.00 /SF/YR |
| Space Use | Flex |
| Condition | - |
| Available | Now |
Reception - Window Office - Restroom - Open Work Area - Ground-Level Truck Door - Approximately 612 sq. ft. of Full-Height Warehouse - Part of a Professionally Managed Business Park
- Lease rate does not include utilities, property expenses or building services
- Includes 588 SF of dedicated office space
- Reception Area
- Private Restrooms
- Professional Lease
- Ground-Level Truck Door
- Window Office
- Approximately 612 sq. ft. of Full-Height Warehouse
PROPERTY OVERVIEW
Mission Viejo Commerce Park is a light industrial complex consisting of 9 one-story buildings totaling 145,937 square feet. The property offers ample parking, high-speed internet, and private restrooms and 16 feet high truck doors. Mission Viejo Commerce Park is conveniently located less than 4 miles from the I-5 freeway and is within close proximity to many restaurants and retail centers.
PROPERTY FACTS
Presented by
Mission Viejo Commerce Park | 23352 Madero
Hmm, there seems to have been an error sending your message. Please try again.
Thanks! Your message was sent.






