Your email has been sent.
235 King St E 659 - 77,251 SF of Space Available in Kitchener, ON N2G 4N5



HIGHLIGHTS
- Located in Downtown, Kitchener
- Street Front Exposure
- Close to Public Transit
Display Rental Rate as
- SPACE
- SIZE
- TERM
- RENTAL RATE
- SPACE USE
- CONDITION
- AVAILABLE
- Lease rate does not include utilities, property expenses or building services
- Mostly Open Floor Plan Layout
- Fully Built-Out as Standard Office
- Fits 1 - 60 People
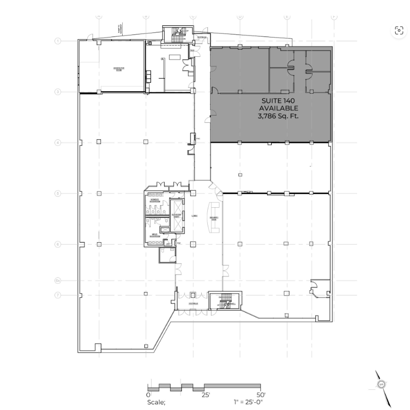
The suite offers a maximum contiguous area of 3,786 square feet on the 1st floor. This unit is designated as an office space and comes with amenities such as storage space, fiber internet lines, and a built-out unit. Being on the ground floor, it provides accessibility and convenience for occupants, making it a suitable choice for various office requirements.
- Lease rate does not include utilities, property expenses or building services
- Open Floor Plan Layout
- Underground Parking
- On Site Security
- Fully Built-Out as Standard Office
- Fits 10 - 31 People
- Storage Space
The suite has 17,583 square feet of available office space, located on the 2nd floor. It is designated as an office unit and includes amenities such as storage space, fiber internet lines, and direct elevator access.
- Lease rate does not include utilities, property expenses or building services
- Space is in Excellent Condition
- Storage space
- Underground Parking
- Open Floor Plan Layout
- Security System
- On Site Security
The commercial property offers a divisible space with a maximum contiguous area of 47,446 square feet, situated on the 4th floor. Designed as an office unit, it comes with amenities such as storage space, fiber internet lines, and direct elevator access, providing convenience and functionality for tenants.
- Lease rate does not include utilities, property expenses or building services
- Open Floor Plan Layout
- Can be combined with additional space(s) for up to 35,825 SF of adjacent space
- Storage Space
- Fully Built-Out as Standard Office
- Fits 44 - 141 People
- Underground Parking
- On Site Security
The suite has a maximum contiguous area of 47,446 square feet, located on the 5th floor. It is designated as an office unit and includes amenities such as storage space, fiber internet lines, and direct elevator access. Additionally, this suite covers the entire floor, offering a full-floor layout for enhanced flexibility and space utilization.
- Lease rate does not include utilities, property expenses or building services
- Open Floor Plan Layout
- Can be combined with additional space(s) for up to 35,825 SF of adjacent space
- Storage Space
- Fully Built-Out as Standard Office
- Fits 44 - 141 People
- Underground Parking
- On Site Security
The suite has 12,010 square feet of available office space, located on the 6th floor. It is designated as an office unit and includes amenities such as storage space, fiber internet lines, and direct elevator access.
- Lease rate does not include utilities, property expenses or building services
- Space is in Excellent Condition
- On Site Security
- Underground Parking
- Open Floor Plan Layout
- Security System
- Storage Space
| Space | Size | Term | Rental Rate | Space Use | Condition | Available |
| 1st Floor, Ste 100 | 8,047 SF | 5 Years | $8.66 USD/SF/YR $0.72 USD/SF/MO $69,649 USD/YR $5,804 USD/MO | Office | Full Build-Out | Now |
| 1st Floor, Ste 140 | 3,786 SF | 1-10 Years | $8.66 USD/SF/YR $0.72 USD/SF/MO $32,769 USD/YR $2,731 USD/MO | Office | Full Build-Out | Now |
| 2nd Floor, Ste 200 | 17,583 SF | 1-10 Years | $7.18 USD/SF/YR $0.60 USD/SF/MO $126,187 USD/YR $10,516 USD/MO | Office | Shell Space | Now |
| 4th Floor, Ste 400 | 17,583 SF | 1-10 Years | $7.18 USD/SF/YR $0.60 USD/SF/MO $126,187 USD/YR $10,516 USD/MO | Office | Full Build-Out | Now |
| 5th Floor, Ste 500 | 17,583 SF | 1-10 Years | $7.18 USD/SF/YR $0.60 USD/SF/MO $126,187 USD/YR $10,516 USD/MO | Office | Full Build-Out | Now |
| 6th Floor, Ste 600 | 12,010 SF | 1-10 Years | $7.18 USD/SF/YR $0.60 USD/SF/MO $86,192 USD/YR $7,183 USD/MO | Office | Shell Space | Now |
1st Floor, Ste 100
| Size |
| 8,047 SF |
| Term |
| 5 Years |
| Rental Rate |
| $8.66 USD/SF/YR $0.72 USD/SF/MO $69,649 USD/YR $5,804 USD/MO |
| Space Use |
| Office |
| Condition |
| Full Build-Out |
| Available |
| Now |
1st Floor, Ste 140
| Size |
| 3,786 SF |
| Term |
| 1-10 Years |
| Rental Rate |
| $8.66 USD/SF/YR $0.72 USD/SF/MO $32,769 USD/YR $2,731 USD/MO |
| Space Use |
| Office |
| Condition |
| Full Build-Out |
| Available |
| Now |
2nd Floor, Ste 200
| Size |
| 17,583 SF |
| Term |
| 1-10 Years |
| Rental Rate |
| $7.18 USD/SF/YR $0.60 USD/SF/MO $126,187 USD/YR $10,516 USD/MO |
| Space Use |
| Office |
| Condition |
| Shell Space |
| Available |
| Now |
4th Floor, Ste 400
| Size |
| 17,583 SF |
| Term |
| 1-10 Years |
| Rental Rate |
| $7.18 USD/SF/YR $0.60 USD/SF/MO $126,187 USD/YR $10,516 USD/MO |
| Space Use |
| Office |
| Condition |
| Full Build-Out |
| Available |
| Now |
5th Floor, Ste 500
| Size |
| 17,583 SF |
| Term |
| 1-10 Years |
| Rental Rate |
| $7.18 USD/SF/YR $0.60 USD/SF/MO $126,187 USD/YR $10,516 USD/MO |
| Space Use |
| Office |
| Condition |
| Full Build-Out |
| Available |
| Now |
6th Floor, Ste 600
| Size |
| 12,010 SF |
| Term |
| 1-10 Years |
| Rental Rate |
| $7.18 USD/SF/YR $0.60 USD/SF/MO $86,192 USD/YR $7,183 USD/MO |
| Space Use |
| Office |
| Condition |
| Shell Space |
| Available |
| Now |
- SPACE
- SIZE
- TERM
- RENTAL RATE
- SPACE USE
- CONDITION
- AVAILABLE
- Lease rate does not include utilities, property expenses or building services
- Mostly Open Floor Plan Layout
- Fully Built-Out as Standard Office
- Fits 1 - 60 People
The suite offers a maximum contiguous area of 3,786 square feet on the 1st floor. This unit is designated as an office space and comes with amenities such as storage space, fiber internet lines, and a built-out unit. Being on the ground floor, it provides accessibility and convenience for occupants, making it a suitable choice for various office requirements.
- Lease rate does not include utilities, property expenses or building services
- Open Floor Plan Layout
- Underground Parking
- On Site Security
- Fully Built-Out as Standard Office
- Fits 10 - 31 People
- Storage Space
Space on the ground floor for retail use with a kitchen and unit security and storage space.
- Lease rate does not include utilities, property expenses or building services
- Located in-line with other retail
- Kitchen
- Fits 2 - 6 People
- Existing food service build out
- Fully Built-Out as Standard Retail Space
- Can be combined with additional space(s) for up to 35,825 SF of adjacent space
- Secure Storage
- Fiber Internet Lines
- Underground Parking
The suite has 17,583 square feet of available office space, located on the 2nd floor. It is designated as an office unit and includes amenities such as storage space, fiber internet lines, and direct elevator access.
- Lease rate does not include utilities, property expenses or building services
- Space is in Excellent Condition
- Storage space
- Underground Parking
- Open Floor Plan Layout
- Security System
- On Site Security
The commercial property offers a divisible space with a maximum contiguous area of 47,446 square feet, situated on the 4th floor. Designed as an office unit, it comes with amenities such as storage space, fiber internet lines, and direct elevator access, providing convenience and functionality for tenants.
- Lease rate does not include utilities, property expenses or building services
- Open Floor Plan Layout
- Can be combined with additional space(s) for up to 35,825 SF of adjacent space
- Storage Space
- Fully Built-Out as Standard Office
- Fits 44 - 141 People
- Underground Parking
- On Site Security
The suite has a maximum contiguous area of 47,446 square feet, located on the 5th floor. It is designated as an office unit and includes amenities such as storage space, fiber internet lines, and direct elevator access. Additionally, this suite covers the entire floor, offering a full-floor layout for enhanced flexibility and space utilization.
- Lease rate does not include utilities, property expenses or building services
- Open Floor Plan Layout
- Can be combined with additional space(s) for up to 35,825 SF of adjacent space
- Storage Space
- Fully Built-Out as Standard Office
- Fits 44 - 141 People
- Underground Parking
- On Site Security
The suite has 12,010 square feet of available office space, located on the 6th floor. It is designated as an office unit and includes amenities such as storage space, fiber internet lines, and direct elevator access.
- Lease rate does not include utilities, property expenses or building services
- Space is in Excellent Condition
- On Site Security
- Underground Parking
- Open Floor Plan Layout
- Security System
- Storage Space
| Space | Size | Term | Rental Rate | Space Use | Condition | Available |
| 1st Floor, Ste 100 | 8,047 SF | 5 Years | $8.66 USD/SF/YR $0.72 USD/SF/MO $69,649 USD/YR $5,804 USD/MO | Office | Full Build-Out | Now |
| 1st Floor, Ste 140 | 3,786 SF | 1-10 Years | $8.66 USD/SF/YR $0.72 USD/SF/MO $32,769 USD/YR $2,731 USD/MO | Office | Full Build-Out | Now |
| 1st Floor, Ste 170 | 659 SF | 1-10 Years | $8.66 USD/SF/YR $0.72 USD/SF/MO $5,704 USD/YR $475.32 USD/MO | Retail | Full Build-Out | Now |
| 2nd Floor, Ste 200 | 17,583 SF | 1-10 Years | $7.18 USD/SF/YR $0.60 USD/SF/MO $126,187 USD/YR $10,516 USD/MO | Office | Shell Space | Now |
| 4th Floor, Ste 400 | 17,583 SF | 1-10 Years | $7.18 USD/SF/YR $0.60 USD/SF/MO $126,187 USD/YR $10,516 USD/MO | Office | Full Build-Out | Now |
| 5th Floor, Ste 500 | 17,583 SF | 1-10 Years | $7.18 USD/SF/YR $0.60 USD/SF/MO $126,187 USD/YR $10,516 USD/MO | Office | Full Build-Out | Now |
| 6th Floor, Ste 600 | 12,010 SF | 1-10 Years | $7.18 USD/SF/YR $0.60 USD/SF/MO $86,192 USD/YR $7,183 USD/MO | Office | Shell Space | Now |
1st Floor, Ste 100
| Size |
| 8,047 SF |
| Term |
| 5 Years |
| Rental Rate |
| $8.66 USD/SF/YR $0.72 USD/SF/MO $69,649 USD/YR $5,804 USD/MO |
| Space Use |
| Office |
| Condition |
| Full Build-Out |
| Available |
| Now |
1st Floor, Ste 140
| Size |
| 3,786 SF |
| Term |
| 1-10 Years |
| Rental Rate |
| $8.66 USD/SF/YR $0.72 USD/SF/MO $32,769 USD/YR $2,731 USD/MO |
| Space Use |
| Office |
| Condition |
| Full Build-Out |
| Available |
| Now |
1st Floor, Ste 170
| Size |
| 659 SF |
| Term |
| 1-10 Years |
| Rental Rate |
| $8.66 USD/SF/YR $0.72 USD/SF/MO $5,704 USD/YR $475.32 USD/MO |
| Space Use |
| Retail |
| Condition |
| Full Build-Out |
| Available |
| Now |
2nd Floor, Ste 200
| Size |
| 17,583 SF |
| Term |
| 1-10 Years |
| Rental Rate |
| $7.18 USD/SF/YR $0.60 USD/SF/MO $126,187 USD/YR $10,516 USD/MO |
| Space Use |
| Office |
| Condition |
| Shell Space |
| Available |
| Now |
4th Floor, Ste 400
| Size |
| 17,583 SF |
| Term |
| 1-10 Years |
| Rental Rate |
| $7.18 USD/SF/YR $0.60 USD/SF/MO $126,187 USD/YR $10,516 USD/MO |
| Space Use |
| Office |
| Condition |
| Full Build-Out |
| Available |
| Now |
5th Floor, Ste 500
| Size |
| 17,583 SF |
| Term |
| 1-10 Years |
| Rental Rate |
| $7.18 USD/SF/YR $0.60 USD/SF/MO $126,187 USD/YR $10,516 USD/MO |
| Space Use |
| Office |
| Condition |
| Full Build-Out |
| Available |
| Now |
6th Floor, Ste 600
| Size |
| 12,010 SF |
| Term |
| 1-10 Years |
| Rental Rate |
| $7.18 USD/SF/YR $0.60 USD/SF/MO $86,192 USD/YR $7,183 USD/MO |
| Space Use |
| Office |
| Condition |
| Shell Space |
| Available |
| Now |
1st Floor, Ste 100
| Size | 8,047 SF |
| Term | 5 Years |
| Rental Rate | $8.66 USD/SF/YR |
| Space Use | Office |
| Condition | Full Build-Out |
| Available | Now |
- Lease rate does not include utilities, property expenses or building services
- Fully Built-Out as Standard Office
- Mostly Open Floor Plan Layout
- Fits 1 - 60 People
1st Floor, Ste 140
| Size | 3,786 SF |
| Term | 1-10 Years |
| Rental Rate | $8.66 USD/SF/YR |
| Space Use | Office |
| Condition | Full Build-Out |
| Available | Now |
The suite offers a maximum contiguous area of 3,786 square feet on the 1st floor. This unit is designated as an office space and comes with amenities such as storage space, fiber internet lines, and a built-out unit. Being on the ground floor, it provides accessibility and convenience for occupants, making it a suitable choice for various office requirements.
- Lease rate does not include utilities, property expenses or building services
- Fully Built-Out as Standard Office
- Open Floor Plan Layout
- Fits 10 - 31 People
- Underground Parking
- Storage Space
- On Site Security
1st Floor, Ste 170
| Size | 659 SF |
| Term | 1-10 Years |
| Rental Rate | $8.66 USD/SF/YR |
| Space Use | Retail |
| Condition | Full Build-Out |
| Available | Now |
Space on the ground floor for retail use with a kitchen and unit security and storage space.
- Lease rate does not include utilities, property expenses or building services
- Fully Built-Out as Standard Retail Space
- Located in-line with other retail
- Can be combined with additional space(s) for up to 35,825 SF of adjacent space
- Kitchen
- Secure Storage
- Fits 2 - 6 People
- Fiber Internet Lines
- Existing food service build out
- Underground Parking
2nd Floor, Ste 200
| Size | 17,583 SF |
| Term | 1-10 Years |
| Rental Rate | $7.18 USD/SF/YR |
| Space Use | Office |
| Condition | Shell Space |
| Available | Now |
The suite has 17,583 square feet of available office space, located on the 2nd floor. It is designated as an office unit and includes amenities such as storage space, fiber internet lines, and direct elevator access.
- Lease rate does not include utilities, property expenses or building services
- Open Floor Plan Layout
- Space is in Excellent Condition
- Security System
- Storage space
- On Site Security
- Underground Parking
4th Floor, Ste 400
| Size | 17,583 SF |
| Term | 1-10 Years |
| Rental Rate | $7.18 USD/SF/YR |
| Space Use | Office |
| Condition | Full Build-Out |
| Available | Now |
The commercial property offers a divisible space with a maximum contiguous area of 47,446 square feet, situated on the 4th floor. Designed as an office unit, it comes with amenities such as storage space, fiber internet lines, and direct elevator access, providing convenience and functionality for tenants.
- Lease rate does not include utilities, property expenses or building services
- Fully Built-Out as Standard Office
- Open Floor Plan Layout
- Fits 44 - 141 People
- Can be combined with additional space(s) for up to 35,825 SF of adjacent space
- Underground Parking
- Storage Space
- On Site Security
5th Floor, Ste 500
| Size | 17,583 SF |
| Term | 1-10 Years |
| Rental Rate | $7.18 USD/SF/YR |
| Space Use | Office |
| Condition | Full Build-Out |
| Available | Now |
The suite has a maximum contiguous area of 47,446 square feet, located on the 5th floor. It is designated as an office unit and includes amenities such as storage space, fiber internet lines, and direct elevator access. Additionally, this suite covers the entire floor, offering a full-floor layout for enhanced flexibility and space utilization.
- Lease rate does not include utilities, property expenses or building services
- Fully Built-Out as Standard Office
- Open Floor Plan Layout
- Fits 44 - 141 People
- Can be combined with additional space(s) for up to 35,825 SF of adjacent space
- Underground Parking
- Storage Space
- On Site Security
6th Floor, Ste 600
| Size | 12,010 SF |
| Term | 1-10 Years |
| Rental Rate | $7.18 USD/SF/YR |
| Space Use | Office |
| Condition | Shell Space |
| Available | Now |
The suite has 12,010 square feet of available office space, located on the 6th floor. It is designated as an office unit and includes amenities such as storage space, fiber internet lines, and direct elevator access.
- Lease rate does not include utilities, property expenses or building services
- Open Floor Plan Layout
- Space is in Excellent Condition
- Security System
- On Site Security
- Storage Space
- Underground Parking
PROPERTY OVERVIEW
235 King sits in the bustling Market District of Downtown Kitchener. It is the first building seen when entering the city’s core from the East end, offering second-to-none signage opportunities. This central location makes running out easy, whether you’re grabbing international cuisine from the Kitchener Market up the street or hopping on the highway to get to a meeting. 235 King is brimming with convenience and potential.
- Bus Line
PROPERTY FACTS
Presented by
235 King St E
Hmm, there seems to have been an error sending your message. Please try again.
Thanks! Your message was sent.












