Log In/Sign Up
Your email has been sent.
Features
Clear Height
18’
Drive In Bays
7
Standard Parking Spaces
243
All Available Space(1)
Display Rental Rate as
- Space
- Size
- Term
- Rental Rate
- Space Use
- Condition
- Available
- Sublease space available from current tenant
- Central Air and Heating
- 2 Drive Ins
| Space | Size | Term | Rental Rate | Space Use | Condition | Available |
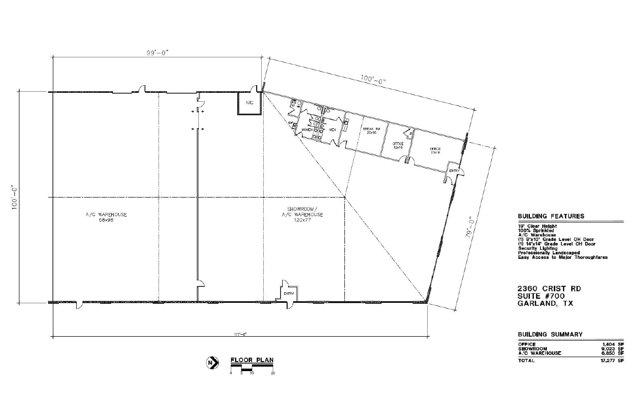
| 1st Floor - 700B | 17,277 SF | Apr 2029 | Upon Request Upon Request Upon Request Upon Request | Flex | Partial Build-Out | Now |
1st Floor - 700B
| Size |
| 17,277 SF |
| Term |
| Apr 2029 |
| Rental Rate |
| Upon Request Upon Request Upon Request Upon Request |
| Space Use |
| Flex |
| Condition |
| Partial Build-Out |
| Available |
| Now |
1 of 1
Videos
Matterport 3D Exterior
Matterport 3D Tour
Photos
Street View
Street
Map
1st Floor - 700B
| Size | 17,277 SF |
| Term | Apr 2029 |
| Rental Rate | Upon Request |
| Space Use | Flex |
| Condition | Partial Build-Out |
| Available | Now |
- Sublease space available from current tenant
- 2 Drive Ins
- Central Air and Heating
Property Facts
Building Size
74,312 SF
Lot Size
7.32 AC
Year Built
2008
Construction
Masonry
Sprinkler System
ESFR
Zoning
Z109 - Commerical
Select Tenants
- Floor
- Tenant Name
- Industry
- 1st
- CrossFit
- Arts, Entertainment, and Recreation
1 of 5
Videos
Matterport 3D Exterior
Matterport 3D Tour
Photos
Street View
Street
Map
Presented by
Building B | 2360 Crist Rd
Already a member? Log In
Hmm, there seems to have been an error sending your message. Please try again.
Thanks! Your message was sent.
Your message has been sent!
Activate your LoopNet account now to track properties, get real-time alerts, save time on future inquiries, and more.






