Log In/Sign Up
Your email has been sent.
Features
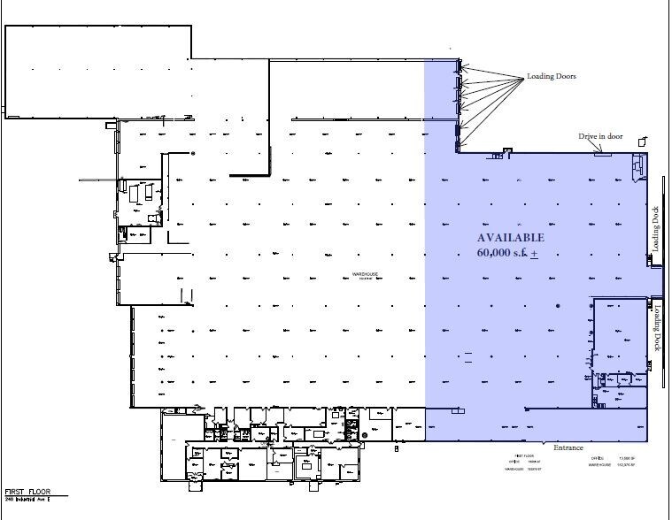
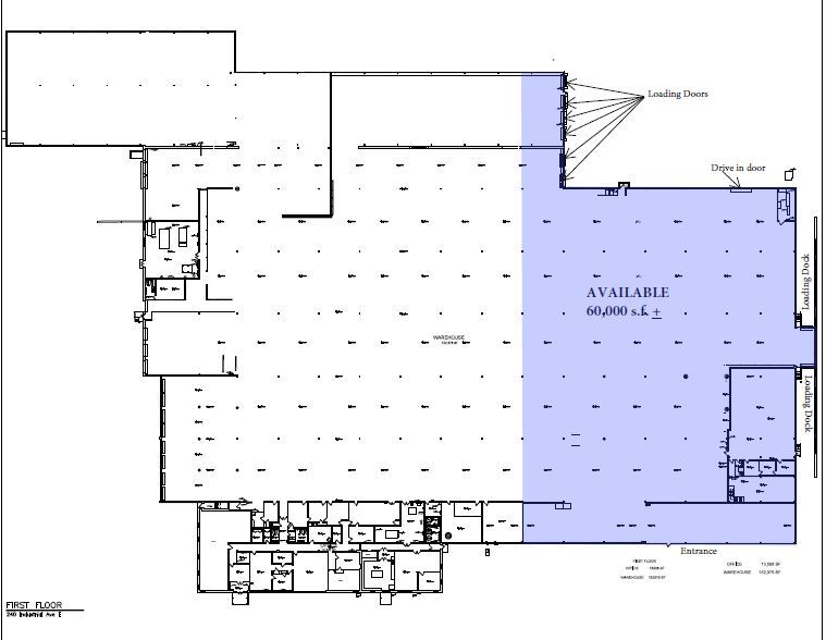
Drive In Bays
2
Exterior Dock Doors
15
Standard Parking Spaces
113
All Available Space(1)
Display Rental Rate as
- Space
- Size
- Term
- Rental Rate
- Space Use
- Build-Out
- Available
- Sublease space available from current tenant
- 8 Loading Docks
| Space | Size | Term | Rental Rate | Space Use | Build-Out | Available |
| 1st Floor | 25,000-70,000 SF | Negotiable | Upon Request Upon Request Upon Request Upon Request | Industrial | Full Build-Out | Now |
1st Floor
| Size |
| 25,000-70,000 SF |
| Term |
| Negotiable |
| Rental Rate |
| Upon Request Upon Request Upon Request Upon Request |
| Space Use |
| Industrial |
| Build-Out |
| Full Build-Out |
| Available |
| Now |
1st Floor
| Size | 25,000-70,000 SF |
| Term | Negotiable |
| Rental Rate | Upon Request |
| Space Use | Industrial |
| Build-Out | Full Build-Out |
| Available | Now |
- Sublease space available from current tenant
- 8 Loading Docks
Manufacturing Facility Facts
Building Size
167,436 SF
Lot Size
10.46 AC
Year Built
1963
Construction
Steel
Zoning
GI - General Industrial
Select Tenants
- Floor
- Tenant Name
- Industry
- 1st
- Raymour & Flanigan Furniture
- Retailer
1 1
Fairly walkable
40/100
Exceptionally drivable
100/100
Limited public transit
30/100
Moderately bikeable
60/100
1 of 7
Videos
Matterport 3D Exterior
Matterport 3D Tour
Photos
Street View
Street
Map
1 of 1
Presented by
240 Industrial Ave E
Already a member? Log In
Hmm, there seems to have been an error sending your message. Please try again.
Thanks! Your message was sent.



