Log In/Sign Up
Your email has been sent.
Park Facts
| Total Space Available | 4,490 SF | Park Type | Industrial Park |
| Total Space Available | 4,490 SF |
| Park Type | Industrial Park |
All Available Spaces(3)
Display Rental Rate as
Park Lane Industrial Park
2400 W Medtronic Way
790 - 4,490 SF
|
$16.20 /SF/YR
$1.35 /SF/MO
$174.38 /m²/YR
$14.53 /m²/MO
$1,067 - $6,062 /MO
$12,798 - $72,738 /YR
Building Type/Class
Industrial/B
Building Subtype
Warehouse
Building Size
11,821 SF
Lot Size
0.84 AC
Year Built
1983
Clear Height
15’
Drive In Bays
6
Power Supply
Amps: 200
Zoning
I-1 - Industrial
- Space
- Size
- Term
- Rental Rate
- Space Use
- Build-Out
- Available
Reception, 2 Offices, 1 Restroom, Conference Room, Break Room, 50% Office.
- Listed rate may not include certain utilities, building services and property expenses
- Reception Area
- Includes 982 SF of dedicated office space
- Fits 5 - 16 People
Reception, 2 Offices, 1 Restroom, All Office
- Listed rate may not include certain utilities, building services and property expenses
- Fits 2 - 7 People
- Reception Area
- Open Floor Plan Layout
- 2 Private Offices
- Private Restrooms
4 Offices, Reception, Bullpen, 2 Restrooms, All A/C, Yard Option Available No Roll-Up, 100% Office
- Listed rate may not include certain utilities, building services and property expenses
- Open Floor Plan Layout
- 4 Private Offices
- Reception Area
- Partially Built-Out as Standard Office
- Fits 5 - 14 People
- Central Air Conditioning
- Secure Storage
| Space | Size | Term | Rental Rate | Space Use | Build-Out | Available |
| 1st Floor - 4 | 1,964 SF | Negotiable | $16.20 /SF/YR $1.35 /SF/MO $31,817 /YR $2,651 /MO | Flex | Spec Suite | Now |
| 1st Floor, Ste 5 | 790 SF | Negotiable | $16.20 /SF/YR $1.35 /SF/MO $12,798 /YR $1,067 /MO | Office | Spec Suite | Now |
| 1st Floor, Ste 6 | 1,736 SF | Negotiable | $16.20 /SF/YR $1.35 /SF/MO $28,123 /YR $2,344 /MO | Office | Partial Build-Out | Now |
Park Lane Industrial Park
2400 W Medtronic Way
790 - 4,490 SF
|
$16.20 /SF/YR
$1.35 /SF/MO
$174.38 /m²/YR
$14.53 /m²/MO
$1,067 - $6,062 /MO
$12,798 - $72,738 /YR
Building Type/Class
Industrial/B
Building Subtype
Warehouse
Building Size
11,821 SF
Lot Size
0.84 AC
Year Built
1983
Clear Height
15’
Drive In Bays
6
Power Supply
Amps: 200
Zoning
I-1 - Industrial
2400 W Medtronic Way - 1st Floor - 4
Size
1,964 SF
Term
Negotiable
Rental Rate
$16.20 /SF/YR
$1.35 /SF/MO
$31,817 /YR
$2,651 /MO
Space Use
Flex
Build-Out
Spec Suite
Available
Now
2400 W Medtronic Way - 1st Floor - Ste 5
Size
790 SF
Term
Negotiable
Rental Rate
$16.20 /SF/YR
$1.35 /SF/MO
$12,798 /YR
$1,067 /MO
Space Use
Office
Build-Out
Spec Suite
Available
Now
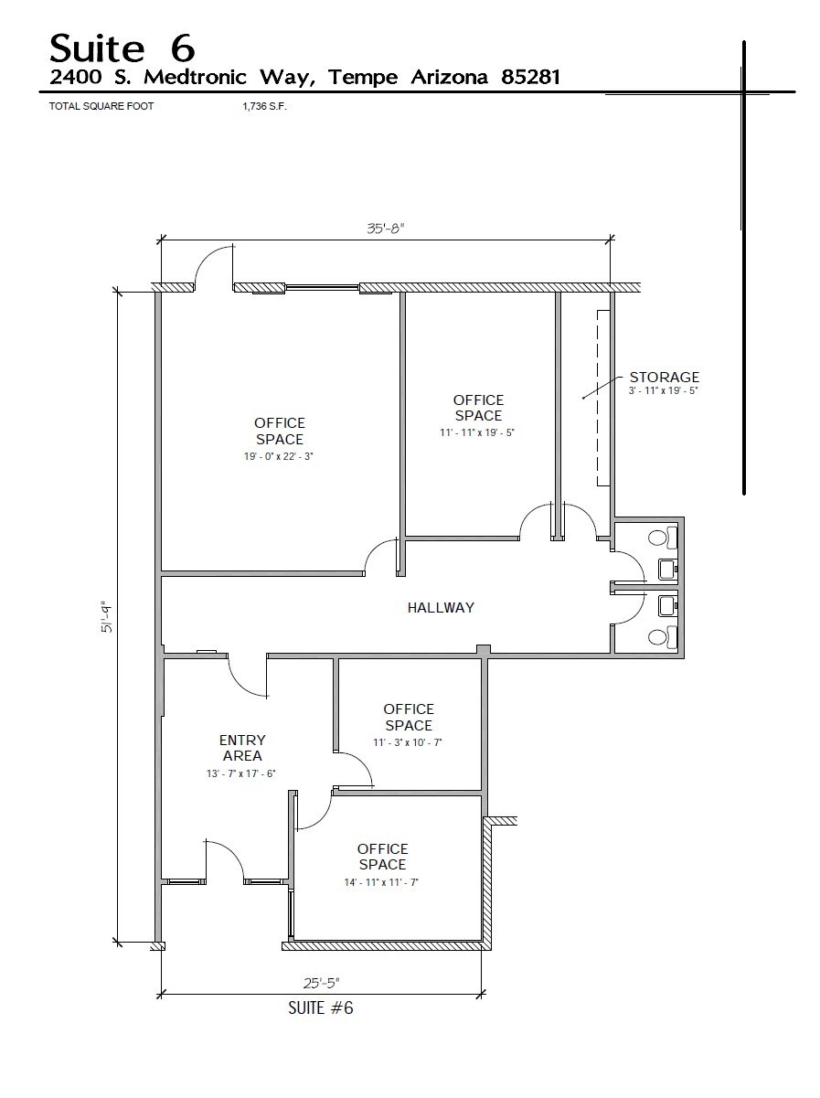
2400 W Medtronic Way - 1st Floor - Ste 6
Size
1,736 SF
Term
Negotiable
Rental Rate
$16.20 /SF/YR
$1.35 /SF/MO
$28,123 /YR
$2,344 /MO
Space Use
Office
Build-Out
Partial Build-Out
Available
Now
2400 W Medtronic Way - 1st Floor - 4
| Size | 1,964 SF |
| Term | Negotiable |
| Rental Rate | $16.20 /SF/YR |
| Space Use | Flex |
| Build-Out | Spec Suite |
| Available | Now |
Reception, 2 Offices, 1 Restroom, Conference Room, Break Room, 50% Office.
- Listed rate may not include certain utilities, building services and property expenses
- Includes 982 SF of dedicated office space
- Reception Area
- Fits 5 - 16 People
2400 W Medtronic Way - 1st Floor - Ste 5
| Size | 790 SF |
| Term | Negotiable |
| Rental Rate | $16.20 /SF/YR |
| Space Use | Office |
| Build-Out | Spec Suite |
| Available | Now |
Reception, 2 Offices, 1 Restroom, All Office
- Listed rate may not include certain utilities, building services and property expenses
- Open Floor Plan Layout
- Fits 2 - 7 People
- 2 Private Offices
- Reception Area
- Private Restrooms
1 of 1
Videos
Matterport 3D Exterior
Matterport 3D Tour
Photos
Street View
Street
Map
2400 W Medtronic Way - 1st Floor - Ste 6
| Size | 1,736 SF |
| Term | Negotiable |
| Rental Rate | $16.20 /SF/YR |
| Space Use | Office |
| Build-Out | Partial Build-Out |
| Available | Now |
4 Offices, Reception, Bullpen, 2 Restrooms, All A/C, Yard Option Available No Roll-Up, 100% Office
- Listed rate may not include certain utilities, building services and property expenses
- Partially Built-Out as Standard Office
- Open Floor Plan Layout
- Fits 5 - 14 People
- 4 Private Offices
- Central Air Conditioning
- Reception Area
- Secure Storage
1 1
Fairly walkable
40/100
Exceptionally drivable
100/100
Some public transit
40/100
Fairly bikeable
50/100
1 of 7
Videos
Matterport 3D Exterior
Matterport 3D Tour
Photos
Street View
Street
Map
1 of 1
Presented by
Park Lane Industrial Park | Tempe, AZ 85281
Already a member? Log In
Hmm, there seems to have been an error sending your message. Please try again.
Thanks! Your message was sent.





