This Property is no longer advertised on LoopNet.com.

242-244 E 14th St
New York, NY 10003
242-244 E 14th St. · Property For Lease · 63,158 SF

About the Property

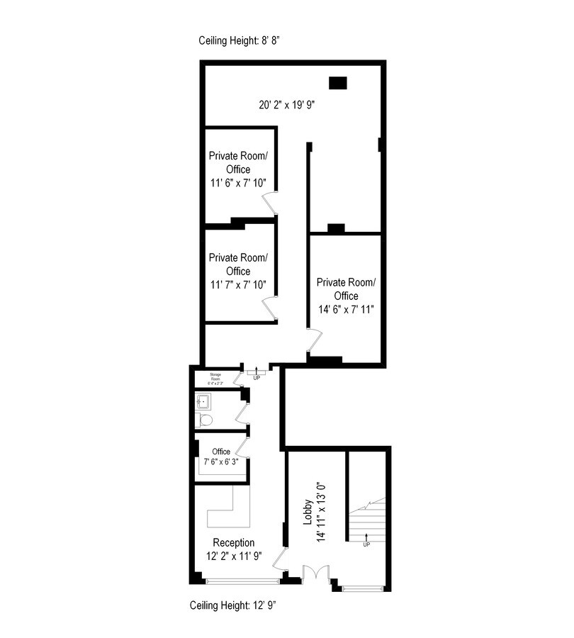
Bring an offer for this space. Sublandlord wants to rent it ASAP. Already below market ask. Sublandlord will consider multiple smaller clients if they can share the space. This Ground Floor Retail/office space has the street address of 244 East 14th St. Rent includes taxes, all utilities and cleaning service which saves another $2-3k per month. Plus use the attached 10,000 sqft gym as well for clients and staff. Space was renovated recently and in good shape. It has a windowed waiting area or reception that looks out onto 14th st, an office, bathroom, 3 separate private rooms or offices and a larger main space with a 4th area that could easily be turned into a private room. It also includes a small storage room. Great space for a physical therapist with multiple private therapy rooms. Also 2 other small non-contiguous offices can be used. Exterior signage/branding directly on 14th st. Shared entry way and/or reception with Synergy gym. Sub-landlord wants to move quickly on this space so bring all offers. 2-10 year term possible. Cannot be vented.

Property Facts

Property Type Multifamily
Property Subtype Apartment
Apartment Style Mid-Rise
Building Size 63,158 SF
Year Built/Renovated 1925/2002
  • Listing ID: 9960067

  • Date on Market: 11/13/2017

  • Last Updated:

  • Address: 242-244 E 14th St, New York, NY 10003

Link copied
Your LoopNet account has been created!

Please Share Your Feedback

We welcome any feedback on how we can improve LoopNet to better serve your needs.
X
{{ getErrorText(feedbackForm.starRating, "rating") }}
255 character limit ({{ remainingChars() }} charactercharacters remainingover)
{{ getErrorText(feedbackForm.msg, "rating") }}
{{ getErrorText(feedbackForm.fname, "first name") }}
{{ getErrorText(feedbackForm.lname, "last name") }}
{{ getErrorText(feedbackForm.phone, "phone number") }}
{{ getErrorText(feedbackForm.phonex, "phone extension") }}
{{ getErrorText(feedbackForm.email, "email address") }}