Your email has been sent.
The Golden Balboa at 5th and Laurel 2445 5th Ave 1,292 - 9,754 SF of 4-Star Office Space Available in San Diego, CA 92101



HIGHLIGHTS
- Free, all day parking at the adjacent Balboa Park
- Renovated private shower and locker room facilities available
- Minutes from Downtown, Mission Valley, Freeways and San Diego Airport
ALL AVAILABLE SPACES(4)
Display Rental Rate as
- SPACE
- SIZE
- TERM
- RENTAL RATE
- SPACE USE
- CONDITION
- AVAILABLE
3 offices, a conference room and break room. Parking rate is $125 per space per month.
- Listed lease rate plus proportional share of electrical cost
- Mostly Open Floor Plan Layout
- 1 Conference Room
- Natural Light
- Fully Built-Out as Standard Office
- 3 Private Offices
- Kitchen
Two (2) window lined offices & kitchenette. Parking rate is $125 per space per month.
- Listed lease rate plus proportional share of electrical cost
- Mostly Open Floor Plan Layout
- Kitchen
- Fully Built-Out as Standard Office
- 2 Private Offices
- Natural Light
Five (5) offices & a large conference room. Parking rate is $125 per space per month.
- Listed lease rate plus proportional share of electrical cost
- 1 Conference Room
- 5 Private Offices
- Private Restrooms
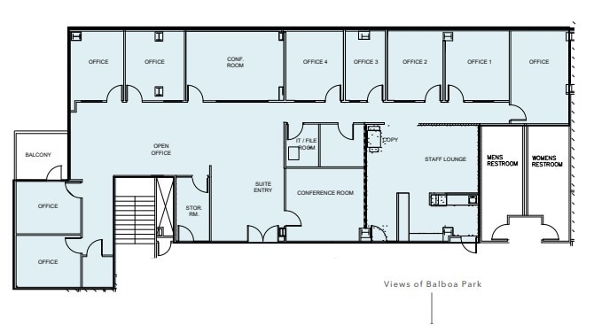
Nine (9) offices, open office area, two (2) conference rooms, balcony, staff lounge and kitchenette. Parking rate is $125 per space per month.
- Listed lease rate plus proportional share of electrical cost
- 2 Conference Rooms
- 9 Private Offices
- Private Restrooms
| Space | Size | Term | Rental Rate | Space Use | Condition | Available |
| 2nd Floor, Ste 230 | 1,896 SF | Negotiable | Upon Request Upon Request Upon Request Upon Request | Office | Full Build-Out | January 01, 2026 |
| 3rd Floor, Ste 340 | 1,292 SF | Negotiable | Upon Request Upon Request Upon Request Upon Request | Office | Full Build-Out | Now |
| 4th Floor, Ste 400 | 2,181 SF | Negotiable | Upon Request Upon Request Upon Request Upon Request | Office | Spec Suite | Now |
| 4th Floor, Ste 420 | 4,385 SF | Negotiable | Upon Request Upon Request Upon Request Upon Request | Office | Spec Suite | June 01, 2026 |
2nd Floor, Ste 230
| Size |
| 1,896 SF |
| Term |
| Negotiable |
| Rental Rate |
| Upon Request Upon Request Upon Request Upon Request |
| Space Use |
| Office |
| Condition |
| Full Build-Out |
| Available |
| January 01, 2026 |
3rd Floor, Ste 340
| Size |
| 1,292 SF |
| Term |
| Negotiable |
| Rental Rate |
| Upon Request Upon Request Upon Request Upon Request |
| Space Use |
| Office |
| Condition |
| Full Build-Out |
| Available |
| Now |
4th Floor, Ste 400
| Size |
| 2,181 SF |
| Term |
| Negotiable |
| Rental Rate |
| Upon Request Upon Request Upon Request Upon Request |
| Space Use |
| Office |
| Condition |
| Spec Suite |
| Available |
| Now |
4th Floor, Ste 420
| Size |
| 4,385 SF |
| Term |
| Negotiable |
| Rental Rate |
| Upon Request Upon Request Upon Request Upon Request |
| Space Use |
| Office |
| Condition |
| Spec Suite |
| Available |
| June 01, 2026 |
2nd Floor, Ste 230
| Size | 1,896 SF |
| Term | Negotiable |
| Rental Rate | Upon Request |
| Space Use | Office |
| Condition | Full Build-Out |
| Available | January 01, 2026 |
3 offices, a conference room and break room. Parking rate is $125 per space per month.
- Listed lease rate plus proportional share of electrical cost
- Fully Built-Out as Standard Office
- Mostly Open Floor Plan Layout
- 3 Private Offices
- 1 Conference Room
- Kitchen
- Natural Light
3rd Floor, Ste 340
| Size | 1,292 SF |
| Term | Negotiable |
| Rental Rate | Upon Request |
| Space Use | Office |
| Condition | Full Build-Out |
| Available | Now |
Two (2) window lined offices & kitchenette. Parking rate is $125 per space per month.
- Listed lease rate plus proportional share of electrical cost
- Fully Built-Out as Standard Office
- Mostly Open Floor Plan Layout
- 2 Private Offices
- Kitchen
- Natural Light
4th Floor, Ste 400
| Size | 2,181 SF |
| Term | Negotiable |
| Rental Rate | Upon Request |
| Space Use | Office |
| Condition | Spec Suite |
| Available | Now |
Five (5) offices & a large conference room. Parking rate is $125 per space per month.
- Listed lease rate plus proportional share of electrical cost
- 5 Private Offices
- 1 Conference Room
- Private Restrooms
4th Floor, Ste 420
| Size | 4,385 SF |
| Term | Negotiable |
| Rental Rate | Upon Request |
| Space Use | Office |
| Condition | Spec Suite |
| Available | June 01, 2026 |
Nine (9) offices, open office area, two (2) conference rooms, balcony, staff lounge and kitchenette. Parking rate is $125 per space per month.
- Listed lease rate plus proportional share of electrical cost
- 9 Private Offices
- 2 Conference Rooms
- Private Restrooms
PROPERTY OVERVIEW
Nestled in the vibrant Bankers Hill neighborhood, Fifth & Laurel offers premium office spaces from 1,242 - 2,181 SF in a modern, well-maintained building—perfect for growing teams seeking inspiration and efficiency. Why lease here? Unmatched Location: Steps from Balboa Park's cultural gems, Hillcrest's trendy dining, and Uptown's bustling vibe, and proximity to I-5 for seamless commutes. Professional Edge: Sleek, flexible suites in a professional environment that fosters collaboration and client impressions. Building upgrades are underway for common area spaces including the garage lobbies, building lobby, hallways etc… Lifestyle Perks: Enjoy nearby green spaces, updated Japanese inspired private shower and locker rooms and San Diego's sunny energy—boosting productivity and work-life balance. Secure your spot today and position your business for success in one of SD's most desirable addresses. Contact us for a tour! Unlike most buildings, this property does not pass on CAM’s (Common area maintenance charges) to its tenants. Building highlights California-inspired Italian Kitchen and Wine Shop, Cucina Urbana is located on the ground level along with many other restaurants and coffee shops nearby Parking ratio of 2 per 1,000 RSF & $125 per space per month - Free, all day parking at the adjacent Balboa Park along Balboa Drive. Minutes from Downtown, Mission Valley, Freeways and San Diego Airport
- 24 Hour Access
- Controlled Access
- Property Manager on Site
- Restaurant
- Security System
- Signage
- Reception
- Central Heating
- Natural Light
- Reception
- Hardwood Floors
- Monument Signage
- Air Conditioning
- Fiber Optic Internet
PROPERTY FACTS
Presented by
The Golden Balboa at 5th and Laurel | 2445 5th Ave
Hmm, there seems to have been an error sending your message. Please try again.
Thanks! Your message was sent.








