Your email has been sent.
Gantry Point 25- 11 49th Ave 8,779 - 71,939 SF of 4-Star Office Space Available in Long Island City, NY 11101



Highlights
- Owner-occupied building
- Bicycle storage available
- Potential building signage/ branding opportunities
- Garden space adjacent to lobby
- Potential for on-site parking
All Available Spaces(5)
Display Rental Rate as
- Space
- Size
- Term
- Rental Rate
- Space Use
- Build-Out
- Available
Terrific views and ample natural light with windows on all four sides Side-core floor plates with minimal columns, ideal for diverse use groups
- Partially Built-Out as Standard Office
- Finished Ceilings: 13’
- High Ceilings
- High ceilings throuhgout
- Mostly Open Floor Plan Layout
- Space is in Excellent Condition
- Natural Light
- Outdoor Terrace - 2200 Square Feet
Terrific views and ample natural light with windows on all four sides Side-core floor plates with minimal columns, ideal for diverse use groups
- Partially Built-Out as Standard Office
- Finished Ceilings: 13’1”
- High Ceilings
- High ceilings throughout
- Open Floor Plan Layout
- Space is in Excellent Condition
- Natural Light
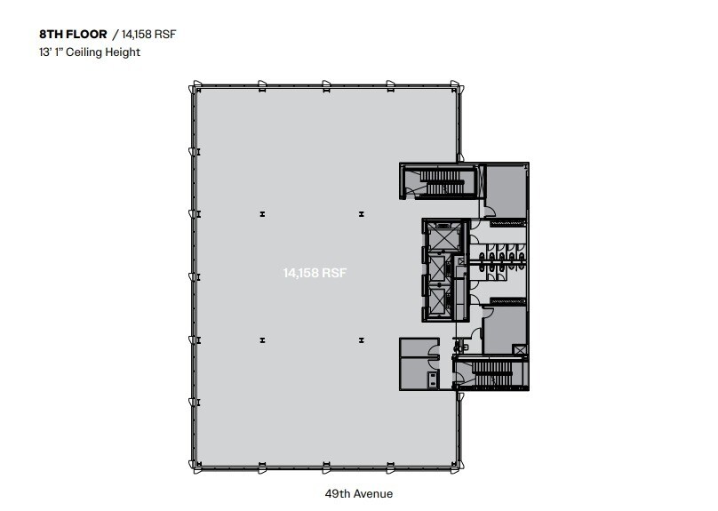
Terrific views and ample natural light with windows on all four sides Side-core floor plates with minimal columns, ideal for diverse use groups
- Partially Built-Out as Standard Office
- Finished Ceilings: 13’
- High Ceilings
- High ceilings throughout
- Open Floor Plan Layout
- Space is in Excellent Condition
- Natural Light
- Outdoor terrace - 2200 Square Feet
Terrific views and ample natural light with windows on all four sides Side-core floor plates with minimal columns, ideal for diverse use groups
- Partially Built-Out as Standard Office
- Finished Ceilings: 13’
- High Ceilings
- High ceilings throughout
- Open Floor Plan Layout
- Space is in Excellent Condition
- Natural Light
The Penthouse floor has a great exclusive terrace Terrific views and ample natural light with windows on all four sides Side-core floor plates with minimal columns, ideal for diverse use groups
- Partially Built-Out as Standard Office
- Finished Ceilings: 15’2”
- High Ceilings
- High ceilings throughout
- Open Floor Plan Layout
- Space is in Excellent Condition
- Natural Light
- Outdoor Terrace - 3500 Square Feet
| Space | Size | Term | Rental Rate | Space Use | Build-Out | Available |
| 5th Floor | 17,422 SF | Negotiable | Upon Request Upon Request Upon Request Upon Request | Office | Partial Build-Out | Now |
| 6th Floor | 17,422 SF | Negotiable | Upon Request Upon Request Upon Request Upon Request | Office | Partial Build-Out | Now |
| 7th Floor | 14,158 SF | Negotiable | Upon Request Upon Request Upon Request Upon Request | Office | Partial Build-Out | Now |
| 8th Floor | 14,158 SF | Negotiable | Upon Request Upon Request Upon Request Upon Request | Office | Partial Build-Out | Now |
| 9th Floor | 8,779 SF | Negotiable | Upon Request Upon Request Upon Request Upon Request | Office | Partial Build-Out | Now |
5th Floor
| Size |
| 17,422 SF |
| Term |
| Negotiable |
| Rental Rate |
| Upon Request Upon Request Upon Request Upon Request |
| Space Use |
| Office |
| Build-Out |
| Partial Build-Out |
| Available |
| Now |
6th Floor
| Size |
| 17,422 SF |
| Term |
| Negotiable |
| Rental Rate |
| Upon Request Upon Request Upon Request Upon Request |
| Space Use |
| Office |
| Build-Out |
| Partial Build-Out |
| Available |
| Now |
7th Floor
| Size |
| 14,158 SF |
| Term |
| Negotiable |
| Rental Rate |
| Upon Request Upon Request Upon Request Upon Request |
| Space Use |
| Office |
| Build-Out |
| Partial Build-Out |
| Available |
| Now |
8th Floor
| Size |
| 14,158 SF |
| Term |
| Negotiable |
| Rental Rate |
| Upon Request Upon Request Upon Request Upon Request |
| Space Use |
| Office |
| Build-Out |
| Partial Build-Out |
| Available |
| Now |
9th Floor
| Size |
| 8,779 SF |
| Term |
| Negotiable |
| Rental Rate |
| Upon Request Upon Request Upon Request Upon Request |
| Space Use |
| Office |
| Build-Out |
| Partial Build-Out |
| Available |
| Now |
5th Floor
| Size | 17,422 SF |
| Term | Negotiable |
| Rental Rate | Upon Request |
| Space Use | Office |
| Build-Out | Partial Build-Out |
| Available | Now |
Terrific views and ample natural light with windows on all four sides Side-core floor plates with minimal columns, ideal for diverse use groups
- Partially Built-Out as Standard Office
- Mostly Open Floor Plan Layout
- Finished Ceilings: 13’
- Space is in Excellent Condition
- High Ceilings
- Natural Light
- High ceilings throuhgout
- Outdoor Terrace - 2200 Square Feet
6th Floor
| Size | 17,422 SF |
| Term | Negotiable |
| Rental Rate | Upon Request |
| Space Use | Office |
| Build-Out | Partial Build-Out |
| Available | Now |
Terrific views and ample natural light with windows on all four sides Side-core floor plates with minimal columns, ideal for diverse use groups
- Partially Built-Out as Standard Office
- Open Floor Plan Layout
- Finished Ceilings: 13’1”
- Space is in Excellent Condition
- High Ceilings
- Natural Light
- High ceilings throughout
7th Floor
| Size | 14,158 SF |
| Term | Negotiable |
| Rental Rate | Upon Request |
| Space Use | Office |
| Build-Out | Partial Build-Out |
| Available | Now |
Terrific views and ample natural light with windows on all four sides Side-core floor plates with minimal columns, ideal for diverse use groups
- Partially Built-Out as Standard Office
- Open Floor Plan Layout
- Finished Ceilings: 13’
- Space is in Excellent Condition
- High Ceilings
- Natural Light
- High ceilings throughout
- Outdoor terrace - 2200 Square Feet
8th Floor
| Size | 14,158 SF |
| Term | Negotiable |
| Rental Rate | Upon Request |
| Space Use | Office |
| Build-Out | Partial Build-Out |
| Available | Now |
Terrific views and ample natural light with windows on all four sides Side-core floor plates with minimal columns, ideal for diverse use groups
- Partially Built-Out as Standard Office
- Open Floor Plan Layout
- Finished Ceilings: 13’
- Space is in Excellent Condition
- High Ceilings
- Natural Light
- High ceilings throughout
9th Floor
| Size | 8,779 SF |
| Term | Negotiable |
| Rental Rate | Upon Request |
| Space Use | Office |
| Build-Out | Partial Build-Out |
| Available | Now |
The Penthouse floor has a great exclusive terrace Terrific views and ample natural light with windows on all four sides Side-core floor plates with minimal columns, ideal for diverse use groups
- Partially Built-Out as Standard Office
- Open Floor Plan Layout
- Finished Ceilings: 15’2”
- Space is in Excellent Condition
- High Ceilings
- Natural Light
- High ceilings throughout
- Outdoor Terrace - 3500 Square Feet
Property Overview
Gantry Point marks the intersection where modern innovation meets the industrial roots of Long Island City. Positioned at the gateway between Manhattan and Queens, it’s a pivotal point of connection—linking the energy of the city with the evolving landscape of Long Island. Spanning 240,000 RSF, the building is designed to impress, with light streaming in from all four sides, soaring ceilings that amplify openness, and multiple outdoor terraces that bring fresh air and inspiration. Conveniently located near the Long Island Expressway, just a block from the 7 train and Hunterspoint Avenue LIRR station, Gantry Point offers seamless access to Manhattan, Queens, and beyond. It’s built for those who see possibility in every direction.
- Atrium
- Commuter Rail
- Courtyard
- Fenced Lot
- Metro/Subway
- Property Manager on Site
- Security System
- Wheelchair Accessible
- Reception
- Bicycle Storage
- Central Heating
- High Ceilings
- Natural Light
- Air Conditioning
- On-Site Security Staff
Property Facts
Select Tenants
- Floor
- Tenant Name
- Industry
- Multiple
- Sotheby's
- Retailer
Presented by
Gantry Point | 25- 11 49th Ave
Hmm, there seems to have been an error sending your message. Please try again.
Thanks! Your message was sent.










