Your email has been sent.
All Available Spaces(19)
Display Rental Rate as
- Space
- Size
- Term
- Rental Rate
- Space Use
- Condition
- Available
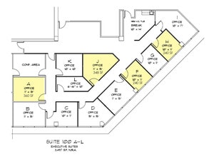
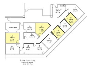
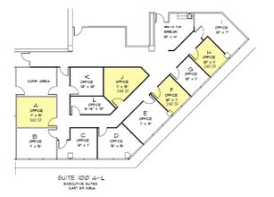
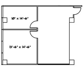
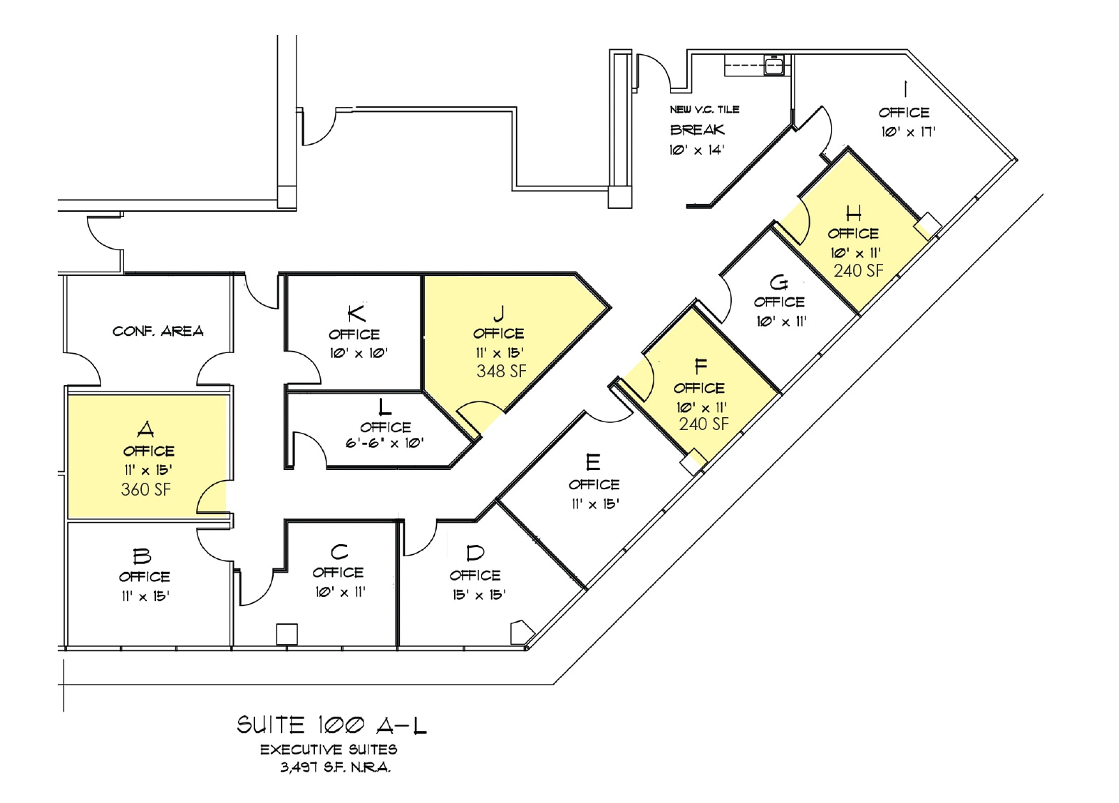
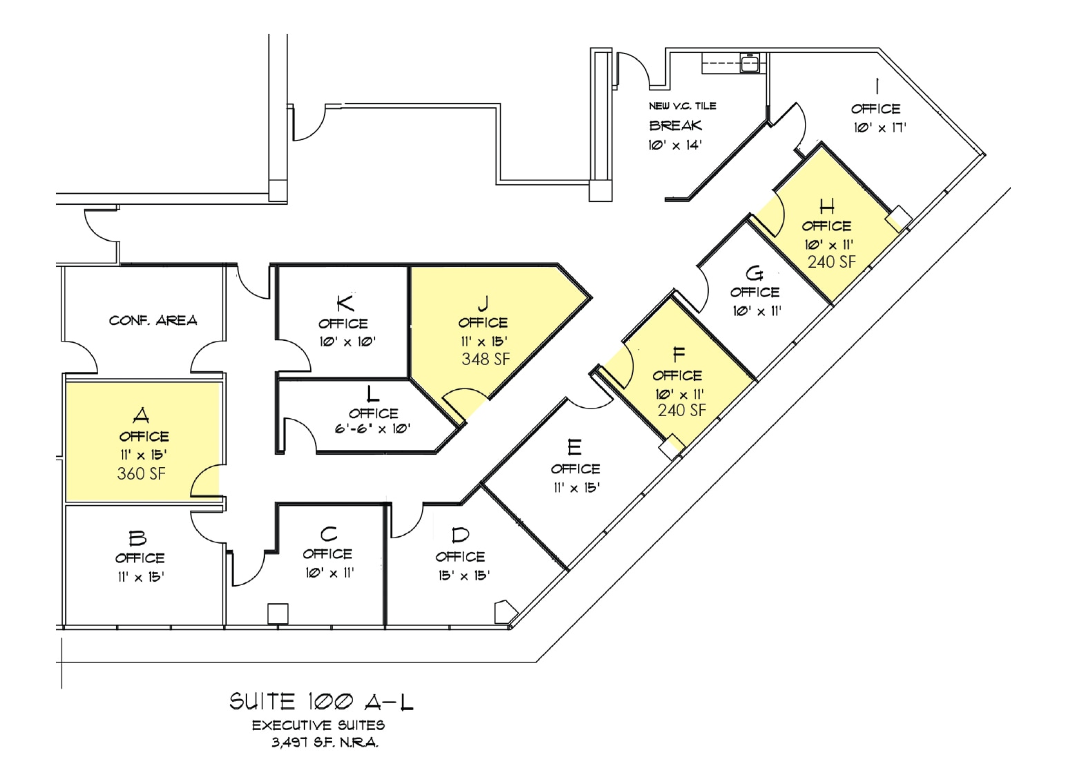
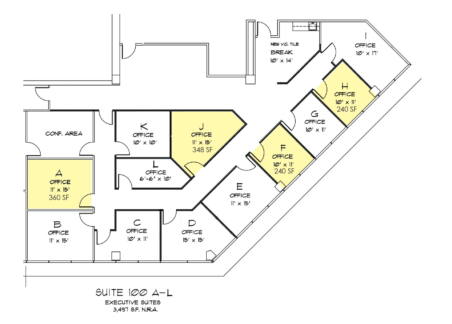
Suite 100-A is an executive suite which is part of the Stone Mountain Business Centers. These executive suites offer a shared reception, breakarea, and conference room.
- Rate includes utilities, building services and property expenses
- 1 Private Office
- Space is in Excellent Condition
- Kitchen
- Fully Built-Out as Standard Office
- 1 Conference Room
- Reception Area
Suite 100-F is an executive suite which is part of the Stone Mountain Business Centers. These executive suites offer a shared reception, break area, and conference room.
- Rate includes utilities, building services and property expenses
- 1 Private Office
- Space is in Excellent Condition
- Kitchen
- Fully Built-Out as Standard Office
- 1 Conference Room
- Reception Area
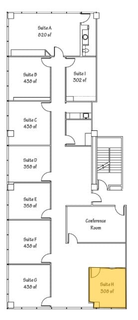
Suite 100-H is an executive suite which is part of the Stone Mountain Business Centers. These executive suites offer a shared reception, break area, and conference room.
- Rate includes utilities, building services and property expenses
- 1 Private Office
- Space is in Excellent Condition
- Kitchen
- Fully Built-Out as Standard Office
- 1 Conference Room
- Reception Area
- Rate includes utilities, building services and property expenses
- Mostly Open Floor Plan Layout
- 1 Conference Room
- Space is in Excellent Condition
- Print/Copy Room
- Fully Built-Out as Call Center
- 5 Private Offices
- 2 Workstations
- Kitchen
- Corner Space
Suite 180 offers two offices and front reception.
- Rate includes utilities, building services and property expenses
- 2 Private Offices
- Fully Built-Out as Standard Office
- Space is in Excellent Condition
Single Room Executive Office with Co-Working Conference Room and Breakroom. Free WIFI Included
- Rate includes utilities, building services and property expenses
- 1 Private Office
- Fully Built-Out as Standard Office
- Space is in Excellent Condition
Single Room Executive Office with Co-Working Conference Room and Breakroom. Free WIFI Included
- Rate includes utilities, building services and property expenses
- 1 Private Office
- Fully Built-Out as Standard Office
- Space is in Excellent Condition
Single Room Executive Office with Co-Working Conference Room and Breakroom. Free WIFI Included
- Rate includes utilities, building services and property expenses
- 1 Private Office
- Fully Built-Out as Standard Office
- Space is in Excellent Condition
Suite 210 offers 2 private and front reception.
- Rate includes utilities, building services and property expenses
- 2 Private Offices
- Fully Built-Out as Standard Office
- Space is in Excellent Condition
Suite 214 offers 2 private, front reception, and storage.
- Rate includes utilities, building services and property expenses
- 2 Private Offices
- Fully Built-Out as Standard Office
- Space is in Excellent Condition
Suite 220 offers 2 private office, conference room, and front reception.
- Rate includes utilities, building services and property expenses
- 2 Private Offices
- Space is in Excellent Condition
- Fully Built-Out as Standard Office
- 1 Conference Room
Reception, several offices, conference rm, kitchen
- Rate includes utilities, building services and property expenses
- Mostly Open Floor Plan Layout
- Fully Built-Out as Standard Office
- Rate includes utilities, building services and property expenses
- 5 Private Offices
- 1 Workstation
- Fully Built-Out as Standard Office
- 1 Conference Room
- Kitchen
- Rate includes utilities, building services and property expenses
- 6 Private Offices
- 1 Workstation
- Fully Built-Out as Standard Office
- 1 Conference Room
- Kitchen
Suite 415 offers 5 private offices, bullpen, and private restroom space.
- Rate includes utilities, building services and property expenses
- 5 Private Offices
- 2 Workstations
- Private Restrooms
- Natural Light
- Fully Built-Out as Standard Office
- 1 Conference Room
- Space is in Excellent Condition
- Corner Space
- Rate includes utilities, building services and property expenses
- Space is in Excellent Condition
- 2 Private Offices
Suite 435 is a spec space which can offer 2 private and front reception.
- Rate includes utilities, building services and property expenses
- Space is in Excellent Condition
- 2 Private Offices
Suite 440 is a spec space which can offer 4 private office, large bullpen for 8 workstations, storage, and front reception.
- Rate includes utilities, building services and property expenses
- 1 Workstation
- 4 Private Offices
- Space is in Excellent Condition
Suite 445 is a spec space which can offer 3 private office, large bullpen for 8 workstations, storage, and front reception.
- Rate includes utilities, building services and property expenses
- 1 Workstation
- 3 Private Offices
- Space is in Excellent Condition
| Space | Size | Term | Rental Rate | Space Use | Condition | Available |
| 1st Floor, Ste 100-A | 360 SF | Negotiable | $19.17 /SF/YR $1.60 /SF/MO $6,901 /YR $575.10 /MO | Office | Full Build-Out | Now |
| 1st Floor, Ste 100-F | 240 SF | Negotiable | $22.50 /SF/YR $1.88 /SF/MO $5,400 /YR $450.00 /MO | Office | Full Build-Out | Now |
| 1st Floor, Ste 100-H | 240 SF | Negotiable | $22.50 /SF/YR $1.88 /SF/MO $5,400 /YR $450.00 /MO | Office | Full Build-Out | Now |
| 1st Floor, Ste 128 | 5,210 SF | Negotiable | $17.00 /SF/YR $1.42 /SF/MO $88,570 /YR $7,381 /MO | Office | Full Build-Out | 60 Days |
| 1st Floor, Ste 180 | 869 SF | Negotiable | $17.00 /SF/YR $1.42 /SF/MO $14,773 /YR $1,231 /MO | Office | Full Build-Out | May 15, 2026 |
| 2nd Floor, Ste 200-F | 438 SF | Negotiable | $17.80 /SF/YR $1.48 /SF/MO $7,796 /YR $649.70 /MO | Office | Full Build-Out | Now |
| 2nd Floor, Ste 200-H | 308 SF | Negotiable | $21.23 /SF/YR $1.77 /SF/MO $6,539 /YR $544.90 /MO | Office | Full Build-Out | Now |
| 2nd Floor, Ste 200-I | 302 SF | Negotiable | $19.87 /SF/YR $1.66 /SF/MO $6,001 /YR $500.06 /MO | Office | Full Build-Out | Now |
| 2nd Floor, Ste 210 | 697 SF | Negotiable | $17.00 /SF/YR $1.42 /SF/MO $11,849 /YR $987.42 /MO | Office | Full Build-Out | Now |
| 2nd Floor, Ste 214 | 997 SF | Negotiable | $17.00 /SF/YR $1.42 /SF/MO $16,949 /YR $1,412 /MO | Office | Full Build-Out | Now |
| 2nd Floor, Ste 220 | 791 SF | Negotiable | $17.00 /SF/YR $1.42 /SF/MO $13,447 /YR $1,121 /MO | Office | Full Build-Out | Now |
| 3rd Floor, Ste 320 | 2,109 SF | Negotiable | $17.00 /SF/YR $1.42 /SF/MO $35,853 /YR $2,988 /MO | Office | Full Build-Out | Now |
| 3rd Floor, Ste 333 | 2,623 SF | Negotiable | $17.00 /SF/YR $1.42 /SF/MO $44,591 /YR $3,716 /MO | Office | Full Build-Out | Now |
| 3rd Floor, Ste 380 | 2,546 SF | Negotiable | $17.00 /SF/YR $1.42 /SF/MO $43,282 /YR $3,607 /MO | Office | Full Build-Out | Now |
| 4th Floor, Ste 415 | 2,060 SF | Negotiable | $17.00 /SF/YR $1.42 /SF/MO $35,020 /YR $2,918 /MO | Office | Full Build-Out | Now |
| 4th Floor, Ste 420 | 862 SF | Negotiable | $17.00 /SF/YR $1.42 /SF/MO $14,654 /YR $1,221 /MO | Office | Spec Suite | Now |
| 4th Floor, Ste 435 | 611 SF | Negotiable | $17.00 /SF/YR $1.42 /SF/MO $10,387 /YR $865.58 /MO | Office | Spec Suite | Now |
| 4th Floor, Ste 440 | 815 SF | Negotiable | $17.00 /SF/YR $1.42 /SF/MO $13,855 /YR $1,155 /MO | Office | Spec Suite | Now |
| 4th Floor, Ste 445 | 905 SF | Negotiable | $17.00 /SF/YR $1.42 /SF/MO $15,385 /YR $1,282 /MO | Office | Spec Suite | Now |
1st Floor, Ste 100-A
| Size |
| 360 SF |
| Term |
| Negotiable |
| Rental Rate |
| $19.17 /SF/YR $1.60 /SF/MO $6,901 /YR $575.10 /MO |
| Space Use |
| Office |
| Condition |
| Full Build-Out |
| Available |
| Now |
1st Floor, Ste 100-F
| Size |
| 240 SF |
| Term |
| Negotiable |
| Rental Rate |
| $22.50 /SF/YR $1.88 /SF/MO $5,400 /YR $450.00 /MO |
| Space Use |
| Office |
| Condition |
| Full Build-Out |
| Available |
| Now |
1st Floor, Ste 100-H
| Size |
| 240 SF |
| Term |
| Negotiable |
| Rental Rate |
| $22.50 /SF/YR $1.88 /SF/MO $5,400 /YR $450.00 /MO |
| Space Use |
| Office |
| Condition |
| Full Build-Out |
| Available |
| Now |
1st Floor, Ste 128
| Size |
| 5,210 SF |
| Term |
| Negotiable |
| Rental Rate |
| $17.00 /SF/YR $1.42 /SF/MO $88,570 /YR $7,381 /MO |
| Space Use |
| Office |
| Condition |
| Full Build-Out |
| Available |
| 60 Days |
1st Floor, Ste 180
| Size |
| 869 SF |
| Term |
| Negotiable |
| Rental Rate |
| $17.00 /SF/YR $1.42 /SF/MO $14,773 /YR $1,231 /MO |
| Space Use |
| Office |
| Condition |
| Full Build-Out |
| Available |
| May 15, 2026 |
2nd Floor, Ste 200-F
| Size |
| 438 SF |
| Term |
| Negotiable |
| Rental Rate |
| $17.80 /SF/YR $1.48 /SF/MO $7,796 /YR $649.70 /MO |
| Space Use |
| Office |
| Condition |
| Full Build-Out |
| Available |
| Now |
2nd Floor, Ste 200-H
| Size |
| 308 SF |
| Term |
| Negotiable |
| Rental Rate |
| $21.23 /SF/YR $1.77 /SF/MO $6,539 /YR $544.90 /MO |
| Space Use |
| Office |
| Condition |
| Full Build-Out |
| Available |
| Now |
2nd Floor, Ste 200-I
| Size |
| 302 SF |
| Term |
| Negotiable |
| Rental Rate |
| $19.87 /SF/YR $1.66 /SF/MO $6,001 /YR $500.06 /MO |
| Space Use |
| Office |
| Condition |
| Full Build-Out |
| Available |
| Now |
2nd Floor, Ste 210
| Size |
| 697 SF |
| Term |
| Negotiable |
| Rental Rate |
| $17.00 /SF/YR $1.42 /SF/MO $11,849 /YR $987.42 /MO |
| Space Use |
| Office |
| Condition |
| Full Build-Out |
| Available |
| Now |
2nd Floor, Ste 214
| Size |
| 997 SF |
| Term |
| Negotiable |
| Rental Rate |
| $17.00 /SF/YR $1.42 /SF/MO $16,949 /YR $1,412 /MO |
| Space Use |
| Office |
| Condition |
| Full Build-Out |
| Available |
| Now |
2nd Floor, Ste 220
| Size |
| 791 SF |
| Term |
| Negotiable |
| Rental Rate |
| $17.00 /SF/YR $1.42 /SF/MO $13,447 /YR $1,121 /MO |
| Space Use |
| Office |
| Condition |
| Full Build-Out |
| Available |
| Now |
3rd Floor, Ste 320
| Size |
| 2,109 SF |
| Term |
| Negotiable |
| Rental Rate |
| $17.00 /SF/YR $1.42 /SF/MO $35,853 /YR $2,988 /MO |
| Space Use |
| Office |
| Condition |
| Full Build-Out |
| Available |
| Now |
3rd Floor, Ste 333
| Size |
| 2,623 SF |
| Term |
| Negotiable |
| Rental Rate |
| $17.00 /SF/YR $1.42 /SF/MO $44,591 /YR $3,716 /MO |
| Space Use |
| Office |
| Condition |
| Full Build-Out |
| Available |
| Now |
3rd Floor, Ste 380
| Size |
| 2,546 SF |
| Term |
| Negotiable |
| Rental Rate |
| $17.00 /SF/YR $1.42 /SF/MO $43,282 /YR $3,607 /MO |
| Space Use |
| Office |
| Condition |
| Full Build-Out |
| Available |
| Now |
4th Floor, Ste 415
| Size |
| 2,060 SF |
| Term |
| Negotiable |
| Rental Rate |
| $17.00 /SF/YR $1.42 /SF/MO $35,020 /YR $2,918 /MO |
| Space Use |
| Office |
| Condition |
| Full Build-Out |
| Available |
| Now |
4th Floor, Ste 420
| Size |
| 862 SF |
| Term |
| Negotiable |
| Rental Rate |
| $17.00 /SF/YR $1.42 /SF/MO $14,654 /YR $1,221 /MO |
| Space Use |
| Office |
| Condition |
| Spec Suite |
| Available |
| Now |
4th Floor, Ste 435
| Size |
| 611 SF |
| Term |
| Negotiable |
| Rental Rate |
| $17.00 /SF/YR $1.42 /SF/MO $10,387 /YR $865.58 /MO |
| Space Use |
| Office |
| Condition |
| Spec Suite |
| Available |
| Now |
4th Floor, Ste 440
| Size |
| 815 SF |
| Term |
| Negotiable |
| Rental Rate |
| $17.00 /SF/YR $1.42 /SF/MO $13,855 /YR $1,155 /MO |
| Space Use |
| Office |
| Condition |
| Spec Suite |
| Available |
| Now |
4th Floor, Ste 445
| Size |
| 905 SF |
| Term |
| Negotiable |
| Rental Rate |
| $17.00 /SF/YR $1.42 /SF/MO $15,385 /YR $1,282 /MO |
| Space Use |
| Office |
| Condition |
| Spec Suite |
| Available |
| Now |
1st Floor, Ste 100-A
| Size | 360 SF |
| Term | Negotiable |
| Rental Rate | $19.17 /SF/YR |
| Space Use | Office |
| Condition | Full Build-Out |
| Available | Now |
Suite 100-A is an executive suite which is part of the Stone Mountain Business Centers. These executive suites offer a shared reception, breakarea, and conference room.
- Rate includes utilities, building services and property expenses
- Fully Built-Out as Standard Office
- 1 Private Office
- 1 Conference Room
- Space is in Excellent Condition
- Reception Area
- Kitchen
1st Floor, Ste 100-F
| Size | 240 SF |
| Term | Negotiable |
| Rental Rate | $22.50 /SF/YR |
| Space Use | Office |
| Condition | Full Build-Out |
| Available | Now |
Suite 100-F is an executive suite which is part of the Stone Mountain Business Centers. These executive suites offer a shared reception, break area, and conference room.
- Rate includes utilities, building services and property expenses
- Fully Built-Out as Standard Office
- 1 Private Office
- 1 Conference Room
- Space is in Excellent Condition
- Reception Area
- Kitchen
1st Floor, Ste 100-H
| Size | 240 SF |
| Term | Negotiable |
| Rental Rate | $22.50 /SF/YR |
| Space Use | Office |
| Condition | Full Build-Out |
| Available | Now |
Suite 100-H is an executive suite which is part of the Stone Mountain Business Centers. These executive suites offer a shared reception, break area, and conference room.
- Rate includes utilities, building services and property expenses
- Fully Built-Out as Standard Office
- 1 Private Office
- 1 Conference Room
- Space is in Excellent Condition
- Reception Area
- Kitchen
1st Floor, Ste 128
| Size | 5,210 SF |
| Term | Negotiable |
| Rental Rate | $17.00 /SF/YR |
| Space Use | Office |
| Condition | Full Build-Out |
| Available | 60 Days |
- Rate includes utilities, building services and property expenses
- Fully Built-Out as Call Center
- Mostly Open Floor Plan Layout
- 5 Private Offices
- 1 Conference Room
- 2 Workstations
- Space is in Excellent Condition
- Kitchen
- Print/Copy Room
- Corner Space
1st Floor, Ste 180
| Size | 869 SF |
| Term | Negotiable |
| Rental Rate | $17.00 /SF/YR |
| Space Use | Office |
| Condition | Full Build-Out |
| Available | May 15, 2026 |
Suite 180 offers two offices and front reception.
- Rate includes utilities, building services and property expenses
- Fully Built-Out as Standard Office
- 2 Private Offices
- Space is in Excellent Condition
2nd Floor, Ste 200-F
| Size | 438 SF |
| Term | Negotiable |
| Rental Rate | $17.80 /SF/YR |
| Space Use | Office |
| Condition | Full Build-Out |
| Available | Now |
Single Room Executive Office with Co-Working Conference Room and Breakroom. Free WIFI Included
- Rate includes utilities, building services and property expenses
- Fully Built-Out as Standard Office
- 1 Private Office
- Space is in Excellent Condition
2nd Floor, Ste 200-H
| Size | 308 SF |
| Term | Negotiable |
| Rental Rate | $21.23 /SF/YR |
| Space Use | Office |
| Condition | Full Build-Out |
| Available | Now |
Single Room Executive Office with Co-Working Conference Room and Breakroom. Free WIFI Included
- Rate includes utilities, building services and property expenses
- Fully Built-Out as Standard Office
- 1 Private Office
- Space is in Excellent Condition
2nd Floor, Ste 200-I
| Size | 302 SF |
| Term | Negotiable |
| Rental Rate | $19.87 /SF/YR |
| Space Use | Office |
| Condition | Full Build-Out |
| Available | Now |
Single Room Executive Office with Co-Working Conference Room and Breakroom. Free WIFI Included
- Rate includes utilities, building services and property expenses
- Fully Built-Out as Standard Office
- 1 Private Office
- Space is in Excellent Condition
2nd Floor, Ste 210
| Size | 697 SF |
| Term | Negotiable |
| Rental Rate | $17.00 /SF/YR |
| Space Use | Office |
| Condition | Full Build-Out |
| Available | Now |
Suite 210 offers 2 private and front reception.
- Rate includes utilities, building services and property expenses
- Fully Built-Out as Standard Office
- 2 Private Offices
- Space is in Excellent Condition
2nd Floor, Ste 214
| Size | 997 SF |
| Term | Negotiable |
| Rental Rate | $17.00 /SF/YR |
| Space Use | Office |
| Condition | Full Build-Out |
| Available | Now |
Suite 214 offers 2 private, front reception, and storage.
- Rate includes utilities, building services and property expenses
- Fully Built-Out as Standard Office
- 2 Private Offices
- Space is in Excellent Condition
2nd Floor, Ste 220
| Size | 791 SF |
| Term | Negotiable |
| Rental Rate | $17.00 /SF/YR |
| Space Use | Office |
| Condition | Full Build-Out |
| Available | Now |
Suite 220 offers 2 private office, conference room, and front reception.
- Rate includes utilities, building services and property expenses
- Fully Built-Out as Standard Office
- 2 Private Offices
- 1 Conference Room
- Space is in Excellent Condition
3rd Floor, Ste 320
| Size | 2,109 SF |
| Term | Negotiable |
| Rental Rate | $17.00 /SF/YR |
| Space Use | Office |
| Condition | Full Build-Out |
| Available | Now |
Reception, several offices, conference rm, kitchen
- Rate includes utilities, building services and property expenses
- Fully Built-Out as Standard Office
- Mostly Open Floor Plan Layout
3rd Floor, Ste 333
| Size | 2,623 SF |
| Term | Negotiable |
| Rental Rate | $17.00 /SF/YR |
| Space Use | Office |
| Condition | Full Build-Out |
| Available | Now |
- Rate includes utilities, building services and property expenses
- Fully Built-Out as Standard Office
- 5 Private Offices
- 1 Conference Room
- 1 Workstation
- Kitchen
3rd Floor, Ste 380
| Size | 2,546 SF |
| Term | Negotiable |
| Rental Rate | $17.00 /SF/YR |
| Space Use | Office |
| Condition | Full Build-Out |
| Available | Now |
- Rate includes utilities, building services and property expenses
- Fully Built-Out as Standard Office
- 6 Private Offices
- 1 Conference Room
- 1 Workstation
- Kitchen
4th Floor, Ste 415
| Size | 2,060 SF |
| Term | Negotiable |
| Rental Rate | $17.00 /SF/YR |
| Space Use | Office |
| Condition | Full Build-Out |
| Available | Now |
Suite 415 offers 5 private offices, bullpen, and private restroom space.
- Rate includes utilities, building services and property expenses
- Fully Built-Out as Standard Office
- 5 Private Offices
- 1 Conference Room
- 2 Workstations
- Space is in Excellent Condition
- Private Restrooms
- Corner Space
- Natural Light
4th Floor, Ste 420
| Size | 862 SF |
| Term | Negotiable |
| Rental Rate | $17.00 /SF/YR |
| Space Use | Office |
| Condition | Spec Suite |
| Available | Now |
- Rate includes utilities, building services and property expenses
- 2 Private Offices
- Space is in Excellent Condition
4th Floor, Ste 435
| Size | 611 SF |
| Term | Negotiable |
| Rental Rate | $17.00 /SF/YR |
| Space Use | Office |
| Condition | Spec Suite |
| Available | Now |
Suite 435 is a spec space which can offer 2 private and front reception.
- Rate includes utilities, building services and property expenses
- 2 Private Offices
- Space is in Excellent Condition
4th Floor, Ste 440
| Size | 815 SF |
| Term | Negotiable |
| Rental Rate | $17.00 /SF/YR |
| Space Use | Office |
| Condition | Spec Suite |
| Available | Now |
Suite 440 is a spec space which can offer 4 private office, large bullpen for 8 workstations, storage, and front reception.
- Rate includes utilities, building services and property expenses
- 4 Private Offices
- 1 Workstation
- Space is in Excellent Condition
4th Floor, Ste 445
| Size | 905 SF |
| Term | Negotiable |
| Rental Rate | $17.00 /SF/YR |
| Space Use | Office |
| Condition | Spec Suite |
| Available | Now |
Suite 445 is a spec space which can offer 3 private office, large bullpen for 8 workstations, storage, and front reception.
- Rate includes utilities, building services and property expenses
- 3 Private Offices
- 1 Workstation
- Space is in Excellent Condition
Property Overview
Beautiful 4 story office building conveniently located at Westheimer Rd and Gray Falls Dr. in Southwest Houston. Local stable ownership with on-site responsive management and leasing. Attractive updated lobby with comfortable visitor seating. Open surface and reserved covered parking available with elevator access to the parking garage. Flexible leases available with many upgraded finishes in several suites. Great restaurants and many fast food locations nearby. FedEx Retail Store within one block. Please call for more information or to schedule your tour. Conveniently located at the corner of Gray Falls and Westheimer Drive. Minutes from Sam Houston Parkway, I-10, and Westpark Tollway.
- 24 Hour Access
- Bus Line
- Controlled Access
- Conferencing Facility
- Fenced Lot
- Property Manager on Site
- Security System
- Signage
- Central Heating
- Monument Signage
- Air Conditioning











































