Enter your email to login or create a free account
This feature is unavailable at the moment.
We apologize, but the feature you are trying to access is currently unavailable. We are aware of this issue and our team is working hard to resolve the matter.
Please check back in a few minutes. We apologize for the inconvenience.
- LoopNet Team
2601 S Mckenzie St
Foley, AL 36535
Tanger Foley Redevelopment · Property For Lease

Highlights
- Delivery 2026-2027
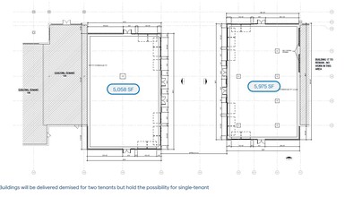
- Space Available: 4,197 SF up to 5,975 SF
Property Facts
| Property Type | Retail | Year Built/Renovated | 1988/1997 |
| Gross Leasable Area | 122,752 SF | Parking Ratio | 4.14/1,000 SF |
| Total Land Area | 13.07 AC |
| Property Type | Retail |
| Gross Leasable Area | 122,752 SF |
| Total Land Area | 13.07 AC |
| Year Built/Renovated | 1988/1997 |
| Parking Ratio | 4.14/1,000 SF |
About the Property
Baldwin County is one of the fastest growing counties in the U.S.—ranked #7 nationally by the Census Bureau and #1 in Alabama. Nearly all of that growth is driven by inbound migration, which continues to fuel sustained residential demand. Just 10 miles from the beach and surrounded by 18,000+ hotel rooms and rentals, Tanger Foley includes tenants like Nike, Coach, Under Armour, Kate Spade, Michael Kors,and Polo Ralph Lauren. Shopping here isn’t an afterthought—it’s a planned part of the Gulf Coast experience.
- Dedicated Turn Lane
- Food Court
- Signage
- Signalized Intersection
Attachments
| Foley - Tanger Brochure _09.2025_reduced |
Links
Listing ID: 39147133
Date on Market: 1/20/2026
Last Updated:
Address: 2601 S Mckenzie St, Foley, AL 36535
The Retail Property at 2601 S Mckenzie St, Foley, AL 36535 is no longer being advertised on LoopNet.com. Contact the broker for information on availability.
RETAIL PROPERTIES IN NEARBY NEIGHBORHOODS
