Your email has been sent.
Calabasas Commerce Center Bldg 1 26025 Mureau Rd 46,321 SF 22% Leased Office Building Calabasas, CA 91302 For Sale



Investment Highlights
- LOT SIZE 2.68 ACRES/ 116,622 SQUARE FEET
- CROSS STREETS MUREAU RD & LAS VIRGENES RD
- COVERED LAND PLAY EXISTING ±45,888 SF OFFICE BUILDING ARE CURRENTLY LEASED TO OFFSET CARRYING COSTS
- PRIME LOCATION LOCATED IN THE QUIET HILLS OF CALABASAS
- MIXED-USE DEVELOPMENT ZONE POTENTIAL TO INCREASE DENSITY & FAR WITH STATE DENSITY BONUS
- ZONING CMU (0.6)
Executive Summary
Currently positioned as a ±45,888 SF office facility, this 2.68 acre parcel is zoned CMU for mixed-use at ±20 dwelling units per acre (2,178 SF/du). This puts the ‘by-right’ unit count at fifty-three (53) units. There is an option to utilize the State Density Bonus to build up to one hundred eight (108) residential units in addition to commercial space (Buyer to verify). The property resides in the quiet hills of Calabasas and backs up to an upscale single-family community. New commercial tenants will benefit from the lack of adjacent amenities north of the -101 freeway with ability to capture demand from the northern and eastern residences.
Situated in a prime Calabasas location, this offering presents a rare opportunity to develop mixed-use in a heavily supply constrained, upscale market of Los Angeles.
Property Facts
Amenities
- Signage
Space Availability
- Space
- Size
- Space Use
- Condition
- Available
Awesome creative space with mix of executive offices, large conference rooms, break area, and open work space with 24'+ ceilings. Direct access from the parking lot to double door entry, no common lobby's, corridors or elevators. 4/1,000 parking, free & shared in common. Tenant to pay for its own separately metered electricity and janitorial.
Awesome creative space with mix of executive offices, large conference rooms, break area, and open work space with 24'+ ceilings. Direct access from the parking lot to double door entry, no common lobby's, corridors or elevators. 4/1,000 parking, free & shared in common. Tenant to pay for its own separately metered electricity and janitorial.
Plug and play with furniture if desired. Excellent window line. 12 private offices, 23 cubicles, break room, conference room. Private restrooms. Private elevator and entry directly off parking lot.
Spec suite with double door entry, mix of private offices, open work area, kitchen and conference rooms. Landlord will modify to suit a new tenant's space needs. The building has recently renovated common areas and excellent parking. Tenant to pay for Janitorial to its suite.
Contiguous in sizes from 3,999 SF, 8,088 SF, 14,628, 24,443 SF. Excellent window line in this corner suite with open work area, interior offices, conference room and break room.
| Space | Size | Space Use | Condition | Available |
| 1st Fl-Ste 100 | 9,815 SF | Office | Full Build-Out | Now |
| 1st Fl-Ste 110 | 11,670 SF | Office | Full Build-Out | Now |
| 2nd Fl-Ste 200 | 5,616 SF | Office | Spec Suite | Now |
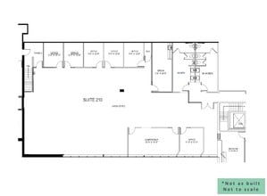
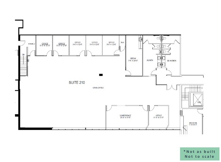
| 2nd Fl-Ste 210 | 4,894 SF | Office | Spec Suite | Now |
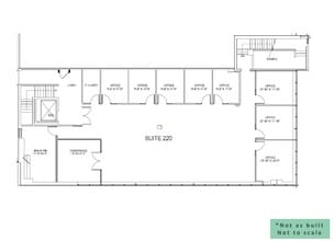
| 2nd Fl-Ste 220 | 3,999 SF | Office | Spec Suite | Now |
1st Fl-Ste 100
| Size |
| 9,815 SF |
| Space Use |
| Office |
| Condition |
| Full Build-Out |
| Available |
| Now |
1st Fl-Ste 110
| Size |
| 11,670 SF |
| Space Use |
| Office |
| Condition |
| Full Build-Out |
| Available |
| Now |
2nd Fl-Ste 200
| Size |
| 5,616 SF |
| Space Use |
| Office |
| Condition |
| Spec Suite |
| Available |
| Now |
2nd Fl-Ste 210
| Size |
| 4,894 SF |
| Space Use |
| Office |
| Condition |
| Spec Suite |
| Available |
| Now |
2nd Fl-Ste 220
| Size |
| 3,999 SF |
| Space Use |
| Office |
| Condition |
| Spec Suite |
| Available |
| Now |
1st Fl-Ste 100
| Size | 9,815 SF |
| Space Use | Office |
| Condition | Full Build-Out |
| Available | Now |
Awesome creative space with mix of executive offices, large conference rooms, break area, and open work space with 24'+ ceilings. Direct access from the parking lot to double door entry, no common lobby's, corridors or elevators. 4/1,000 parking, free & shared in common. Tenant to pay for its own separately metered electricity and janitorial.
1st Fl-Ste 110
| Size | 11,670 SF |
| Space Use | Office |
| Condition | Full Build-Out |
| Available | Now |
Awesome creative space with mix of executive offices, large conference rooms, break area, and open work space with 24'+ ceilings. Direct access from the parking lot to double door entry, no common lobby's, corridors or elevators. 4/1,000 parking, free & shared in common. Tenant to pay for its own separately metered electricity and janitorial.
2nd Fl-Ste 200
| Size | 5,616 SF |
| Space Use | Office |
| Condition | Spec Suite |
| Available | Now |
Plug and play with furniture if desired. Excellent window line. 12 private offices, 23 cubicles, break room, conference room. Private restrooms. Private elevator and entry directly off parking lot.
2nd Fl-Ste 210
| Size | 4,894 SF |
| Space Use | Office |
| Condition | Spec Suite |
| Available | Now |
Spec suite with double door entry, mix of private offices, open work area, kitchen and conference rooms. Landlord will modify to suit a new tenant's space needs. The building has recently renovated common areas and excellent parking. Tenant to pay for Janitorial to its suite.
2nd Fl-Ste 220
| Size | 3,999 SF |
| Space Use | Office |
| Condition | Spec Suite |
| Available | Now |
Contiguous in sizes from 3,999 SF, 8,088 SF, 14,628, 24,443 SF. Excellent window line in this corner suite with open work area, interior offices, conference room and break room.
Property Taxes
| Parcel Number | 2052-043-011 | Improvements Assessment | $5,596,840 |
| Land Assessment | $3,053,938 | Total Assessment | $8,650,778 |
Property Taxes
Presented by
Calabasas Commerce Center Bldg 1 | 26025 Mureau Rd
Hmm, there seems to have been an error sending your message. Please try again.
Thanks! Your message was sent.














