Log In/Sign Up
Your email has been sent.
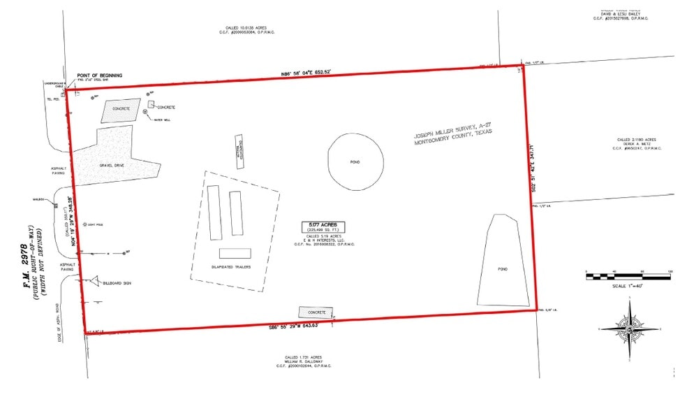
Investment Highlights
- 5.2226 Acres - Commercial land For Sale
- 344.7 feet of frontage on FM 2978 with 2 curb cuts
- Plans and permits in place to construct a ±38,908 s.f. warehouse with detention
- 5 minutes to Village of Sterling Ridge, & Village of Creekside Park Communities
- 10 minutes to Hwy 249 and 15 minutes to Grand Parkway (99)
Property Facts
1 Lot Available
Lot
| Lot Size | 5.17 AC |
| Lot Size | 5.17 AC |
• Land area (AC): 5.2226 • Land area (s.f.): 227,496 s.f. • Land use category: Commercial • Utilities available: Plans in place for well/septic • 344.7 feet of frontage on FM 2978 • Two curb cuts for easy ingress/egress
Description
• Land area (AC): 5.2226 • Land area (s.f.): 227,496 s.f. • Land use category: Commercial • Utilities available: Plans in place for well/septic • 344.7 feet of frontage on FM 2978 • Two curb cuts for easy ingress/egress • Property is cleared & ready for development
1 1
Somewhat walkable
20/100
Exceptionally drivable
100/100
Fairly bikeable
50/100
Property Taxes
| Parcel Number | 0027-01-07104 | Improvements Assessment | $0 |
| Land Assessment | $518,646 | Total Assessment | $518,646 |
Property Taxes
Parcel Number
0027-01-07104
Land Assessment
$518,646
Improvements Assessment
$0
Total Assessment
$518,646
1 of 16
Videos
Matterport 3D Exterior
Matterport 3D Tour
Photos
Street View
Street
Map
1 of 1
Presented by
26444 FM 2978
Already a member? Log In
Hmm, there seems to have been an error sending your message. Please try again.
Thanks! Your message was sent.



