Log In/Sign Up
Your email has been sent.
2660 Concession Road - 2660 Concession Road 1 Acre of Commercial Land in Kemptville, ON K0G 1J0



Investment Highlights
- Approximately 1 acre
- Development-Ready Site with services to the lot line
- Zoning: R4-1 Residential Fourth Density Zone
- Potential to develop up to 48 units
Executive Summary
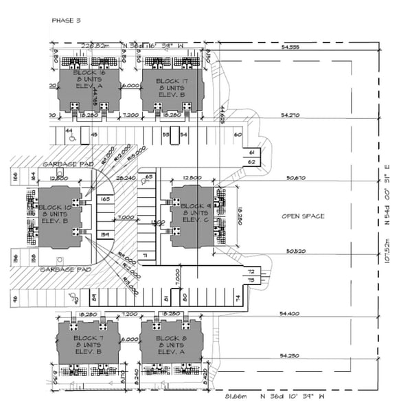
Representing the third Phase of a 3 - Phase development site in Kemptville known as Kemptville Meadows, this opportunity allows developers to acquire a site prime for development, with services to the lot line, existing storm water pond, and an existing park which satisfies Phase 3’s Parkland Dedication requirement. Phases 1 & 2 are complete and Phase 3 is ready for development. Phase 3 is site plan approved for six blocks of eight units. A purchaser may choose to move forward with
the six block plan or introduce a new vision for the lands.
the six block plan or introduce a new vision for the lands.
Property Facts Under Contract
| Sale Type | Investment | Property Subtype | Commercial |
| No. Lots | 1 | Proposed Use | |
| Property Type | Land | Total Lot Size | 1.00 AC |
| Zoning | R4-1 - R4-1 Residential Fourth Density Zone | ||
| Sale Type | Investment |
| No. Lots | 1 |
| Property Type | Land |
| Property Subtype | Commercial |
| Proposed Use | |
| Total Lot Size | 1.00 AC |
| Zoning | R4-1 - R4-1 Residential Fourth Density Zone |
1 Lot Available
Lot
| Lot Size | 1.00 AC |
| Lot Size | 1.00 AC |
The site benefits from immediate proximity to the South Branch Elementary School, North Grenville District High School, Kemptville Area Resource Centre, and Kemptville Hospital.
Description
The site benefits from immediate proximity to the South Branch Elementary School, North Grenville District High School, Kemptville Area Resource Centre, and Kemptville Hospital. Ample amenities at Kemptville Colonnade, and HWY 416 access in an approximate 5-minute drive.
1 1
Somewhat walkable
30/100
Exceptionally drivable
100/100
Fairly bikeable
50/100
1 of 5
Videos
Matterport 3D Exterior
Matterport 3D Tour
Photos
Street View
Street
Map
1 of 1
Presented by
2660 Concession Road - 2660 Concession Road
Already a member? Log In
Hmm, there seems to have been an error sending your message. Please try again.
Thanks! Your message was sent.
