Log In/Sign Up
Your email has been sent.
2726 E Broadway 161,128 SF Flex Building Alton, IL 62002 $525,000 ($3.26/SF)



INVESTMENT HIGHLIGHTS
- Large Free Span Warehouse
- Large Parking Area
- Overhead Garage Doors
- Zoned M-1 Light Industrial
EXECUTIVE SUMMARY
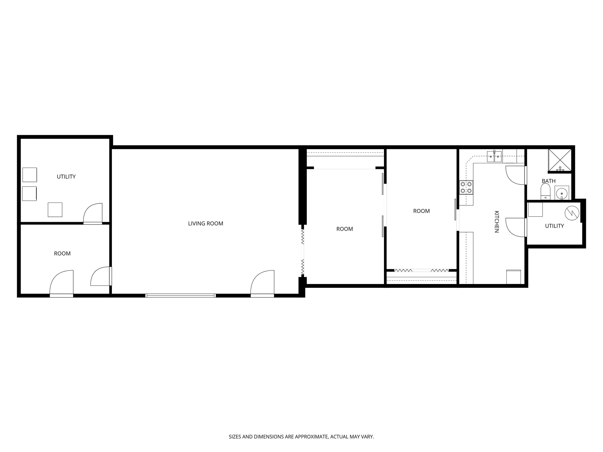
This property consists of 16,128 sf of office, garage, and warehouse space. Has been used as a car dealership, tile business and warehouse space. Building is zoned M-1 Light Industrial. There are 8 overhead doors for the warehouse and garages.
TAXES & OPERATING EXPENSES (ACTUAL - 2024) Click Here to Access |
ANNUAL | ANNUAL PER SF |
|---|---|---|
| Taxes |
$99,999
|
$9.99
|
| Operating Expenses |
$99,999
|
$9.99
|
| Total Expenses |
$99,999
|
$9.99
|
TAXES & OPERATING EXPENSES (ACTUAL - 2024) Click Here to Access
| Taxes | |
|---|---|
| Annual | $99,999 |
| Annual Per SF | $9.99 |
| Operating Expenses | |
|---|---|
| Annual | $99,999 |
| Annual Per SF | $9.99 |
| Total Expenses | |
|---|---|
| Annual | $99,999 |
| Annual Per SF | $9.99 |
PROPERTY FACTS
| Price | $525,000 | Lot Size | 0.97 AC |
| Price Per SF | $3.26 | Rentable Building Area | 161,128 SF |
| Sale Type | Owner User | No. Stories | 1 |
| Property Type | Flex | Year Built | 1964 |
| Zoning | M-1 - Light Industrial | ||
| Price | $525,000 |
| Price Per SF | $3.26 |
| Sale Type | Owner User |
| Property Type | Flex |
| Lot Size | 0.97 AC |
| Rentable Building Area | 161,128 SF |
| No. Stories | 1 |
| Year Built | 1964 |
| Zoning | M-1 - Light Industrial |
AMENITIES
- Controlled Access
- Fenced Lot
- Security System
- Storage Space
- Air Conditioning
UTILITIES
- Lighting - Fluorescent
- Gas - Natural
- Water - City
- Sewer - City
- Heating - Gas
1 1
PROPERTY TAXES
| Parcel Number | 23-2-08-18-11-204-008 | Total Assessment | $126,530 |
| Land Assessment | $32,380 | Annual Taxes | ($1) ($0.00/SF) |
| Improvements Assessment | $94,150 | Tax Year | 2024 Payable 2025 |
PROPERTY TAXES
Parcel Number
23-2-08-18-11-204-008
Land Assessment
$32,380
Improvements Assessment
$94,150
Total Assessment
$126,530
Annual Taxes
($1) ($0.00/SF)
Tax Year
2024 Payable 2025
1 of 23
VIDEOS
MATTERPORT 3D EXTERIOR
MATTERPORT 3D TOUR
PHOTOS
STREET VIEW
STREET
MAP
1 of 1
Presented by
2726 E Broadway
Already a member? Log In
Hmm, there seems to have been an error sending your message. Please try again.
Thanks! Your message was sent.
