Your email has been sent.
Highlights
- Heavy traffic
- Immediate Proximity to the Battery & Truist Park
- Prime Location
- Excellent Access to I-75, 285, US Hwy41
- Parking
All Available Spaces(2)
Display Rental Rate as
- Space
- Size
- Term
- Rental Rate
- Space Use
- Build-Out
- Available
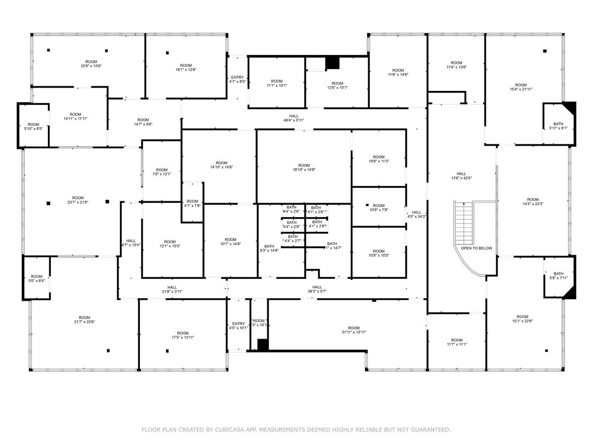
The subject is a 13,500-square-foot two-story office building constructed in 1982, that needs renovation. The subject’s classification is a 2-Star office, as per CoStar classification. Landlord is open to considering both NNN and Ground Lease LOIs. Full Service and Modified Gross LOIs will not be reviewed. The building is vacant; parking lot is currently being utilized. 2023 Taxes: $27,468.76 ($2.03psf) and current insurance for the vacant building is $10,078.64 ($.75psf).
- Listed rate may not include certain utilities, building services and property expenses
- Office intensive layout
- Partitioned Offices
- Space In Need of Renovation
- Central Air and Heating
- After Hours HVAC Available
- Heavy Traffic
- Immediate Proximity to the Battery & Truist Park
- Fully Built-Out as Standard Office
- Fits 17 - 52 People
- Conference Rooms
- Can be combined with additional space(s) for up to 13,000 SF of adjacent space
- Drop Ceilings
- Common Parts WC Facilities
- Excellent Access to I-75, 285, US Hwy41
- Parking
The subject is a 13,500-square-foot two-story office building constructed in 1982, that needs renovation. The subject’s classification is a 2-Star office, as per CoStar classification. Landlord is open to considering both NNN and Ground Lease LOIs. Full Service and Modified Gross LOIs will not be reviewed. The building is vacant; parking lot is currently being utilized. 2023 Taxes: $27,468.76 ($2.03psf) and current insurance for the vacant building is $10,078.64 ($.75psf).
- Listed rate may not include certain utilities, building services and property expenses
- Office intensive layout
- Partitioned Offices
- Space In Need of Renovation
- Central Air and Heating
- After Hours HVAC Available
- Heavy Traffic
- Immediate Proximity to the Battery & Truist Park
- Fully Built-Out as Standard Office
- Fits 17 - 52 People
- Conference Rooms
- Can be combined with additional space(s) for up to 13,000 SF of adjacent space
- Drop Ceilings
- Common Parts WC Facilities
- Excellent Access to I-75, 285, US Hwy41
- Parking
| Space | Size | Term | Rental Rate | Space Use | Build-Out | Available |
| 1st Floor | 6,500 SF | 3-10 Years | Upon Request Upon Request Upon Request Upon Request | Office | Full Build-Out | Now |
| 2nd Floor | 6,500 SF | 3-10 Years | $17.00 /SF/YR $1.42 /SF/MO $110,500 /YR $9,208 /MO | Office | Full Build-Out | Now |
1st Floor
| Size |
| 6,500 SF |
| Term |
| 3-10 Years |
| Rental Rate |
| Upon Request Upon Request Upon Request Upon Request |
| Space Use |
| Office |
| Build-Out |
| Full Build-Out |
| Available |
| Now |
2nd Floor
| Size |
| 6,500 SF |
| Term |
| 3-10 Years |
| Rental Rate |
| $17.00 /SF/YR $1.42 /SF/MO $110,500 /YR $9,208 /MO |
| Space Use |
| Office |
| Build-Out |
| Full Build-Out |
| Available |
| Now |
1st Floor
| Size | 6,500 SF |
| Term | 3-10 Years |
| Rental Rate | Upon Request |
| Space Use | Office |
| Build-Out | Full Build-Out |
| Available | Now |
The subject is a 13,500-square-foot two-story office building constructed in 1982, that needs renovation. The subject’s classification is a 2-Star office, as per CoStar classification. Landlord is open to considering both NNN and Ground Lease LOIs. Full Service and Modified Gross LOIs will not be reviewed. The building is vacant; parking lot is currently being utilized. 2023 Taxes: $27,468.76 ($2.03psf) and current insurance for the vacant building is $10,078.64 ($.75psf).
- Listed rate may not include certain utilities, building services and property expenses
- Fully Built-Out as Standard Office
- Office intensive layout
- Fits 17 - 52 People
- Partitioned Offices
- Conference Rooms
- Space In Need of Renovation
- Can be combined with additional space(s) for up to 13,000 SF of adjacent space
- Central Air and Heating
- Drop Ceilings
- After Hours HVAC Available
- Common Parts WC Facilities
- Heavy Traffic
- Excellent Access to I-75, 285, US Hwy41
- Immediate Proximity to the Battery & Truist Park
- Parking
2nd Floor
| Size | 6,500 SF |
| Term | 3-10 Years |
| Rental Rate | $17.00 /SF/YR |
| Space Use | Office |
| Build-Out | Full Build-Out |
| Available | Now |
The subject is a 13,500-square-foot two-story office building constructed in 1982, that needs renovation. The subject’s classification is a 2-Star office, as per CoStar classification. Landlord is open to considering both NNN and Ground Lease LOIs. Full Service and Modified Gross LOIs will not be reviewed. The building is vacant; parking lot is currently being utilized. 2023 Taxes: $27,468.76 ($2.03psf) and current insurance for the vacant building is $10,078.64 ($.75psf).
- Listed rate may not include certain utilities, building services and property expenses
- Fully Built-Out as Standard Office
- Office intensive layout
- Fits 17 - 52 People
- Partitioned Offices
- Conference Rooms
- Space In Need of Renovation
- Can be combined with additional space(s) for up to 13,000 SF of adjacent space
- Central Air and Heating
- Drop Ceilings
- After Hours HVAC Available
- Common Parts WC Facilities
- Heavy Traffic
- Excellent Access to I-75, 285, US Hwy41
- Immediate Proximity to the Battery & Truist Park
- Parking
Property Overview
Prime Location in Cumberland/Galleria – Single-Tenant Office Building Available! Currently listed as a single-occupancy office, yet may consider ground leases with redevelopment opportunity. Unlock the potential of your business with this exceptional office space for lease at 2781 Windy Ridge Parkway SE, Atlanta, GA 30339, strategically located adjacent to The Battery Atlanta and Truist Park. This former professional services building offers a prestigious address with unmatched visibility and access in the vibrant Cumberland/Galleria business district. • Single-Tenant Opportunity: Exclusive use of a standalone building, perfect for businesses seeking privacy and brand prominence. • Prime Location: High-traffic area with excellent access to I-75 and I-285, minutes from major corporate hubs like The Home Depot and The Weather Channel. • Signage Opportunities: High-visibility to boost your brand in a bustling commercial corridor. • Area Amenities: Surrounded by restaurants, shopping, and entertainment at The Battery Atlanta, plus proximity to SunTrust Park for sporting events. • Transit Access: Conveniently accessible via US Highway 41, I-75, I-285, and MARTA bus lines at the Cumberland/Galleria Transfer Station. The subject is approx. 13,500-square-foot two-story office building constructed in 1982, that needs some renovation and currently classified a 2-Star office, as per CoStar. The Battery, mixed-use development centered around Truist Park, has helped reshape this area of metro Atlanta. The subject is located in the heart of high-end retail, office, apartment, and entertainment offerings. Why Choose 2781 Windy Ridge Parkway? This property is ideal for businesses looking to establish a presence in one of Atlanta’s fastest-growing commercial neighborhoods. With over 18 million square feet of office space in the Cumberland/Galleria area, this location offers a dynamic environment for those seeking a strategic suburban hub with urban connectivity.
- 24 Hour Access
- Conferencing Facility
- Signage
- Storage Space
Property Facts
Presented by
2781 Windy Ridge Pky SE
Hmm, there seems to have been an error sending your message. Please try again.
Thanks! Your message was sent.








