Your email has been sent.
Highlights
- Recently renovated lobby and directory board
- Convenient to restaurants/services/shopping
- Abundant parking (4.18/1,000 sf)
- Building eyebrow signage visible from I-64
- Zoning Allows: Laboratory, Research & Development, Light Manufacturing
- Conveniently located near W. Broad Street & Glenside Drive at I-64
All Available Spaces(6)
Display Rental Rate as
- Space
- Size
- Term
- Rental Rate
- Space Use
- Build-Out
- Available
Can combine with space 210- see site plan
- Fully Built-Out as Standard Office
- Mostly Open Floor Plan Layout
Combinable with space 200 for a total of 5,970 SF
- Fully Built-Out as Standard Office
- Mostly Open Floor Plan Layout
Is available alone with 1,650 Sf or can combine with Suite 390 for a total of 3,640 SF.
- Listed rate may not include certain utilities, building services and property expenses
- Mostly Open Floor Plan Layout
- Space is in Excellent Condition
- Fully Built-Out as Standard Office
- 6 Private Offices
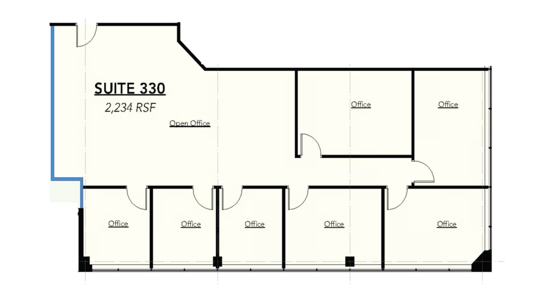
Suite 330 contains our private office's which range from 85 to 150 SF. Our suites also include Wi-Fi, a shared kitchenette, conference room, and waiting room.
- Fully Built-Out as Standard Office
- 1 Conference Room
- Wi-Fi Connectivity
- Natural Light
- 7 Private Offices
- Space is in Excellent Condition
- Drop Ceilings
Former dental lab space with 9 sinks in place. Zoning allows: Laboratory, R&D, Medical / Lab, and light manufacturing
- Rate includes utilities, building services and property expenses
- Office intensive layout
- Laboratory
- Former Dental Lab
- Fully Built-Out as Dental Office Space
- Space is in Excellent Condition
- Great for Dental or Medical Use
- 9 Sinks in Place
- Rate includes utilities, building services and property expenses
- Office intensive layout
- Fully Built-Out as Standard Office
- Space is in Excellent Condition
| Space | Size | Term | Rental Rate | Space Use | Build-Out | Available |
| 2nd Floor, Ste 200 | 2,849-5,970 SF | Negotiable | Upon Request Upon Request Upon Request Upon Request | Office | Full Build-Out | Now |
| 2nd Floor, Ste 210 | 3,121-5,970 SF | Negotiable | Upon Request Upon Request Upon Request Upon Request | Office | Full Build-Out | Now |
| 3rd Floor, Ste 380 | 1,650 SF | Negotiable | Upon Request Upon Request Upon Request Upon Request | Office | Full Build-Out | Now |
| 3rd Floor, Ste Executive Suites 330 | 85-250 SF | Negotiable | Upon Request Upon Request Upon Request Upon Request | Office | Full Build-Out | Now |
| 5th Floor, Ste 510 | 1,429-10,026 SF | Negotiable | Upon Request Upon Request Upon Request Upon Request | Office/Medical | Full Build-Out | Now |
| 5th Floor, Ste 540 | 1,732 SF | Negotiable | Upon Request Upon Request Upon Request Upon Request | Office | Full Build-Out | Now |
2nd Floor, Ste 200
| Size |
| 2,849-5,970 SF |
| Term |
| Negotiable |
| Rental Rate |
| Upon Request Upon Request Upon Request Upon Request |
| Space Use |
| Office |
| Build-Out |
| Full Build-Out |
| Available |
| Now |
2nd Floor, Ste 210
| Size |
| 3,121-5,970 SF |
| Term |
| Negotiable |
| Rental Rate |
| Upon Request Upon Request Upon Request Upon Request |
| Space Use |
| Office |
| Build-Out |
| Full Build-Out |
| Available |
| Now |
3rd Floor, Ste 380
| Size |
| 1,650 SF |
| Term |
| Negotiable |
| Rental Rate |
| Upon Request Upon Request Upon Request Upon Request |
| Space Use |
| Office |
| Build-Out |
| Full Build-Out |
| Available |
| Now |
3rd Floor, Ste Executive Suites 330
| Size |
| 85-250 SF |
| Term |
| Negotiable |
| Rental Rate |
| Upon Request Upon Request Upon Request Upon Request |
| Space Use |
| Office |
| Build-Out |
| Full Build-Out |
| Available |
| Now |
5th Floor, Ste 510
| Size |
| 1,429-10,026 SF |
| Term |
| Negotiable |
| Rental Rate |
| Upon Request Upon Request Upon Request Upon Request |
| Space Use |
| Office/Medical |
| Build-Out |
| Full Build-Out |
| Available |
| Now |
5th Floor, Ste 540
| Size |
| 1,732 SF |
| Term |
| Negotiable |
| Rental Rate |
| Upon Request Upon Request Upon Request Upon Request |
| Space Use |
| Office |
| Build-Out |
| Full Build-Out |
| Available |
| Now |
2nd Floor, Ste 200
| Size | 2,849-5,970 SF |
| Term | Negotiable |
| Rental Rate | Upon Request |
| Space Use | Office |
| Build-Out | Full Build-Out |
| Available | Now |
Can combine with space 210- see site plan
- Fully Built-Out as Standard Office
- Mostly Open Floor Plan Layout
2nd Floor, Ste 210
| Size | 3,121-5,970 SF |
| Term | Negotiable |
| Rental Rate | Upon Request |
| Space Use | Office |
| Build-Out | Full Build-Out |
| Available | Now |
Combinable with space 200 for a total of 5,970 SF
- Fully Built-Out as Standard Office
- Mostly Open Floor Plan Layout
3rd Floor, Ste 380
| Size | 1,650 SF |
| Term | Negotiable |
| Rental Rate | Upon Request |
| Space Use | Office |
| Build-Out | Full Build-Out |
| Available | Now |
Is available alone with 1,650 Sf or can combine with Suite 390 for a total of 3,640 SF.
- Listed rate may not include certain utilities, building services and property expenses
- Fully Built-Out as Standard Office
- Mostly Open Floor Plan Layout
- 6 Private Offices
- Space is in Excellent Condition
3rd Floor, Ste Executive Suites 330
| Size | 85-250 SF |
| Term | Negotiable |
| Rental Rate | Upon Request |
| Space Use | Office |
| Build-Out | Full Build-Out |
| Available | Now |
Suite 330 contains our private office's which range from 85 to 150 SF. Our suites also include Wi-Fi, a shared kitchenette, conference room, and waiting room.
- Fully Built-Out as Standard Office
- 7 Private Offices
- 1 Conference Room
- Space is in Excellent Condition
- Wi-Fi Connectivity
- Drop Ceilings
- Natural Light
5th Floor, Ste 510
| Size | 1,429-10,026 SF |
| Term | Negotiable |
| Rental Rate | Upon Request |
| Space Use | Office/Medical |
| Build-Out | Full Build-Out |
| Available | Now |
Former dental lab space with 9 sinks in place. Zoning allows: Laboratory, R&D, Medical / Lab, and light manufacturing
- Rate includes utilities, building services and property expenses
- Fully Built-Out as Dental Office Space
- Office intensive layout
- Space is in Excellent Condition
- Laboratory
- Great for Dental or Medical Use
- Former Dental Lab
- 9 Sinks in Place
5th Floor, Ste 540
| Size | 1,732 SF |
| Term | Negotiable |
| Rental Rate | Upon Request |
| Space Use | Office |
| Build-Out | Full Build-Out |
| Available | Now |
- Rate includes utilities, building services and property expenses
- Fully Built-Out as Standard Office
- Office intensive layout
- Space is in Excellent Condition
Property Overview
Commerce Plaza I is a M1 zoned five-story office building with two-story atrium lobby. Conveniently located near West Broad Street & Glenside Drive at I-64. Zoning Includes: Office, Laboratory, Research & Development, Light Manufacturing, Commercial Printing.
- Signage
Property Facts
Select Tenants
- Floor
- Tenant Name
- Industry
- 2nd
- DK Workspaces
- Wholesaler
- 1st
- Dominion Focus Group Inc
- Professional, Scientific, and Technical Services
- 5th
- ECPI College of Technology
- -
- 3rd
- J B Hunt
- Transportation and Warehousing
- 2nd
- Lynch & Seli, P.C.
- Professional, Scientific, and Technical Services
- 1st
- National Clinical Research
- Professional, Scientific, and Technical Services
- 3rd
- Radio One
- Information
- 2nd
- Securitas Security Service USA
- Professional, Scientific, and Technical Services
- 1st
- StoneMor Operating, LLC
- Services
- 5th
- WBTK
- Information
Presented by
Commerce Plaza I | 2809 Emerywood Pky
Hmm, there seems to have been an error sending your message. Please try again.
Thanks! Your message was sent.






















