This feature is unavailable at the moment.
We apologize, but the feature you are trying to access is currently unavailable. We are aware of this issue and our team is working hard to resolve the matter.
Please check back in a few minutes. We apologize for the inconvenience.
- LoopNet Team
2836 Eastchester Highway 68 Mendenhall Oaks Airport S
High Point, NC 27265
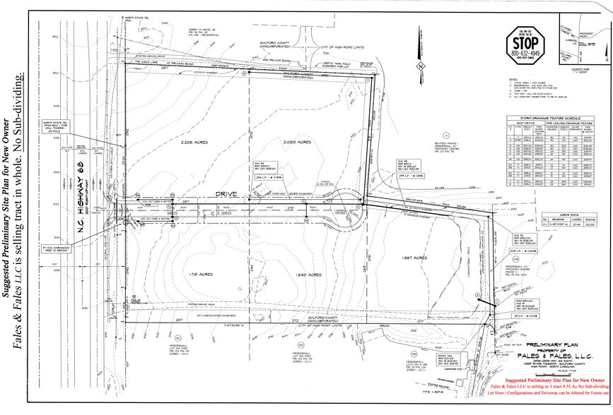
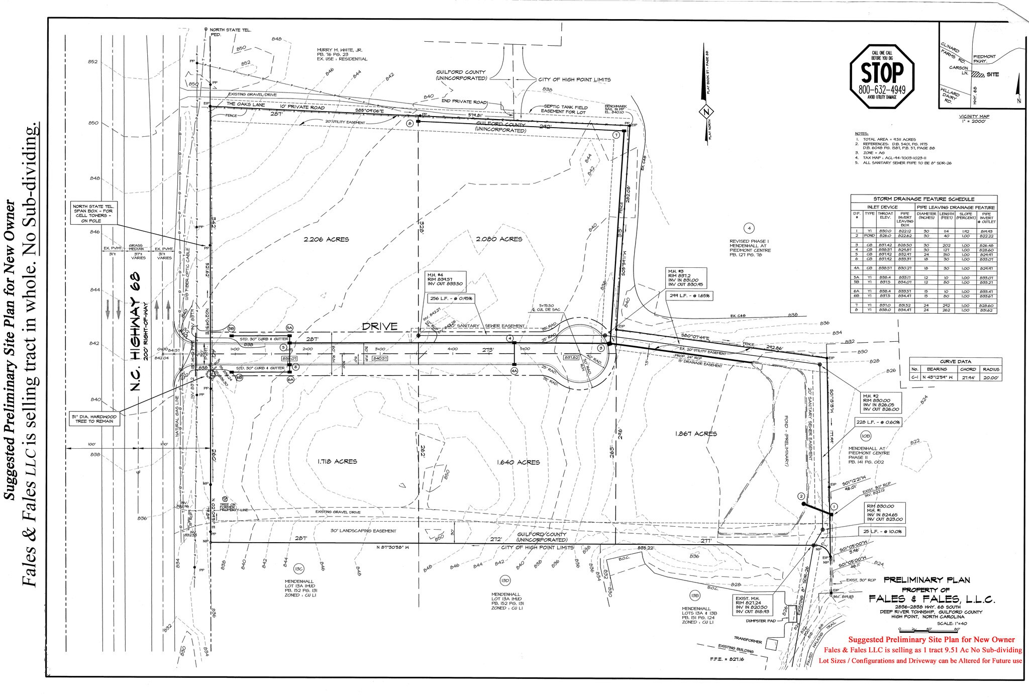
9.51 ac 2836 Hwy 68 High Point NC · Land For Sale
·
9.51 AC

PROPERTY FACTS
DESCRIPTION
$75,000/ac Updated Environmental Report 1 Clear Title Appraised for $208,000/ac Jan 2012 NO Underground Utilities, NO High Voltage Power Lines or NO Creeks......MAXIMUM DEVELOPMENT Hwy 68 Scheduled to be Widened to 6 lanes Project Number U-5974 LARGEST TRACT AVAILABLE ON EAST SIDE OF HWY 68 FROM WENDOVER AVE TO I-40 2836-2838 Highway 68 South Selling as whole tract - No Sub-dividing This site can be broken down and developed into lots or used in whole...... Buyer decides how to use. Site offers 600 feet of highway frontage at street grade, with direct highway access from Hwy 68. Along with high visibility daily traffic count at 35,000+. This site has Sewer, Water, Power & FIBER on site! Located 5 minutes from I-40 and less than 12 minutes from PTI Airport. Call Mark Fales 336-707-5259
LINKS
PROPERTY TAXES
| Parcel Number | 0169871 | Improvements Assessment | $0 |
| Land Assessment | $600,100 | Total Assessment | $600,100 |
PROPERTY TAXES
Listing ID: 8417107
Date on Market: 7/31/2017
Last Updated:
Address: 2836 Eastchester Highway 68 Mendenhall Oaks Airport S, High Point, NC 27265
The Jamestown/High Point Land Property at 2836 Eastchester Highway 68 Mendenhall Oaks Airport S, High Point, NC 27265 is no longer being advertised on LoopNet.com. Contact the broker for information on availability.
LAND PROPERTIES IN NEARBY NEIGHBORHOODS
- Outer Northwest I-40 Corridor Commercial Land
- Greater High Point Commercial Land
- Jamestown/High Point Commercial Land
- Downtown High Point Commercial Land
- Downtown Kernersville Commercial Land
- The Thicket Commercial Land
- Northwest Greensboro Commercial Land
- Hamilton Hills Commercial Land
- Brice Street Area Commercial Land
- Guilford Hills Commercial Land
- Sedge Field Commercial Land
- Asheboro Community Commercial Land
- Fisher Park Commercial Land
- Downtown Greensboro Commercial Land
NEARBY LISTINGS
- 8015 Thorndike Rd, Greensboro NC
- 4522 - 4528 Walpole Rd, High Point NC
- 304 N Scientific St, Jamestown NC
- 4480 Premier Dr, High Point NC
- 1510 Skeet Club Rd, High Point NC
- Bridford Parkway & Big Tree Way,, Greensboro NC
- 217 Aloe Rd, Greensboro NC
- W Wendover Ave, High Point NC
- 321 NC-68, Greensboro NC
- 9078 W Market St, Colfax NC
- 3821 Sutton Way, High Point NC
- 8004 Houghton Rd, Greensboro NC
- 309 NC Hwy 68, Greensboro NC
- 8068 Houghton Rd., Colfax NC
- 8051 National Service Rd, Colfax NC
