Log In/Sign Up
Your email has been sent.
2842-2848 Fenwick Rd 2,171 - 4,661 SF Industrial Condo Units Offered at $518,904 - $1,114,054 Per Unit in Kelowna, BC V1X 5E4



Investment Highlights
- Parking available
- This industrial building is only minutes from UBCO, Kelowna International Airport, Highway 33 junction and Orchard Park Mall
- Direct access to and from Highway 97 at Fenwick Road
- Warehouse space features high ceilings (nearly 24 ft clear) and two grade-level loading bays, each with a 10’ x 12’ overhead door
Executive Summary
Self-contained industrial strata building located on Fenwick Road just off Highway 97 near Scandia Golf & Games
3 Units Available
- Unit
- Unit Size
- Condo Use
- Price
- NOI
| Sale Type | Investment | APN/Parcel ID | 032-299-354 |
| Sale Type | Investment |
| APN/Parcel ID | 032-299-354 |
Description
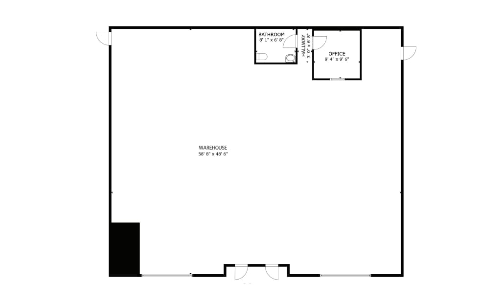
3,017 SF with large open warehouse space featuring high ceilings (nearly 24’ clear) and two 10’ x 12’ overhead doors for grade-level loading, as well as an office and washroom with light storage above.
Sale Notes
Stand-alone strata building in a newer industrial complex, located just off Highway 97 beside Scandia Golf & Games. Industrial building totaling approx. 3,017 SF with large open warehouse space featuring high ceilings (nearly 24’ clear) and two 10’ x 12’ overhead doors for grade-level loading, as well as an office and washroom with light storage above. Parking available to the front of the building. Direct access to and from Highway 97 at Fenwick Road. Minutes to UBCO, Kelowna International Airport, Highway 33 junction, and Orchard Park Mall. Building was built with the potential to demise the space into two smaller units.
| Sale Type | Investment |
| Sale Type | Investment |
Description
2,171 SF with versatile warehouse space, an office with light storage above it and in-suite washroom. Warehouse space with high ceilings (nearly 24’ clear) to either side of the office, each with a 10’ x 12’ overhead door, for grade level loading.
Sale Notes
Stand-alone building in a newer industrial complex for sale, located just off Highway 97 beside Scandia Golf & Games. Industrial building totals approx. 2,171 SF with versatile warehouse space, an office with light storage above it and in-suite washroom. Warehouse space with high ceilings (nearly 24’ clear) to either side of the office, each with a 10’ x 12’ overhead door, for grade level loading. Main entry door into the office space as well as a man-door into the warehouse space to the front of the building and man-doors into the warehouse space to the rear at both sides. Parking directly in front of the unit. Building was built to have the ability to demise as well. Direct access to and from Highway 97 at Fenwick Road. Minutes to UBCO, Kelowna International Airport, Highway 33 junction, and Orchard Park Mall.
| Sale Type | Investment | APN/Parcel ID | 032-299-371 |
| Sale Type | Investment |
| APN/Parcel ID | 032-299-371 |
Description
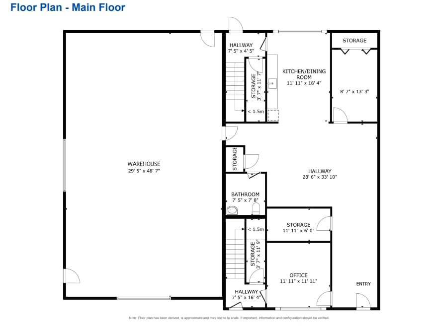
4,661 SF includes both warehouse space and office space. Warehouse occupies 1,528 SF in the west part of the building and features high ceilings (nearly 24’ clear) and 2 overhead doors for grade-level loading.
Sale Notes
Stand-alone strata building in a newer industrial complex, located just off Highway 97 beside Scandia Golf & Games. Industrial building totaling approx. 4,661 SF includes both warehouse space and office space. Warehouse occupies 1,528 SF in the west part of the building and features high ceilings (nearly 24’ clear) and 2 overhead doors for grade-level loading. Approx. 1,566 SF of main floor office space on the eastern side of the building includes a boardroom, showroom area, open area, kitchenette & staffroom, washroom, change room, storage and a front and back staircase to the upper floor. 2nd floor area includes 4 individual offices, waiting area, storage, kitchenette and washroom. Parking to the front and sides of the building. Direct access to and from Highway 97 at Fenwick Road. Minutes to UBCO, Kelowna International Airport, Highway 33 junction, and Orchard Park Mall.
| Unit | Unit Size | Condo Use | Price | NOI |
| Unit 2844 | 3,017 SF | Industrial | $721,112 USD ($239.02 USD/SF) | - |
| Unit 2846 | 2,171 SF | Industrial | $518,904 USD ($239.02 USD/SF) | - |
| Unit 2848 | 4,661 SF | Industrial | $1,114,054 USD ($239.02 USD/SF) | - |
Unit 2844
| Unit Size |
| 3,017 SF |
| Condo Use |
| Industrial |
| Price |
| $721,112 USD ($239.02 USD/SF) |
| NOI |
| - |
Unit 2846
| Unit Size |
| 2,171 SF |
| Condo Use |
| Industrial |
| Price |
| $518,904 USD ($239.02 USD/SF) |
| NOI |
| - |
Unit 2848
| Unit Size |
| 4,661 SF |
| Condo Use |
| Industrial |
| Price |
| $1,114,054 USD ($239.02 USD/SF) |
| NOI |
| - |
1 of 5
Videos
Matterport 3D Exterior
Matterport 3D Tour
Photos
Street View
Street
Map
Unit 2844
| Unit Size | 3,017 SF |
| Condo Use | Industrial |
| Price | $721,112 USD ($239.02 USD/SF) |
| NOI | - |
| Sale Type | Investment |
| APN/Parcel ID | 032-299-354 |
| Description | |
| 3,017 SF with large open warehouse space featuring high ceilings (nearly 24’ clear) and two 10’ x 12’ overhead doors for grade-level loading, as well as an office and washroom with light storage above.</li></ul> | |
| Sale Notes | |
| Stand-alone strata building in a newer industrial complex, located just off Highway 97 beside Scandia Golf & Games. Industrial building totaling approx. 3,017 SF with large open warehouse space featuring high ceilings (nearly 24’ clear) and two 10’ x 12’ overhead doors for grade-level loading, as well as an office and washroom with light storage above. Parking available to the front of the building. Direct access to and from Highway 97 at Fenwick Road. Minutes to UBCO, Kelowna International Airport, Highway 33 junction, and Orchard Park Mall. Building was built with the potential to demise the space into two smaller units.</li></ul> |
1 of 6
Videos
Matterport 3D Exterior
Matterport 3D Tour
Photos
Street View
Street
Map
Unit 2846
| Unit Size | 2,171 SF |
| Condo Use | Industrial |
| Price | $518,904 USD ($239.02 USD/SF) |
| NOI | - |
| Sale Type | Investment |
| Description | |
| 2,171 SF with versatile warehouse space, an office with light storage above it and in-suite washroom. Warehouse space with high ceilings (nearly 24’ clear) to either side of the office, each with a 10’ x 12’ overhead door, for grade level loading.</li></ul> | |
| Sale Notes | |
| Stand-alone building in a newer industrial complex for sale, located just off Highway 97 beside Scandia Golf & Games. Industrial building totals approx. 2,171 SF with versatile warehouse space, an office with light storage above it and in-suite washroom. Warehouse space with high ceilings (nearly 24’ clear) to either side of the office, each with a 10’ x 12’ overhead door, for grade level loading. Main entry door into the office space as well as a man-door into the warehouse space to the front of the building and man-doors into the warehouse space to the rear at both sides. Parking directly in front of the unit. Building was built to have the ability to demise as well. Direct access to and from Highway 97 at Fenwick Road. Minutes to UBCO, Kelowna International Airport, Highway 33 junction, and Orchard Park Mall.</li></ul> |
1 of 9
Videos
Matterport 3D Exterior
Matterport 3D Tour
Photos
Street View
Street
Map
Unit 2848
| Unit Size | 4,661 SF |
| Condo Use | Industrial |
| Price | $1,114,054 USD ($239.02 USD/SF) |
| NOI | - |
| Sale Type | Investment |
| APN/Parcel ID | 032-299-371 |
| Description | |
| 4,661 SF includes both warehouse space and office space. Warehouse occupies 1,528 SF in the west part of the building and features high ceilings (nearly 24’ clear) and 2 overhead doors for grade-level loading.</li></ul> | |
| Sale Notes | |
| Stand-alone strata building in a newer industrial complex, located just off Highway 97 beside Scandia Golf & Games. Industrial building totaling approx. 4,661 SF includes both warehouse space and office space. Warehouse occupies 1,528 SF in the west part of the building and features high ceilings (nearly 24’ clear) and 2 overhead doors for grade-level loading. Approx. 1,566 SF of main floor office space on the eastern side of the building includes a boardroom, showroom area, open area, kitchenette & staffroom, washroom, change room, storage and a front and back staircase to the upper floor. 2nd floor area includes 4 individual offices, waiting area, storage, kitchenette and washroom. Parking to the front and sides of the building. Direct access to and from Highway 97 at Fenwick Road. Minutes to UBCO, Kelowna International Airport, Highway 33 junction, and Orchard Park Mall.</li></ul> |
Property Facts
The following property facts apply to the entire building. Details for individual condo units may vary and are listed in the unit information above.
| Total Building Size | 12,868 SF | Typical Floor Size | 6,434 SF |
| Property Type | Industrial | Year Built | 2000 |
| Building Class | C | Lot Size | 2.12 AC |
| Floors | 2 | ||
| Zoning | I2 - General Industrial | ||
| Total Building Size | 12,868 SF |
| Property Type | Industrial |
| Building Class | C |
| Floors | 2 |
| Typical Floor Size | 6,434 SF |
| Year Built | 2000 |
| Lot Size | 2.12 AC |
| Zoning | I2 - General Industrial |
Fairly walkable
40/100
Very drivable
80/100
Limited public transit
30/100
Fairly bikeable
50/100
1 of 7
Videos
Matterport 3D Exterior
Matterport 3D Tour
Photos
Street View
Street
Map
Presented by
2842-2848 Fenwick Rd
Already a member? Log In
Hmm, there seems to have been an error sending your message. Please try again.
Thanks! Your message was sent.







