Your email has been sent.
2890 N Main Street 2890 N Main St 2,608 - 28,918 SF of Office Space Available in Walnut Creek, CA 94597



Highlights
- New HVAC, roof, common areas.
- Highly Coveted Transit Oriented Location
- Great location – Easy access on and off Interstate 608, on corner of Treat Blvd. and North Main Street.
- Surrounded by a Significant Retail Amenity Base
- Monument Signage available at heavily trafficked intersection
- Full building renovations: All New AC units (complete) New Furnaces (complete) Exterior Facade (complete) New Landscaping (complete).
All Available Spaces(6)
Display Rental Rate as
- Space
- Size
- Term
- Rental Rate
- Space Use
- Build-Out
- Available
Multiple floor plan configurations available.
- Rate includes utilities, building services and property expenses
- Mostly Open Floor Plan Layout
- 2 Conference Rooms
- Fully Built-Out as Standard Office
- 17 Private Offices
- Space is in Excellent Condition
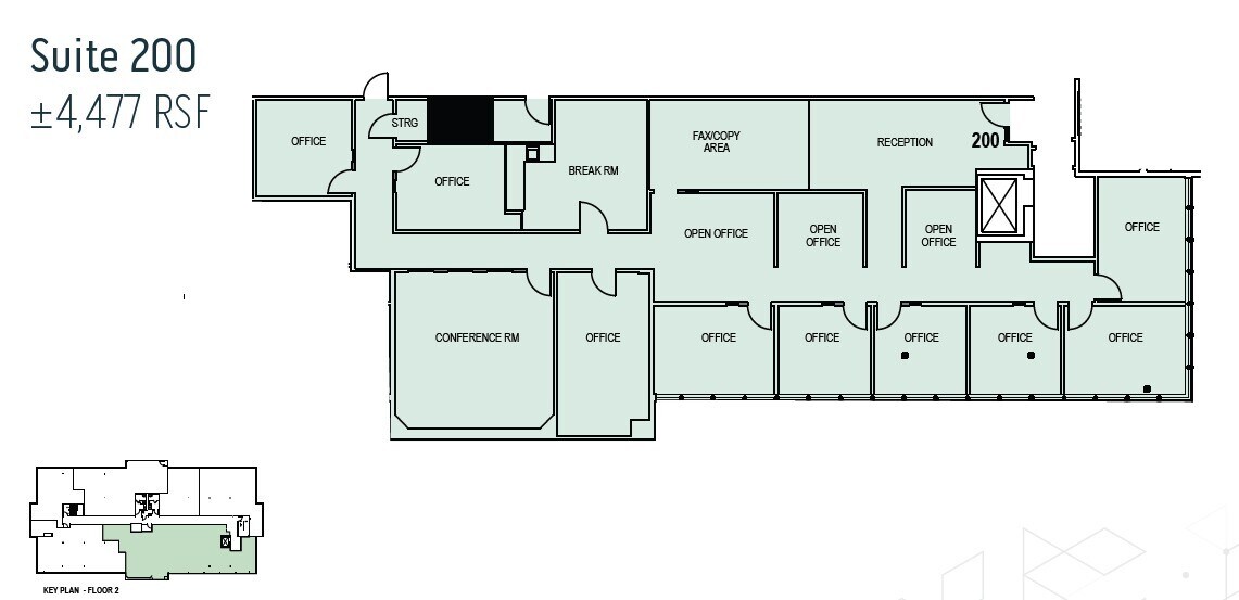
Can be combined with Suite 207 for 7,320 RSF Six window lined offices, conference room, break room, server/storage, and bullpen. Great location – Easy access on and off Interstate 680, on the corner of Treat Blvd. and North Main Street. Located across from Geary Marketplace (Sprouts Market, The Habit Burger). Numerous other dining and retail amenities within walking distance. Walking distance to Pleasant Hill BART. Full building renovations: - All new AC units (complete) - New furnaces (complete) - New signage program (complete) - Exterior facade (complete) - New Landscaping (complete)
- Rate includes utilities, building services and property expenses
- 9 Private Offices
- Space is in Excellent Condition
- Reception Area
- Fully Built-Out as Standard Office
- 1 Conference Room
- Can be combined with additional space(s) for up to 7,219 SF of adjacent space
Open office area, two private offices, two conference rooms, break room, reception. • Great location – Easy access on and off Interstate 680, on the corner of Treat Blvd. and North Main Street. • Located across from Geary Marketplace (Sprouts Market, The Habit Burger) • Numerous other dining and retail amenities within walking distance • Walking distance to Pleasant Hill BART • Full building renovations: - All new AC units (complete) - New furnaces (complete) - New signage program (complete) - Exterior facade (complete) - New Landscaping (complete)
- Rate includes utilities, building services and property expenses
- Mostly Open Floor Plan Layout
- 2 Conference Rooms
- Space is in Excellent Condition
- Open-Plan
- Conference Room: 2
- Private Office: 2
- Reception Area:
- Fully Built-Out as Standard Office
- 2 Private Offices
- Finished Ceilings: 9’
- Reception Area
- Breakroom: 1
- HVAC: New units
- Public Transportation: 0.5 mi from BART
Can be combined with Suite 200 for 7,320 RSF Six window lined offices, conference room, break room, server/storage, and bullpen. • Great location – Easy access on and off Interstate 680, on the corner of Treat Blvd. and North Main Street. • Located across from Geary Marketplace (Sprouts Market, The Habit Burger) • Numerous other dining and retail amenities within walking distance • Walking distance to Pleasant Hill BART • Full building renovations: - All new AC units (complete) - New furnaces (complete) - New signage program (complete) - Exterior facade (complete) - New Landscaping (complete)
- Rate includes utilities, building services and property expenses
- 6 Private Offices
- 6 Workstations
- Space is in Excellent Condition
- Corner Space
- Conference Room: 1
- Private Office: 6 (on glass)
- Server/IT Room:
- Fully Built-Out as Standard Office
- 1 Conference Room
- Finished Ceilings: 10’
- Can be combined with additional space(s) for up to 7,219 SF of adjacent space
- Breakroom: 1
- HVAC: New units
- Public Transportation: 0.5 mi from BART
Storage/server room, break room and open office space.
- Rate includes utilities, building services and property expenses
- Mostly Open Floor Plan Layout
- 1 Conference Room
- Fully Built-Out as Standard Office
- 8 Private Offices
- Space is in Excellent Condition
Open office area, five private offices and break room. • Great location – Easy access on and off Interstate 680, on the corner of Treat Blvd. and North Main Street. • Located across from Geary Marketplace (Sprouts Market, The Habit Burger) • Numerous other dining and retail amenities within walking distance • Walking distance to Pleasant Hill BART • Full building renovations: - All new AC units (complete) - New furnaces (complete) - New signage program (complete) - Exterior facade (complete) - New Landscaping (complete)
- Rate includes utilities, building services and property expenses
- Mostly Open Floor Plan Layout
- 1 Conference Room
- Finished Ceilings: 9’
- Private Restrooms
- Breakroom
- HVAC: New units
- Public Transportation: 0.5 mi from BART
- Fully Built-Out as Standard Office
- 5 Private Offices
- 8 Workstations
- Print/Copy Room
- Secure Storage
- Conference Room
- Private Office: 5
- Sprinklers
| Space | Size | Term | Rental Rate | Space Use | Build-Out | Available |
| 1st Floor | 2,967-12,345 SF | Negotiable | Upon Request Upon Request Upon Request Upon Request | Office | Full Build-Out | Now |
| 2nd Floor, Ste 200 | 4,477 SF | Negotiable | $28.80 /SF/YR $2.40 /SF/MO $128,938 /YR $10,745 /MO | Office | Full Build-Out | Now |
| 2nd Floor, Ste 205 | 2,608 SF | Negotiable | $28.80 /SF/YR $2.40 /SF/MO $75,110 /YR $6,259 /MO | Office | Full Build-Out | Now |
| 2nd Floor, Ste 207 | 2,742 SF | Negotiable | $31.20 /SF/YR $2.60 /SF/MO $85,550 /YR $7,129 /MO | Office | Full Build-Out | Now |
| 3rd Floor, Ste 302 | 3,891 SF | Negotiable | $36.00 /SF/YR $3.00 /SF/MO $140,076 /YR $11,673 /MO | Office | Full Build-Out | Now |
| 3rd Floor, Ste 305 | 2,855 SF | Negotiable | $25.20 /SF/YR $2.10 /SF/MO $71,946 /YR $5,996 /MO | Office | Full Build-Out | Now |
1st Floor
| Size |
| 2,967-12,345 SF |
| Term |
| Negotiable |
| Rental Rate |
| Upon Request Upon Request Upon Request Upon Request |
| Space Use |
| Office |
| Build-Out |
| Full Build-Out |
| Available |
| Now |
2nd Floor, Ste 200
| Size |
| 4,477 SF |
| Term |
| Negotiable |
| Rental Rate |
| $28.80 /SF/YR $2.40 /SF/MO $128,938 /YR $10,745 /MO |
| Space Use |
| Office |
| Build-Out |
| Full Build-Out |
| Available |
| Now |
2nd Floor, Ste 205
| Size |
| 2,608 SF |
| Term |
| Negotiable |
| Rental Rate |
| $28.80 /SF/YR $2.40 /SF/MO $75,110 /YR $6,259 /MO |
| Space Use |
| Office |
| Build-Out |
| Full Build-Out |
| Available |
| Now |
2nd Floor, Ste 207
| Size |
| 2,742 SF |
| Term |
| Negotiable |
| Rental Rate |
| $31.20 /SF/YR $2.60 /SF/MO $85,550 /YR $7,129 /MO |
| Space Use |
| Office |
| Build-Out |
| Full Build-Out |
| Available |
| Now |
3rd Floor, Ste 302
| Size |
| 3,891 SF |
| Term |
| Negotiable |
| Rental Rate |
| $36.00 /SF/YR $3.00 /SF/MO $140,076 /YR $11,673 /MO |
| Space Use |
| Office |
| Build-Out |
| Full Build-Out |
| Available |
| Now |
3rd Floor, Ste 305
| Size |
| 2,855 SF |
| Term |
| Negotiable |
| Rental Rate |
| $25.20 /SF/YR $2.10 /SF/MO $71,946 /YR $5,996 /MO |
| Space Use |
| Office |
| Build-Out |
| Full Build-Out |
| Available |
| Now |
1st Floor
| Size | 2,967-12,345 SF |
| Term | Negotiable |
| Rental Rate | Upon Request |
| Space Use | Office |
| Build-Out | Full Build-Out |
| Available | Now |
Multiple floor plan configurations available.
- Rate includes utilities, building services and property expenses
- Fully Built-Out as Standard Office
- Mostly Open Floor Plan Layout
- 17 Private Offices
- 2 Conference Rooms
- Space is in Excellent Condition
2nd Floor, Ste 200
| Size | 4,477 SF |
| Term | Negotiable |
| Rental Rate | $28.80 /SF/YR |
| Space Use | Office |
| Build-Out | Full Build-Out |
| Available | Now |
Can be combined with Suite 207 for 7,320 RSF Six window lined offices, conference room, break room, server/storage, and bullpen. Great location – Easy access on and off Interstate 680, on the corner of Treat Blvd. and North Main Street. Located across from Geary Marketplace (Sprouts Market, The Habit Burger). Numerous other dining and retail amenities within walking distance. Walking distance to Pleasant Hill BART. Full building renovations: - All new AC units (complete) - New furnaces (complete) - New signage program (complete) - Exterior facade (complete) - New Landscaping (complete)
- Rate includes utilities, building services and property expenses
- Fully Built-Out as Standard Office
- 9 Private Offices
- 1 Conference Room
- Space is in Excellent Condition
- Can be combined with additional space(s) for up to 7,219 SF of adjacent space
- Reception Area
2nd Floor, Ste 205
| Size | 2,608 SF |
| Term | Negotiable |
| Rental Rate | $28.80 /SF/YR |
| Space Use | Office |
| Build-Out | Full Build-Out |
| Available | Now |
Open office area, two private offices, two conference rooms, break room, reception. • Great location – Easy access on and off Interstate 680, on the corner of Treat Blvd. and North Main Street. • Located across from Geary Marketplace (Sprouts Market, The Habit Burger) • Numerous other dining and retail amenities within walking distance • Walking distance to Pleasant Hill BART • Full building renovations: - All new AC units (complete) - New furnaces (complete) - New signage program (complete) - Exterior facade (complete) - New Landscaping (complete)
- Rate includes utilities, building services and property expenses
- Fully Built-Out as Standard Office
- Mostly Open Floor Plan Layout
- 2 Private Offices
- 2 Conference Rooms
- Finished Ceilings: 9’
- Space is in Excellent Condition
- Reception Area
- Open-Plan
- Breakroom: 1
- Conference Room: 2
- HVAC: New units
- Private Office: 2
- Public Transportation: 0.5 mi from BART
- Reception Area:
2nd Floor, Ste 207
| Size | 2,742 SF |
| Term | Negotiable |
| Rental Rate | $31.20 /SF/YR |
| Space Use | Office |
| Build-Out | Full Build-Out |
| Available | Now |
Can be combined with Suite 200 for 7,320 RSF Six window lined offices, conference room, break room, server/storage, and bullpen. • Great location – Easy access on and off Interstate 680, on the corner of Treat Blvd. and North Main Street. • Located across from Geary Marketplace (Sprouts Market, The Habit Burger) • Numerous other dining and retail amenities within walking distance • Walking distance to Pleasant Hill BART • Full building renovations: - All new AC units (complete) - New furnaces (complete) - New signage program (complete) - Exterior facade (complete) - New Landscaping (complete)
- Rate includes utilities, building services and property expenses
- Fully Built-Out as Standard Office
- 6 Private Offices
- 1 Conference Room
- 6 Workstations
- Finished Ceilings: 10’
- Space is in Excellent Condition
- Can be combined with additional space(s) for up to 7,219 SF of adjacent space
- Corner Space
- Breakroom: 1
- Conference Room: 1
- HVAC: New units
- Private Office: 6 (on glass)
- Public Transportation: 0.5 mi from BART
- Server/IT Room:
3rd Floor, Ste 302
| Size | 3,891 SF |
| Term | Negotiable |
| Rental Rate | $36.00 /SF/YR |
| Space Use | Office |
| Build-Out | Full Build-Out |
| Available | Now |
Storage/server room, break room and open office space.
- Rate includes utilities, building services and property expenses
- Fully Built-Out as Standard Office
- Mostly Open Floor Plan Layout
- 8 Private Offices
- 1 Conference Room
- Space is in Excellent Condition
3rd Floor, Ste 305
| Size | 2,855 SF |
| Term | Negotiable |
| Rental Rate | $25.20 /SF/YR |
| Space Use | Office |
| Build-Out | Full Build-Out |
| Available | Now |
Open office area, five private offices and break room. • Great location – Easy access on and off Interstate 680, on the corner of Treat Blvd. and North Main Street. • Located across from Geary Marketplace (Sprouts Market, The Habit Burger) • Numerous other dining and retail amenities within walking distance • Walking distance to Pleasant Hill BART • Full building renovations: - All new AC units (complete) - New furnaces (complete) - New signage program (complete) - Exterior facade (complete) - New Landscaping (complete)
- Rate includes utilities, building services and property expenses
- Fully Built-Out as Standard Office
- Mostly Open Floor Plan Layout
- 5 Private Offices
- 1 Conference Room
- 8 Workstations
- Finished Ceilings: 9’
- Print/Copy Room
- Private Restrooms
- Secure Storage
- Breakroom
- Conference Room
- HVAC: New units
- Private Office: 5
- Public Transportation: 0.5 mi from BART
- Sprinklers
Property Overview
42,667 SF Class B office property located along Interstate-680. The Property offers 138 parking stalls (a ratio of 3.4 / 1,000 sf) distributed between a surrounding surface lot and a subterranean parking level beneath the building. Surrounded by an abundance of high-quality amenities, 2890 N Main is one of just a few office properties located within a seven minute walk to one of the Bay Area’s most active BART stations – the Pleasant Hill BART station.
- Metro/Subway
- Signage
- Natural Light
- Monument Signage
- Air Conditioning
Property Facts
Presented by
2890 N Main Street | 2890 N Main St
Hmm, there seems to have been an error sending your message. Please try again.
Thanks! Your message was sent.








