Enter your email to login or create a free account
This feature is unavailable at the moment.
We apologize, but the feature you are trying to access is currently unavailable. We are aware of this issue and our team is working hard to resolve the matter.
Please check back in a few minutes. We apologize for the inconvenience.
- LoopNet Team
2955 Central Ave
Saint Petersburg, FL 33713
Property For Lease

Highlights
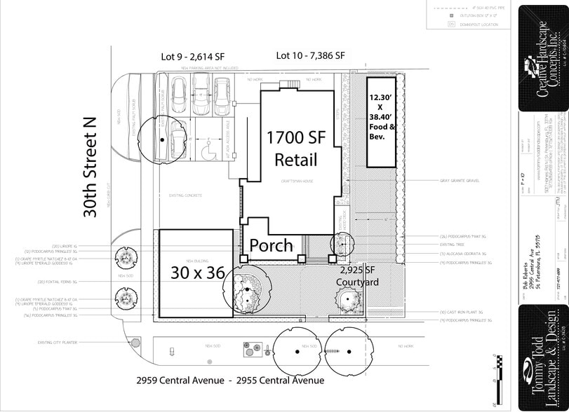
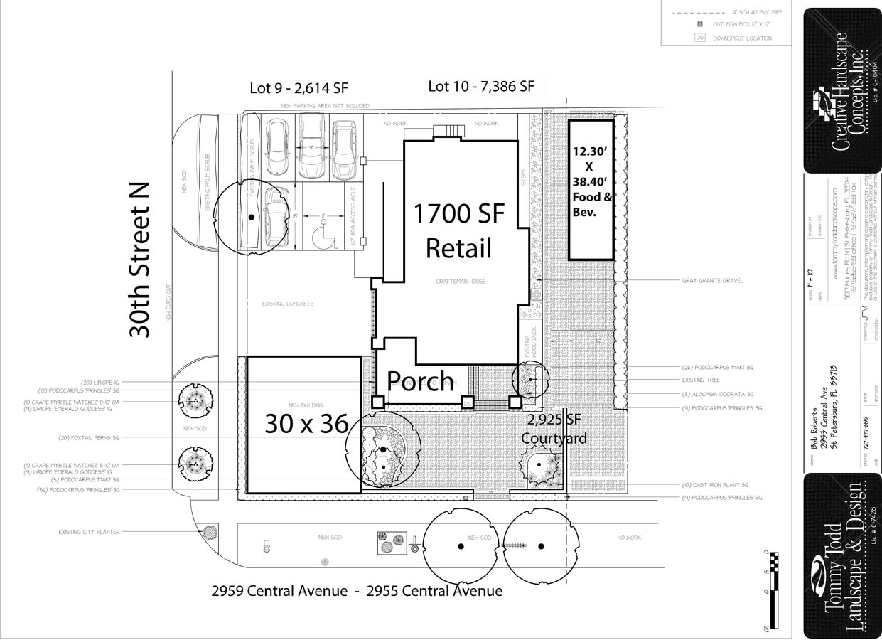
- The Craftsman Courtyard of approximately 3,000 SF will be the highlight of this restoration/development a Venue for Dining, Art, Music, Celebration!
Property Facts
| Property Type | Retail | Year Built | 1918 |
| Property Subtype | Restaurant | Parking Ratio | 2.02/1,000 SF |
| Gross Leasable Area | 2,027 SF |
| Property Type | Retail |
| Property Subtype | Restaurant |
| Gross Leasable Area | 2,027 SF |
| Year Built | 1918 |
| Parking Ratio | 2.02/1,000 SF |
About the Property
The Historic Craftsman House will be fully restored and surrounded by a new Courtyard and landscaping. The interior is in excellent condition and ready to move in as of January 5th. Restoration of the exterior will be completed by May 1st. Rents will not start until restoration and courtyard development are completed in March or April. Upon Completion, the Craftsman Courtyard Development will consist of three buildings. The Main House with 1,700SF 1st Floor (hardwood floors) and 327 SF porch. The Carriage House is to be converted to a Food & Beverage 12 x 38, 475 SF, and a new construction build-to-suit or purchase option adjoining the courtyard.
- Pylon Sign
- Signage
Attachments
| 2027SF-ForLeaseCraftsman House Flyer |
Links
Listing ID: 38158128
Date on Market: 10/21/2025
Last Updated:
Address: 2955 Central Ave, Saint Petersburg, FL 33713
The Kenwood Retail Property at 2955 Central Ave, Saint Petersburg, FL 33713 is no longer being advertised on LoopNet.com. Contact the broker for information on availability.
RETAIL PROPERTIES IN NEARBY NEIGHBORHOODS
- Central Pinellas Commercial Real Estate Properties
- South Pinellas Commercial Real Estate Properties
- Downtown St Petersburg Commercial Real Estate Properties
- Kenwood Commercial Real Estate Properties
- Edge District Commercial Real Estate Properties
- Mirror Lake Commercial Real Estate Properties
- Carillon Commercial Real Estate Properties
- Lake Seminole Commercial Real Estate Properties
- Somerset Lakes Commercial Real Estate Properties
- Lealman Commercial Real Estate Properties
- Seminole Grove Commercial Real Estate Properties
- Crossroads Area Commercial Real Estate Properties
- Jungle Terrace Commercial Real Estate Properties
- Northside Commercial Real Estate Properties
- Central Oak Park Commercial Real Estate Properties
NEARBY LISTINGS
- 200 Central Ave, Saint Petersburg FL
- 1246 Central Ave, Saint Petersburg FL
- 1000 1st Ave N, Saint Petersburg FL
- 6240 39th St N, Pinellas Park FL
- 6565 N 44th St, Pinellas Park FL
- 400 15th St N, Saint Petersburg FL
- 136 4th St N, Saint Petersburg FL
- 2442 N 23rd St, Saint Petersburg FL
- 327 11th Ave N, Saint Petersburg FL
- 3245 Tyrone Blvd, Saint Petersburg FL
- 3501 Central Ave N, Saint Petersburg FL
- 1916 Central Ave, Saint Petersburg FL
- 290 9th St N, Saint Petersburg FL
- 2775 Tyrone Blvd N, Saint Petersburg FL
- 2053-2063 Central Ave, Saint Petersburg FL
