Log In/Sign Up
Your email has been sent.
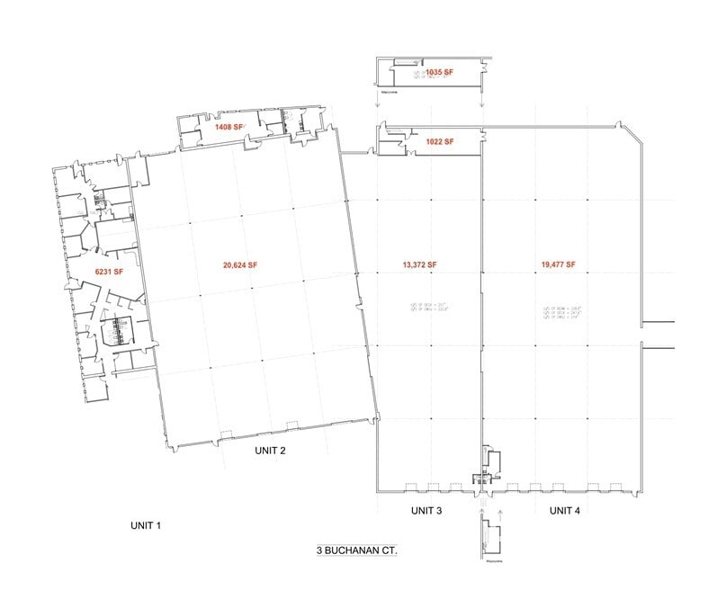
3 Buchanan Crt 89,651 SF 87% Leased Industrial Building London, ON N5Z 4P9 $12,466,451 USD ($139.06 USD/SF)

Executive Summary
Exceptional industrial facility strategically located with direct exposure to Highway 401. Space includes finished office areas, LED lighting and a fenced yard. A rare opportunity to secure a highly versatile and well-positioned industrial asset.
Property Facts
| Price | $12,466,451 USD | Rentable Building Area | 89,651 SF |
| Price Per SF | $139.06 USD | No. Stories | 1 |
| Sale Type | Investment | Year Built | 1970 |
| Property Type | Industrial | Clear Ceiling Height | 14’8” |
| Property Subtype | Warehouse | No. Dock-High Doors/Loading | 16 |
| Building Class | C | No. Drive In / Grade-Level Doors | 5 |
| Lot Size | 7.10 AC | ||
| Zoning | LI2,LI3,LI7 | ||
| Price | $12,466,451 USD |
| Price Per SF | $139.06 USD |
| Sale Type | Investment |
| Property Type | Industrial |
| Property Subtype | Warehouse |
| Building Class | C |
| Lot Size | 7.10 AC |
| Rentable Building Area | 89,651 SF |
| No. Stories | 1 |
| Year Built | 1970 |
| Clear Ceiling Height | 14’8” |
| No. Dock-High Doors/Loading | 16 |
| No. Drive In / Grade-Level Doors | 5 |
| Zoning | LI2,LI3,LI7 |
Amenities
- Fenced Lot
Utilities
- Lighting - LED
Space Availability
- Space
- Size
- Space Use
- Build-Out
- Available
Prime office space offering a functional layout including a reception area, spacious private offices, a boardroom, open work areas and a kitchen
Prime industrial space including LED lighting, grade height loading and a fenced yard
| Space | Size | Space Use | Build-Out | Available |
| 1st Floor | 5,626 SF | Office | Partial Build-Out | Now |
| 1st Fl - 2 | 5,624 SF | Industrial | Partial Build-Out | Now |
1st Floor
| Size |
| 5,626 SF |
| Space Use |
| Office |
| Build-Out |
| Partial Build-Out |
| Available |
| Now |
1st Fl - 2
| Size |
| 5,624 SF |
| Space Use |
| Industrial |
| Build-Out |
| Partial Build-Out |
| Available |
| Now |
1st Floor
| Size | 5,626 SF |
| Space Use | Office |
| Build-Out | Partial Build-Out |
| Available | Now |
Prime office space offering a functional layout including a reception area, spacious private offices, a boardroom, open work areas and a kitchen
1 of 1
Videos
Matterport 3D Exterior
Matterport 3D Tour
Photos
Street View
Street
Map
1st Fl - 2
| Size | 5,624 SF |
| Space Use | Industrial |
| Build-Out | Partial Build-Out |
| Available | Now |
Prime industrial space including LED lighting, grade height loading and a fenced yard
1 1
Somewhat walkable
20/100
Exceptionally drivable
100/100
Limited public transit
30/100
Somewhat bikeable
30/100
1 of 2
Videos
Matterport 3D Exterior
Matterport 3D Tour
Photos
Street View
Street
Map
1 of 1
Presented by
3 Buchanan Crt
Already a member? Log In
Hmm, there seems to have been an error sending your message. Please try again.
Thanks! Your message was sent.


