Your email has been sent.
Malley Farms Business Centre 30 Centre Rd 4,800 - 28,800 SF of 4-Star Space Available in Somersworth, NH 03878



Highlights
- Prime flex, warehouse, and industrial space with the ideal location, infrastructure, and amenities to cater to diverse business needs.
- Highly accessible location with excellent regional connectivity via Routes 9 and 236 for shipping and receiving.
- 30 Centre Road features an 18-foot clear height, six exterior dock doors, one drive-in bay, and one leveler for a logistical advantage.
- Access to a dense workforce and consumer base with over 138,000 residents in the area that was responsible for over $1.8 billion in spending in 2024.
Features
Display Rental Rate as
- Space
- Size
- Term
- Rental Rate
- Space Use
- Condition
- Available
- Lease rate does not include utilities, property expenses or building services
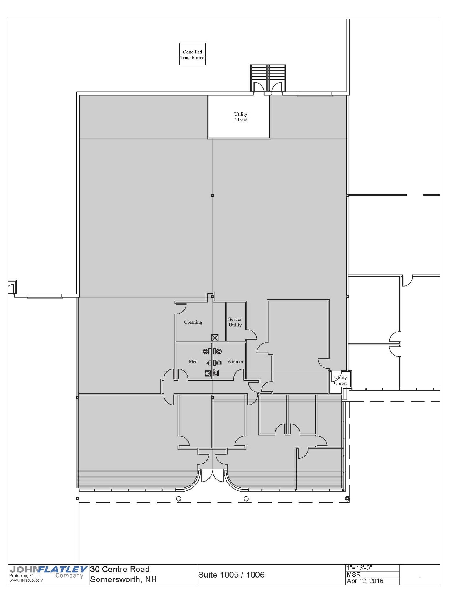
Two contiguous spaces, each measuring 4,800 square feet, are available, which can be combined for a total of 9,600 square feet. The building features an 18-foot clear height, six exterior dock doors, one drive-in bay measuring 8 feet wide by 10 feet high, and one leveler. Tenants benefit from paved and lighted parking spaces, air-conditioned offices, natural gas heat, and exterior LED lighting.
- Lease rate does not include utilities, property expenses or building services
- Can be combined with additional space(s) for up to 9,600 SF of adjacent space
- Private Restrooms
- Conference Rooms
- 18-ft clear height, 6 dock doors
- Space is in Excellent Condition
- Central Air and Heating
- Wi-Fi Connectivity
- Two spaces, combine for 9,600 sq. ft.
- Air-conditioned offices, ample parking
Two contiguous spaces, each measuring 4,800 square feet, are available, which can be combined for a total of 9,600 square feet. The building features an 18-foot clear height, six exterior dock doors, one drive-in bay measuring 8 feet wide by 10 feet high, and one leveler. Tenants benefit from paved and lighted parking spaces, air-conditioned offices, natural gas heat, and exterior LED lighting.
- Lease rate does not include utilities, property expenses or building services
- Can be combined with additional space(s) for up to 9,600 SF of adjacent space
- Private Restrooms
- Conference Rooms
- 18-ft clear height, 6 dock doors
- Space is in Excellent Condition
- Central Air and Heating
- Wi-Fi Connectivity
- Two spaces, combine for 9,600 sq. ft.
- Air-conditioned offices, ample parking
| Space | Size | Term | Rental Rate | Space Use | Condition | Available |
| 1st Floor - 1001 | 4,800 SF | Negotiable | $14.00 /SF/YR $1.17 /SF/MO $67,200 /YR $5,600 /MO | Flex | - | June 01, 2026 |
| 1st Floor - 1005 | 4,800 SF | Negotiable | $14.00 /SF/YR $1.17 /SF/MO $67,200 /YR $5,600 /MO | Flex | Full Build-Out | Now |
| 1st Floor - 1006 | 4,800 SF | Negotiable | $14.00 /SF/YR $1.17 /SF/MO $67,200 /YR $5,600 /MO | Flex | Full Build-Out | Now |
1st Floor - 1001
| Size |
| 4,800 SF |
| Term |
| Negotiable |
| Rental Rate |
| $14.00 /SF/YR $1.17 /SF/MO $67,200 /YR $5,600 /MO |
| Space Use |
| Flex |
| Condition |
| - |
| Available |
| June 01, 2026 |
1st Floor - 1005
| Size |
| 4,800 SF |
| Term |
| Negotiable |
| Rental Rate |
| $14.00 /SF/YR $1.17 /SF/MO $67,200 /YR $5,600 /MO |
| Space Use |
| Flex |
| Condition |
| Full Build-Out |
| Available |
| Now |
1st Floor - 1006
| Size |
| 4,800 SF |
| Term |
| Negotiable |
| Rental Rate |
| $14.00 /SF/YR $1.17 /SF/MO $67,200 /YR $5,600 /MO |
| Space Use |
| Flex |
| Condition |
| Full Build-Out |
| Available |
| Now |
- Space
- Size
- Term
- Rental Rate
- Space Use
- Condition
- Available
- Lease rate does not include utilities, property expenses or building services
- Lease rate does not include utilities, property expenses or building services
Two contiguous spaces, each measuring 4,800 square feet, are available, which can be combined for a total of 9,600 square feet. The building features an 18-foot clear height, six exterior dock doors, one drive-in bay measuring 8 feet wide by 10 feet high, and one leveler. Tenants benefit from paved and lighted parking spaces, air-conditioned offices, natural gas heat, and exterior LED lighting.
- Lease rate does not include utilities, property expenses or building services
- Can be combined with additional space(s) for up to 9,600 SF of adjacent space
- Private Restrooms
- Conference Rooms
- 18-ft clear height, 6 dock doors
- Space is in Excellent Condition
- Central Air and Heating
- Wi-Fi Connectivity
- Two spaces, combine for 9,600 sq. ft.
- Air-conditioned offices, ample parking
- Lease rate does not include utilities, property expenses or building services
- Can be combined with additional space(s) for up to 9,600 SF of adjacent space
Two contiguous spaces, each measuring 4,800 square feet, are available, which can be combined for a total of 9,600 square feet. The building features an 18-foot clear height, six exterior dock doors, one drive-in bay measuring 8 feet wide by 10 feet high, and one leveler. Tenants benefit from paved and lighted parking spaces, air-conditioned offices, natural gas heat, and exterior LED lighting.
- Lease rate does not include utilities, property expenses or building services
- Can be combined with additional space(s) for up to 9,600 SF of adjacent space
- Private Restrooms
- Conference Rooms
- 18-ft clear height, 6 dock doors
- Space is in Excellent Condition
- Central Air and Heating
- Wi-Fi Connectivity
- Two spaces, combine for 9,600 sq. ft.
- Air-conditioned offices, ample parking
- Lease rate does not include utilities, property expenses or building services
- Can be combined with additional space(s) for up to 9,600 SF of adjacent space
| Space | Size | Term | Rental Rate | Space Use | Condition | Available |
| 1st Floor - 1001 | 4,800 SF | Negotiable | $14.00 /SF/YR $1.17 /SF/MO $67,200 /YR $5,600 /MO | Industrial | - | June 01, 2026 |
| 1st Floor - 1001 | 4,800 SF | Negotiable | $14.00 /SF/YR $1.17 /SF/MO $67,200 /YR $5,600 /MO | Flex | - | June 01, 2026 |
| 1st Floor - 1005 | 4,800 SF | Negotiable | $14.00 /SF/YR $1.17 /SF/MO $67,200 /YR $5,600 /MO | Flex | Full Build-Out | Now |
| 1st Floor - 1005 | 4,800 SF | Negotiable | $14.00 /SF/YR $1.17 /SF/MO $67,200 /YR $5,600 /MO | Industrial | - | Now |
| 1st Floor - 1006 | 4,800 SF | Negotiable | $14.00 /SF/YR $1.17 /SF/MO $67,200 /YR $5,600 /MO | Flex | Full Build-Out | Now |
| 1st Floor - 1006 | 4,800 SF | Negotiable | $14.00 /SF/YR $1.17 /SF/MO $67,200 /YR $5,600 /MO | Industrial | - | Now |
1st Floor - 1001
| Size |
| 4,800 SF |
| Term |
| Negotiable |
| Rental Rate |
| $14.00 /SF/YR $1.17 /SF/MO $67,200 /YR $5,600 /MO |
| Space Use |
| Industrial |
| Condition |
| - |
| Available |
| June 01, 2026 |
1st Floor - 1001
| Size |
| 4,800 SF |
| Term |
| Negotiable |
| Rental Rate |
| $14.00 /SF/YR $1.17 /SF/MO $67,200 /YR $5,600 /MO |
| Space Use |
| Flex |
| Condition |
| - |
| Available |
| June 01, 2026 |
1st Floor - 1005
| Size |
| 4,800 SF |
| Term |
| Negotiable |
| Rental Rate |
| $14.00 /SF/YR $1.17 /SF/MO $67,200 /YR $5,600 /MO |
| Space Use |
| Flex |
| Condition |
| Full Build-Out |
| Available |
| Now |
1st Floor - 1005
| Size |
| 4,800 SF |
| Term |
| Negotiable |
| Rental Rate |
| $14.00 /SF/YR $1.17 /SF/MO $67,200 /YR $5,600 /MO |
| Space Use |
| Industrial |
| Condition |
| - |
| Available |
| Now |
1st Floor - 1006
| Size |
| 4,800 SF |
| Term |
| Negotiable |
| Rental Rate |
| $14.00 /SF/YR $1.17 /SF/MO $67,200 /YR $5,600 /MO |
| Space Use |
| Flex |
| Condition |
| Full Build-Out |
| Available |
| Now |
1st Floor - 1006
| Size |
| 4,800 SF |
| Term |
| Negotiable |
| Rental Rate |
| $14.00 /SF/YR $1.17 /SF/MO $67,200 /YR $5,600 /MO |
| Space Use |
| Industrial |
| Condition |
| - |
| Available |
| Now |
1st Floor - 1001
| Size | 4,800 SF |
| Term | Negotiable |
| Rental Rate | $14.00 /SF/YR |
| Space Use | Industrial |
| Condition | - |
| Available | June 01, 2026 |
- Lease rate does not include utilities, property expenses or building services
1st Floor - 1001
| Size | 4,800 SF |
| Term | Negotiable |
| Rental Rate | $14.00 /SF/YR |
| Space Use | Flex |
| Condition | - |
| Available | June 01, 2026 |
- Lease rate does not include utilities, property expenses or building services
1st Floor - 1005
| Size | 4,800 SF |
| Term | Negotiable |
| Rental Rate | $14.00 /SF/YR |
| Space Use | Flex |
| Condition | Full Build-Out |
| Available | Now |
Two contiguous spaces, each measuring 4,800 square feet, are available, which can be combined for a total of 9,600 square feet. The building features an 18-foot clear height, six exterior dock doors, one drive-in bay measuring 8 feet wide by 10 feet high, and one leveler. Tenants benefit from paved and lighted parking spaces, air-conditioned offices, natural gas heat, and exterior LED lighting.
- Lease rate does not include utilities, property expenses or building services
- Space is in Excellent Condition
- Can be combined with additional space(s) for up to 9,600 SF of adjacent space
- Central Air and Heating
- Private Restrooms
- Wi-Fi Connectivity
- Conference Rooms
- Two spaces, combine for 9,600 sq. ft.
- 18-ft clear height, 6 dock doors
- Air-conditioned offices, ample parking
1st Floor - 1005
| Size | 4,800 SF |
| Term | Negotiable |
| Rental Rate | $14.00 /SF/YR |
| Space Use | Industrial |
| Condition | - |
| Available | Now |
- Lease rate does not include utilities, property expenses or building services
- Can be combined with additional space(s) for up to 9,600 SF of adjacent space
1st Floor - 1006
| Size | 4,800 SF |
| Term | Negotiable |
| Rental Rate | $14.00 /SF/YR |
| Space Use | Flex |
| Condition | Full Build-Out |
| Available | Now |
Two contiguous spaces, each measuring 4,800 square feet, are available, which can be combined for a total of 9,600 square feet. The building features an 18-foot clear height, six exterior dock doors, one drive-in bay measuring 8 feet wide by 10 feet high, and one leveler. Tenants benefit from paved and lighted parking spaces, air-conditioned offices, natural gas heat, and exterior LED lighting.
- Lease rate does not include utilities, property expenses or building services
- Space is in Excellent Condition
- Can be combined with additional space(s) for up to 9,600 SF of adjacent space
- Central Air and Heating
- Private Restrooms
- Wi-Fi Connectivity
- Conference Rooms
- Two spaces, combine for 9,600 sq. ft.
- 18-ft clear height, 6 dock doors
- Air-conditioned offices, ample parking
1st Floor - 1006
| Size | 4,800 SF |
| Term | Negotiable |
| Rental Rate | $14.00 /SF/YR |
| Space Use | Industrial |
| Condition | - |
| Available | Now |
- Lease rate does not include utilities, property expenses or building services
- Can be combined with additional space(s) for up to 9,600 SF of adjacent space
Property Overview
Malley Farms Business Centre, located at 30 Centre Road in Somersworth, offers prime flex, warehouse, and industrial space for lease. This single-story, 48,000-square-foot commercial property, offers the ideal location, infrastructure, and amenities to cater to diverse business needs. Malley Farms is strategically located just north of Portsmouth, off the Spaulding Turnpike, with excellent regional connectivity via Route 9 and Route 236. The property is only six minutes from Dover, twenty minutes from historic Portsmouth, and a little over an hour from Boston, making it ideal for companies seeking a logistical advantage in the Seacoast region. The surrounding community of more than 138,000 residents generates over $1.8 billion in annual consumer spending, offering strong market potential. This property is well-suited for high-bay industrial, warehouse, or manufacturing use. Tenants enjoy a natural setting with open fields and wooded views, multiple tailboard loading docks and man-doors, and ample free parking. Join a thriving tenant mix and position your business for success in one of New Hampshire’s most accessible and desirable commercial locations.
Property Facts
Select Tenants
- Floor
- Tenant Name
- Industry
- 1st
- Choices Technologies
- Professional, Scientific, and Technical Services
- 1st
- Long Home
- Construction
- 1st
- Sterilray Inc.
- Professional, Scientific, and Technical Services
- 1st
- Strogen's
- Construction
Demographics
Regional Accessibility
Presented by
Malley Farms Business Centre | 30 Centre Rd
Hmm, there seems to have been an error sending your message. Please try again.
Thanks! Your message was sent.













