Enter your email to login or create a free account
This feature is unavailable at the moment.
We apologize, but the feature you are trying to access is currently unavailable. We are aware of this issue and our team is working hard to resolve the matter.
Please check back in a few minutes. We apologize for the inconvenience.
- LoopNet Team
30 W 3rd St
Cincinnati, OH 45202
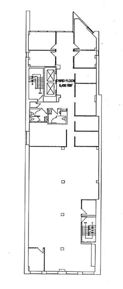
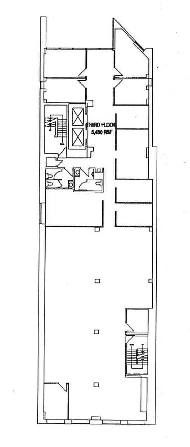
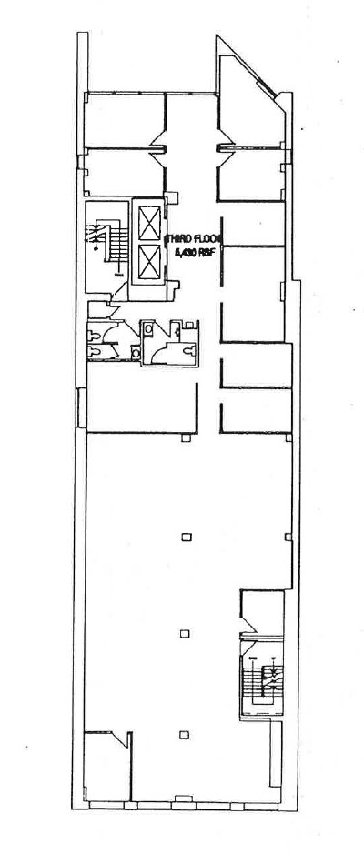
30 W 3rd St · Property For Lease

Property Overview
Six story office building well maintained with many updates. Zoned HVAC, sprinklers, 24 hour secure elevators. Interior parking, plentiful surface parking near by. 6th floor includes wrap around balcony. Riverfront view! Easy access to stadiums, The Banks residential/entertainment development, hotels, and fine dining. Across from new offices of GE Corporate Shared Services building, residential units (new & redeveloped), a block from street car and interstate ramps.
- Signage
Property Facts
Attachments
| W 3rd - 30_Brochure |
Links
Listing ID: 4087898
Date on Market: 9/25/2016
Last Updated:
Address: 30 W 3rd St, Cincinnati, OH 45202
The City Center Office Property at 30 W 3rd St, Cincinnati, OH 45202 is no longer being advertised on LoopNet.com. Contact the broker for information on availability.
OFFICE PROPERTIES IN NEARBY NEIGHBORHOODS
- Northern Kentucky Commercial Real Estate Properties
- Downtown Cincinnati Commercial Real Estate Properties
- East Cincinnati Commercial Real Estate Properties
- North Hamilton Commercial Real Estate Properties
- City Center Commercial Real Estate Properties
- Over-The Rhine Commercial Real Estate Properties
- Downtown Covington Commercial Real Estate Properties
- Westwood Commercial Real Estate Properties
- Mount Auburn Commercial Real Estate Properties
- Dent Commercial Real Estate Properties
- Queensgate Commercial Real Estate Properties
- Clifton Commercial Real Estate Properties
- Hyde Park Commercial Real Estate Properties
- Madisonville Commercial Real Estate Properties
- Forestville Commercial Real Estate Properties
NEARBY LISTINGS
- 603 W McMicken Ave, Cincinnati OH
- 2435 Williams Ave, Cincinnati OH
- 31 Innovation Aly, Covington KY
- 824 Elm St, Cincinnati OH
- 1 Sandbank Rd, Ludlow KY
- 2330 Victory Pky, Cincinnati OH
- 1972 Central Ave, Cincinnati OH
- 122 E Liberty St, Cincinnati OH
- 2800 Woodburn Ave, Cincinnati OH
- 347 Stanley Ave, Cincinnati OH
- 106-108 E 4th, Covington KY
- 1045 Eaton Dr, Ft Wright KY
- 2331 Terhune Aly, Cincinnati OH
- 1209 Sycamore St, Cincinnati OH
- 648 E McMillan St, Cincinnati OH
