Your email has been sent.
3008 & 3012 Sillect Ave 3008 Sillect Ave 3,025 - 14,886 SF of Medical Space Available in Bakersfield, CA 93308



Sublease Highlights
- Right across from Bakersfield Heart Hospital
- Close to Downtown area
- Shopping, Eateries & Conveniences nearby
- Near High Traffic Rosedale Hwy and CA 99 intersection area
- Proximity to Other Medical Facilities
All Available Spaces(4)
Display Rental Rate as
- Space
- Size
- Term
- Rental Rate
- Space Use
- Condition
- Available
Approx. 3,145 Rentable Sq. Ft., Large Waiting Area, Reception Area, 2 Office Rooms, 5 Exam Rooms, Procedure Room / Exam Room, Lounge Area & 2 Restrooms. Elevator Access in this Building, Common ADA Compliant Restrooms in hallway, Total Parking ratio for 3008 & 3012 Sillect Ave is 5.46 spaces/ 1000 Sq Ft (approx.). Right across Bakersfield Heart Hospital, near High Traffic Rosedale Hwy & CA 99 intersection area. Close to Downtown area, Proximity to Other Medical Facilities, Shopping, Eateries & Conveniences.
- Sublease space available from current tenant
- Mostly Open Floor Plan Layout
- Listed rate may not include certain utilities, building services and property expenses
Suite 120 – Approx. 3,744 Rentable Sq. Ft., Large Waiting Area, Reception Area, 4 Office Rooms, 8 Exam Rooms, Storage Rooms / Computer Room, Lounge Area & 2 Restrooms. Building 3008 Sillect Ave – has Elevator Access in this Building, Common ADA Compliant, Restrooms, in hallway outside, Total Parking ratio is 5.46 spaces per 1000 Sq Ft (approx.). Suite 140, Suite 210, and Suite 240 are also available for lease in the same Building.
- Sublease space available from current tenant
- Fully Built-Out as Standard Medical Space
- Reception Area
- Private Restrooms
- Near High Traffic Rosedale Hwy & CA 99intersection
- Proximity to Other Medical Facilities
- Listed rate may not include certain utilities, building services and property expenses
- Office intensive layout
- Central Air and Heating
- Right across from Bakersfield Heart Hospital
- Close to Downtown area
- Shopping, Eateries & Conveniences Nearby
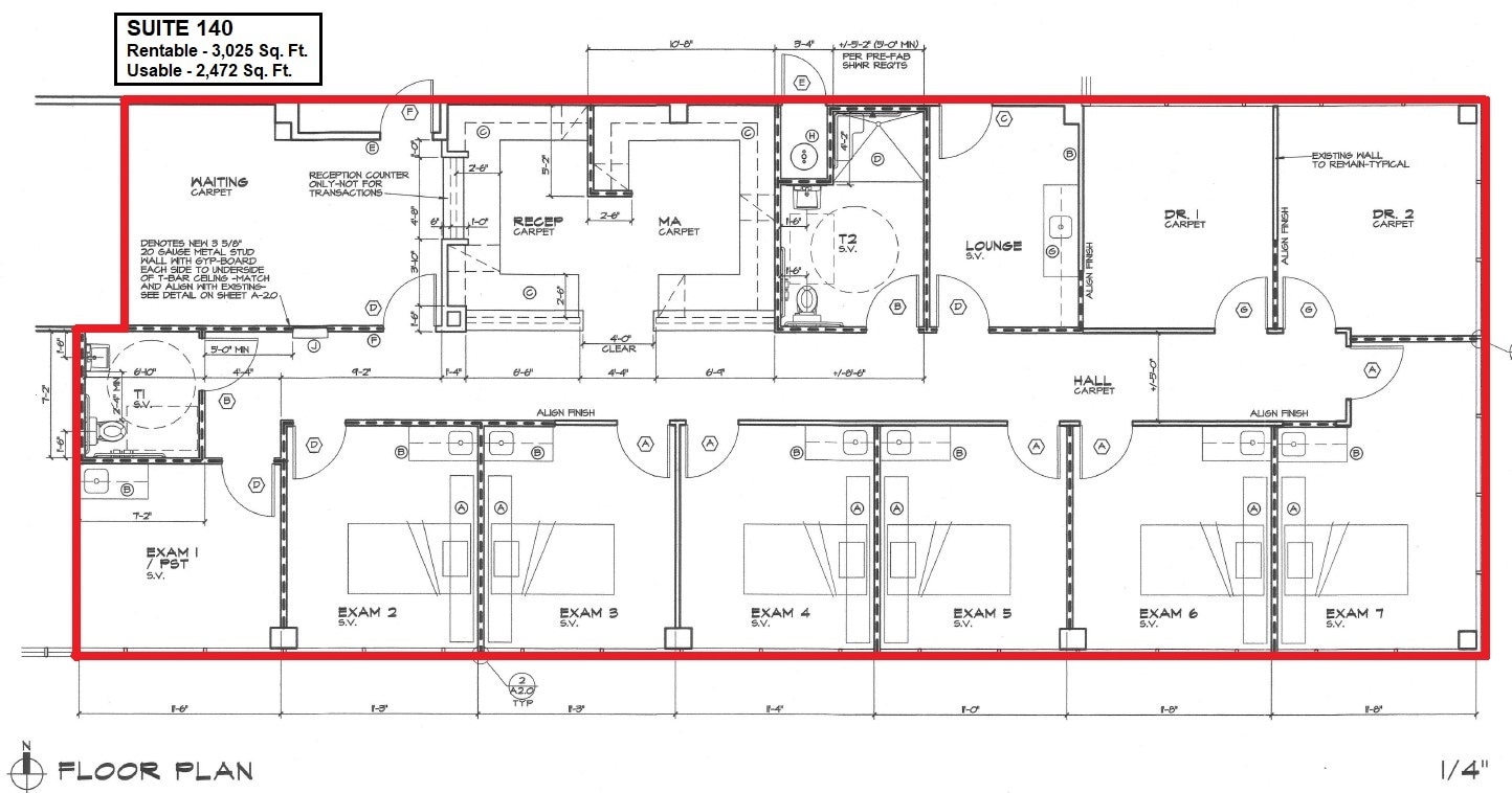
Approx. 3,025 Rentable Sq. Ft. (Usable 2,472 Sq. Ft.), Large Waiting Area, Reception Area, 2 Office Rooms, 7 Exam Rooms, 2 Restrooms (one with Shower), Lounge. Total Parking ratio for 3008 & 3012 Sillect Ave is 5.46 spaces per 1000 Sq Ft (approx.). Right across Bakersfield Heart Hospital, near High Traffic Rosedale Hwy & CA 99 intersection area. Close to Downtown area, Proximity to Other Medical Facilities, Shopping, Eateries & Conveniences. Suite 120, Suite 210, and Suite 240 are also available for lease in the same Building.
- Sublease space available from current tenant
- Fully Built-Out as Standard Medical Space
- Large Waiting Area, Reception Area
- 7 Exam Rooms
- Listed rate may not include certain utilities, building services and property expenses
- Office intensive layout
- 2 Office Rooms
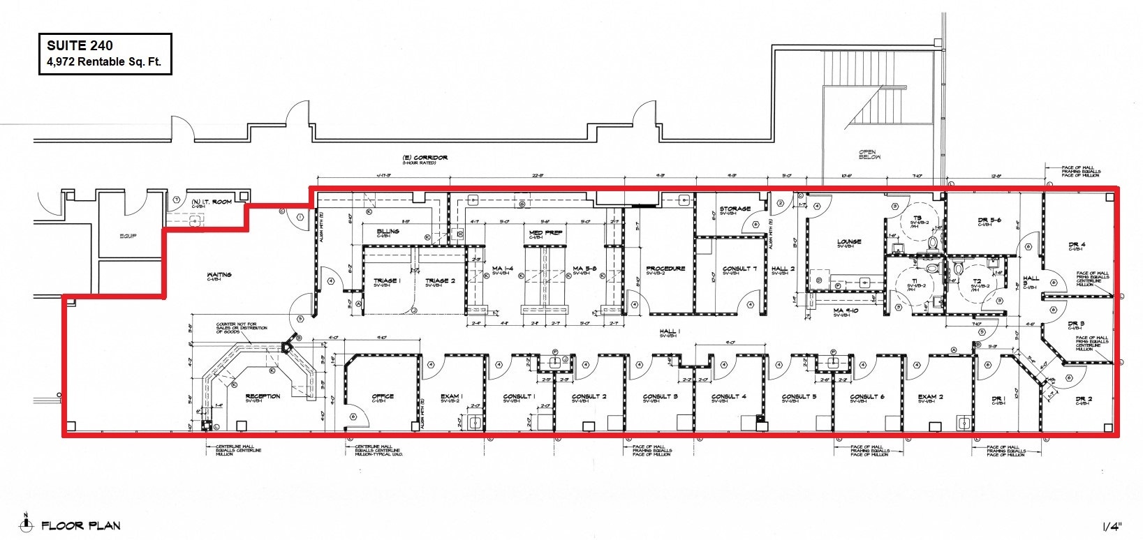
Approx. 4,972 Sq. Ft., Reception Area, Large Waiting Area, ME/Nurse Station, Large Triage, 9 Exam Rooms, 6 Office Rooms, Procedure Room, Lounge, Storage Room, 3 Restrooms. Elevator Access in the Building, Common ADA Compliant Restrooms in hallway, Total Parking ratio for 3008 & 3012 Sillect Ave is 5.46 spaces per 1000 Sq Ft (approx.). Right across Bakersfield Heart Hospital, near High Traffic Rosedale Hwy & CA 99 intersection area. Close to Downtown area, Proximity to Other Medical Facilities, Shopping, Eateries & Conveniences. Suite 120, Suite 140, and Suite 210 are also available for lease in the same Building.
- Sublease space available from current tenant
- Mostly Open Floor Plan Layout
- Central Air and Heating
- Listed rate may not include certain utilities, building services and property expenses
- Reception Area
- Private Restrooms
| Space | Size | Term | Rental Rate | Space Use | Condition | Available |
| 1st Floor, Ste 100 | 3,145 SF | Negotiable | $30.00 /SF/YR $2.50 /SF/MO $94,350 /YR $7,863 /MO | Medical | - | Now |
| 1st Floor, Ste 120 | 3,744 SF | Negotiable | $30.00 /SF/YR $2.50 /SF/MO $112,320 /YR $9,360 /MO | Medical | Full Build-Out | Now |
| 1st Floor, Ste 140 | 3,025 SF | Negotiable | $30.00 /SF/YR $2.50 /SF/MO $90,750 /YR $7,563 /MO | Medical | Full Build-Out | Now |
| 2nd Floor, Ste 240 | 4,972 SF | Negotiable | $30.00 /SF/YR $2.50 /SF/MO $149,160 /YR $12,430 /MO | Medical | Full Build-Out | Now |
1st Floor, Ste 100
| Size |
| 3,145 SF |
| Term |
| Negotiable |
| Rental Rate |
| $30.00 /SF/YR $2.50 /SF/MO $94,350 /YR $7,863 /MO |
| Space Use |
| Medical |
| Condition |
| - |
| Available |
| Now |
1st Floor, Ste 120
| Size |
| 3,744 SF |
| Term |
| Negotiable |
| Rental Rate |
| $30.00 /SF/YR $2.50 /SF/MO $112,320 /YR $9,360 /MO |
| Space Use |
| Medical |
| Condition |
| Full Build-Out |
| Available |
| Now |
1st Floor, Ste 140
| Size |
| 3,025 SF |
| Term |
| Negotiable |
| Rental Rate |
| $30.00 /SF/YR $2.50 /SF/MO $90,750 /YR $7,563 /MO |
| Space Use |
| Medical |
| Condition |
| Full Build-Out |
| Available |
| Now |
2nd Floor, Ste 240
| Size |
| 4,972 SF |
| Term |
| Negotiable |
| Rental Rate |
| $30.00 /SF/YR $2.50 /SF/MO $149,160 /YR $12,430 /MO |
| Space Use |
| Medical |
| Condition |
| Full Build-Out |
| Available |
| Now |
1st Floor, Ste 100
| Size | 3,145 SF |
| Term | Negotiable |
| Rental Rate | $30.00 /SF/YR |
| Space Use | Medical |
| Condition | - |
| Available | Now |
Approx. 3,145 Rentable Sq. Ft., Large Waiting Area, Reception Area, 2 Office Rooms, 5 Exam Rooms, Procedure Room / Exam Room, Lounge Area & 2 Restrooms. Elevator Access in this Building, Common ADA Compliant Restrooms in hallway, Total Parking ratio for 3008 & 3012 Sillect Ave is 5.46 spaces/ 1000 Sq Ft (approx.). Right across Bakersfield Heart Hospital, near High Traffic Rosedale Hwy & CA 99 intersection area. Close to Downtown area, Proximity to Other Medical Facilities, Shopping, Eateries & Conveniences.
- Sublease space available from current tenant
- Listed rate may not include certain utilities, building services and property expenses
- Mostly Open Floor Plan Layout
1st Floor, Ste 120
| Size | 3,744 SF |
| Term | Negotiable |
| Rental Rate | $30.00 /SF/YR |
| Space Use | Medical |
| Condition | Full Build-Out |
| Available | Now |
Suite 120 – Approx. 3,744 Rentable Sq. Ft., Large Waiting Area, Reception Area, 4 Office Rooms, 8 Exam Rooms, Storage Rooms / Computer Room, Lounge Area & 2 Restrooms. Building 3008 Sillect Ave – has Elevator Access in this Building, Common ADA Compliant, Restrooms, in hallway outside, Total Parking ratio is 5.46 spaces per 1000 Sq Ft (approx.). Suite 140, Suite 210, and Suite 240 are also available for lease in the same Building.
- Sublease space available from current tenant
- Listed rate may not include certain utilities, building services and property expenses
- Fully Built-Out as Standard Medical Space
- Office intensive layout
- Reception Area
- Central Air and Heating
- Private Restrooms
- Right across from Bakersfield Heart Hospital
- Near High Traffic Rosedale Hwy & CA 99intersection
- Close to Downtown area
- Proximity to Other Medical Facilities
- Shopping, Eateries & Conveniences Nearby
1st Floor, Ste 140
| Size | 3,025 SF |
| Term | Negotiable |
| Rental Rate | $30.00 /SF/YR |
| Space Use | Medical |
| Condition | Full Build-Out |
| Available | Now |
Approx. 3,025 Rentable Sq. Ft. (Usable 2,472 Sq. Ft.), Large Waiting Area, Reception Area, 2 Office Rooms, 7 Exam Rooms, 2 Restrooms (one with Shower), Lounge. Total Parking ratio for 3008 & 3012 Sillect Ave is 5.46 spaces per 1000 Sq Ft (approx.). Right across Bakersfield Heart Hospital, near High Traffic Rosedale Hwy & CA 99 intersection area. Close to Downtown area, Proximity to Other Medical Facilities, Shopping, Eateries & Conveniences. Suite 120, Suite 210, and Suite 240 are also available for lease in the same Building.
- Sublease space available from current tenant
- Listed rate may not include certain utilities, building services and property expenses
- Fully Built-Out as Standard Medical Space
- Office intensive layout
- Large Waiting Area, Reception Area
- 2 Office Rooms
- 7 Exam Rooms
2nd Floor, Ste 240
| Size | 4,972 SF |
| Term | Negotiable |
| Rental Rate | $30.00 /SF/YR |
| Space Use | Medical |
| Condition | Full Build-Out |
| Available | Now |
Approx. 4,972 Sq. Ft., Reception Area, Large Waiting Area, ME/Nurse Station, Large Triage, 9 Exam Rooms, 6 Office Rooms, Procedure Room, Lounge, Storage Room, 3 Restrooms. Elevator Access in the Building, Common ADA Compliant Restrooms in hallway, Total Parking ratio for 3008 & 3012 Sillect Ave is 5.46 spaces per 1000 Sq Ft (approx.). Right across Bakersfield Heart Hospital, near High Traffic Rosedale Hwy & CA 99 intersection area. Close to Downtown area, Proximity to Other Medical Facilities, Shopping, Eateries & Conveniences. Suite 120, Suite 140, and Suite 210 are also available for lease in the same Building.
- Sublease space available from current tenant
- Listed rate may not include certain utilities, building services and property expenses
- Mostly Open Floor Plan Layout
- Reception Area
- Central Air and Heating
- Private Restrooms
Property Overview
Four Medical Suites available right across from Bakersfield Heart Hospital, near High Traffic Rosedale Hwy and CA 99 intersection area. Close to Downtown area, Proximity to Other Medical Facilities, Shopping, Eateries & Conveniences. Building 3008 Sillect Ave – 4 Suites Available, Elevator Access in this Building, Common ADA Compliant, Restrooms, in hallway outside, Total Parking ratio is 5.46 spaces per 1000 Sq Ft (approx.). Suite 100 – Approx. 3,145 Rentable Sq. Ft., Large Waiting Area, Reception Area, 2 Office Rooms, 5 Exam Rooms, Procedure Room / Exam Room, Lounge Area & 2 Restrooms. Suite 120 – Approx. 3,744 Rentable Sq. Ft., Large Waiting Area, Reception Area, 4 Office Rooms, 8 Exam Rooms, Storage Rooms / Computer Room, Lounge Area & 2 Restrooms. Suite 140 – Approx. 3,025 Rentable Sq. Ft. Large Waiting Area, Reception Area, 2 Office Rooms, 7 Exam Rooms, 2 Restrooms (one with Shower), Lounge. Suite 240 – Approx. 4,972 Rentable Sq. Ft., Reception Area , Large Waiting Area, ME/Nurse Station, Large Triage, 9 Exam Rooms, 6 Office Rooms, Procedure Room, Lounge, Storage Room, 3 Restrooms.
Property Facts
Presented by
3008 & 3012 Sillect Ave | 3008 Sillect Ave
Hmm, there seems to have been an error sending your message. Please try again.
Thanks! Your message was sent.








