Log In/Sign Up
Your email has been sent.
Investment Highlights
- Mountain Views
- Large Studio & Shop
- Live and Work Space
Executive Summary
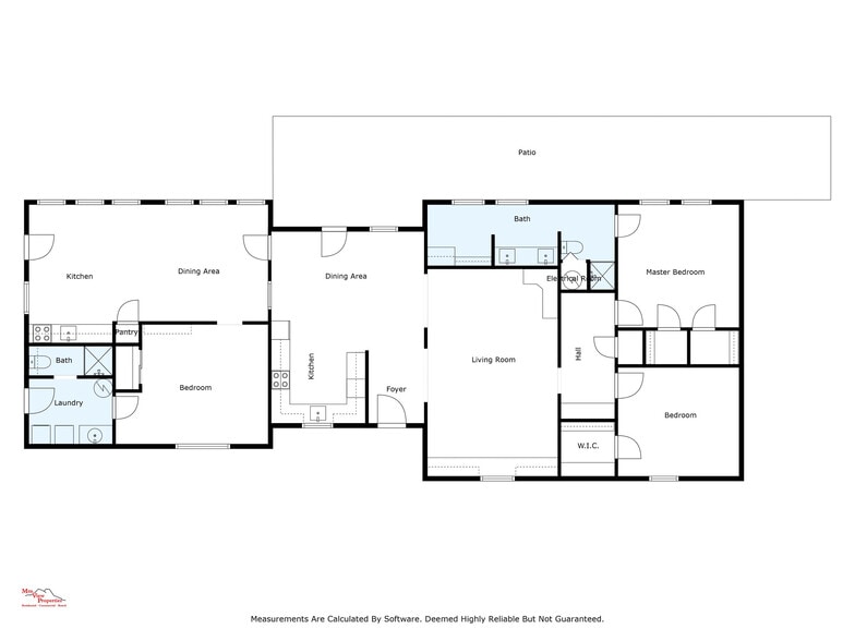
Rare opportunity! This residential/commercial property including out buildings situated on 0.59 acres features steel-frame, insulated construction. A 1900 sqft 2 bed, 2 bath residence with tile floors and a spacious kitchen. A sequestered area with a bath, kitchenette, and den could be a guest suite/office. Featuring a 1163 sqft heated/cooled multi-purpose building, 2679 sqft garage/shop, a greenhouse, and 8500 gallons of irrigation catchment tanks. Stunning mountain views make this a must-see!
Property Facts
| Price | $379,900 | Lot Size | 0.59 AC |
| Price Per SF | $66.16 | Building Size | 5,742 SF |
| Sale Type | Investment or Owner User | No. Stories | 1 |
| Property Type | Specialty | Year Built | 2003 |
| Property Subtype | Residential Income | Parking Ratio | 1.04/1,000 SF |
| Building Class | B | ||
| Zoning | None - City has no zoning | ||
| Price | $379,900 |
| Price Per SF | $66.16 |
| Sale Type | Investment or Owner User |
| Property Type | Specialty |
| Property Subtype | Residential Income |
| Building Class | B |
| Lot Size | 0.59 AC |
| Building Size | 5,742 SF |
| No. Stories | 1 |
| Year Built | 2003 |
| Parking Ratio | 1.04/1,000 SF |
| Zoning | None - City has no zoning |
Amenities
- Air Conditioning
- Smoke Detector
1 1
1 of 45
Videos
Matterport 3D Exterior
Matterport 3D Tour
Photos
Street View
Street
Map
1 of 1
Presented by
301 E Calvary Rd
Already a member? Log In
Hmm, there seems to have been an error sending your message. Please try again.
Thanks! Your message was sent.
Your message has been sent!
Activate your LoopNet account now to track properties, get real-time alerts, save time on future inquiries, and more.



