Your email has been sent.
Venetian Plaza 304 W Venice Ave 1,134 - 6,444 SF of Office/Retail Space Available in Venice, FL 34285



Highlights
- High Walkability Score
- Direct Access on Venice Ave
- Popular Shopping & Dining Area
All Available Spaces(4)
Display Rental Rate as
- Space
- Size
- Term
- Rental Rate
- Space Use
- Build-Out
- Available
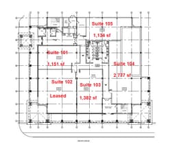
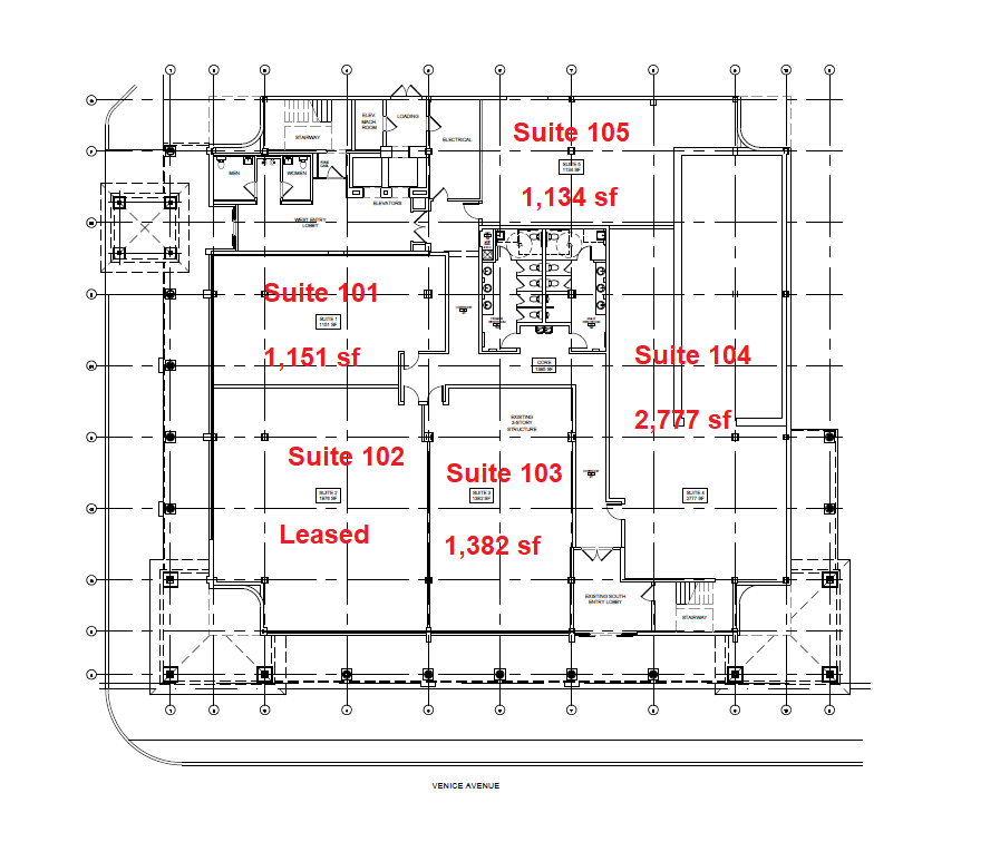
Suite 101 is on the Southwest side of the building. Space will be delivered as a vanilla shell. Building has shared bathrooms. This suite would be a wonderful location for a professional office. Leasing rate is negotiable between $32-$36/SF.
- Lease rate does not include utilities, property expenses or building services
- 2 Conference Rooms
- Fits 3 - 10 People
- Space In Need of Renovation
Suite 103 faces directly on W Venice Ave with floor to ceiling windows that let in tons of natural light and gives the ability for passersby that are window shopping to be attracted to the business within. This suite would be perfect for a boutique clothing store, a retail shop, a small café, or a professional business. Suite 103 can be combined with Suite 104 for a total combined space of 4,159 SF. Space will be delivered as a vanilla shell. Leasing rate is negotiable between $32-$36/SF.
- Lease rate does not include utilities, property expenses or building services
- Space In Need of Renovation
- Natural Light
- Fits 4 - 12 People
- Can be combined with additional space(s) for up to 4,159 SF of adjacent space
Suite 104 is a 2,777 Sq Ft space that is located on the East end of the building, right next to popular Daiquiri Deck restaurant. This unit would make an excellent spot for a restaurant or large professional office. Suite 104 can be combined with Suite 103 for a total of 4,159 Sq Ft. Space will be delivered as a vanilla shell. Leasing rate is negotiable between $32-$36/SF.
- Lease rate does not include utilities, property expenses or building services
- Space In Need of Renovation
- Fits 7 - 23 People
- Can be combined with additional space(s) for up to 4,159 SF of adjacent space
Suite 105 is a 1,134 Sq Ft suite located on the South side of the building facing the rear parking lot. This unit would make an excellent location for a retail boutique or a small professional office. Space will be delivered as a vanilla shell. Leasing rate is negotiable between $32-$36/SF.
- Lease rate does not include utilities, property expenses or building services
- Space In Need of Renovation
- Fits 3 - 10 People
| Space | Size | Term | Rental Rate | Space Use | Build-Out | Available |
| 1st Floor, Ste 101 | 1,151 SF | Negotiable | $36.00 /SF/YR $3.00 /SF/MO $41,436 /YR $3,453 /MO | Office/Retail | Partial Build-Out | Now |
| 1st Floor, Ste 103 | 1,382 SF | Negotiable | $36.00 /SF/YR $3.00 /SF/MO $49,752 /YR $4,146 /MO | Office/Retail | Partial Build-Out | Now |
| 1st Floor, Ste 104 | 2,777 SF | Negotiable | $36.00 /SF/YR $3.00 /SF/MO $99,972 /YR $8,331 /MO | Office/Retail | Partial Build-Out | Now |
| 1st Floor, Ste 105 | 1,134 SF | Negotiable | $36.00 /SF/YR $3.00 /SF/MO $40,824 /YR $3,402 /MO | Office/Retail | Partial Build-Out | Now |
1st Floor, Ste 101
| Size |
| 1,151 SF |
| Term |
| Negotiable |
| Rental Rate |
| $36.00 /SF/YR $3.00 /SF/MO $41,436 /YR $3,453 /MO |
| Space Use |
| Office/Retail |
| Build-Out |
| Partial Build-Out |
| Available |
| Now |
1st Floor, Ste 103
| Size |
| 1,382 SF |
| Term |
| Negotiable |
| Rental Rate |
| $36.00 /SF/YR $3.00 /SF/MO $49,752 /YR $4,146 /MO |
| Space Use |
| Office/Retail |
| Build-Out |
| Partial Build-Out |
| Available |
| Now |
1st Floor, Ste 104
| Size |
| 2,777 SF |
| Term |
| Negotiable |
| Rental Rate |
| $36.00 /SF/YR $3.00 /SF/MO $99,972 /YR $8,331 /MO |
| Space Use |
| Office/Retail |
| Build-Out |
| Partial Build-Out |
| Available |
| Now |
1st Floor, Ste 105
| Size |
| 1,134 SF |
| Term |
| Negotiable |
| Rental Rate |
| $36.00 /SF/YR $3.00 /SF/MO $40,824 /YR $3,402 /MO |
| Space Use |
| Office/Retail |
| Build-Out |
| Partial Build-Out |
| Available |
| Now |
1st Floor, Ste 101
| Size | 1,151 SF |
| Term | Negotiable |
| Rental Rate | $36.00 /SF/YR |
| Space Use | Office/Retail |
| Build-Out | Partial Build-Out |
| Available | Now |
Suite 101 is on the Southwest side of the building. Space will be delivered as a vanilla shell. Building has shared bathrooms. This suite would be a wonderful location for a professional office. Leasing rate is negotiable between $32-$36/SF.
- Lease rate does not include utilities, property expenses or building services
- Fits 3 - 10 People
- 2 Conference Rooms
- Space In Need of Renovation
1st Floor, Ste 103
| Size | 1,382 SF |
| Term | Negotiable |
| Rental Rate | $36.00 /SF/YR |
| Space Use | Office/Retail |
| Build-Out | Partial Build-Out |
| Available | Now |
Suite 103 faces directly on W Venice Ave with floor to ceiling windows that let in tons of natural light and gives the ability for passersby that are window shopping to be attracted to the business within. This suite would be perfect for a boutique clothing store, a retail shop, a small café, or a professional business. Suite 103 can be combined with Suite 104 for a total combined space of 4,159 SF. Space will be delivered as a vanilla shell. Leasing rate is negotiable between $32-$36/SF.
- Lease rate does not include utilities, property expenses or building services
- Fits 4 - 12 People
- Space In Need of Renovation
- Can be combined with additional space(s) for up to 4,159 SF of adjacent space
- Natural Light
1st Floor, Ste 104
| Size | 2,777 SF |
| Term | Negotiable |
| Rental Rate | $36.00 /SF/YR |
| Space Use | Office/Retail |
| Build-Out | Partial Build-Out |
| Available | Now |
Suite 104 is a 2,777 Sq Ft space that is located on the East end of the building, right next to popular Daiquiri Deck restaurant. This unit would make an excellent spot for a restaurant or large professional office. Suite 104 can be combined with Suite 103 for a total of 4,159 Sq Ft. Space will be delivered as a vanilla shell. Leasing rate is negotiable between $32-$36/SF.
- Lease rate does not include utilities, property expenses or building services
- Fits 7 - 23 People
- Space In Need of Renovation
- Can be combined with additional space(s) for up to 4,159 SF of adjacent space
1st Floor, Ste 105
| Size | 1,134 SF |
| Term | Negotiable |
| Rental Rate | $36.00 /SF/YR |
| Space Use | Office/Retail |
| Build-Out | Partial Build-Out |
| Available | Now |
Suite 105 is a 1,134 Sq Ft suite located on the South side of the building facing the rear parking lot. This unit would make an excellent location for a retail boutique or a small professional office. Space will be delivered as a vanilla shell. Leasing rate is negotiable between $32-$36/SF.
- Lease rate does not include utilities, property expenses or building services
- Fits 3 - 10 People
- Space In Need of Renovation
Property Overview
Former bank location being repurposed for Retail, Restaurant or Office space on the Island of Venice. Ground Floor Spaces with easy accessibility directly on Venice Avenue in the busy dining and shopping district. Venice Ave is a very popular destination for Locals and Tourist. This location has high vehicle & pedestrian exposure and a high walkability score. Multiple units to choose from and Landlord will combine and/or sub-divide. Suites will be delivered as a vanilla shell.
- Bus Line
- Signage
Property Facts
Presented by
Venetian Plaza | 304 W Venice Ave
Hmm, there seems to have been an error sending your message. Please try again.
Thanks! Your message was sent.


