Your email has been sent.
3070 RM 1431 - Mayfield Office Commons 876 SF Office Condo Units Offered at $360,000 - $370,000 Per Unit in Round Rock, TX 78681



Investment Highlights
- Heavy Traffic on RM 1431
- Metal Roof, High Ceilings and Energy Efficient features
- Proximity to housing complexes and local business
Executive Summary
Brand new turn-key 13-unit office condo complex. Each unit is 876 sq. ft with a reception, 3 office rooms, a conference room, a break room, and a bathroom. High Ceilings, Metal Roof, energy-efficient windows, and attic insulation. Ample Parking Space. Proximity to master-planned housing communities like Mayfield Ranch, Sendaro Springs, and Vista Oaks. Easy access to I-35 or Parmer Lane.
Data Room Click Here to Access
- Market Information
5 Units Available
Unit 100
| Unit Size | 876 SF | Condo Use | Office |
| Price | $370,000 | Sale Type | Investment or Owner User |
| Price Per SF | $422.37 |
| Unit Size | 876 SF |
| Price | $370,000 |
| Price Per SF | $422.37 |
| Condo Use | Office |
| Sale Type | Investment or Owner User |
Description
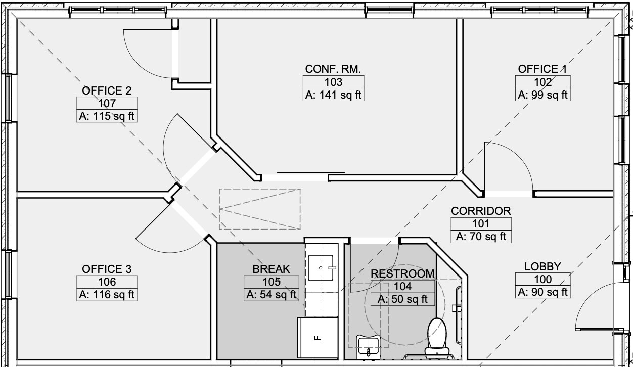
A 876 sq ft turn-key office space with reception, 3 office suites, conference room, break room, and bathroom
Unit Plan
Unit 200
| Unit Size | 876 SF | Condo Use | Office |
| Price | $360,000 | Sale Type | Investment or Owner User |
| Price Per SF | $410.96 |
| Unit Size | 876 SF |
| Price | $360,000 |
| Price Per SF | $410.96 |
| Condo Use | Office |
| Sale Type | Investment or Owner User |
Description
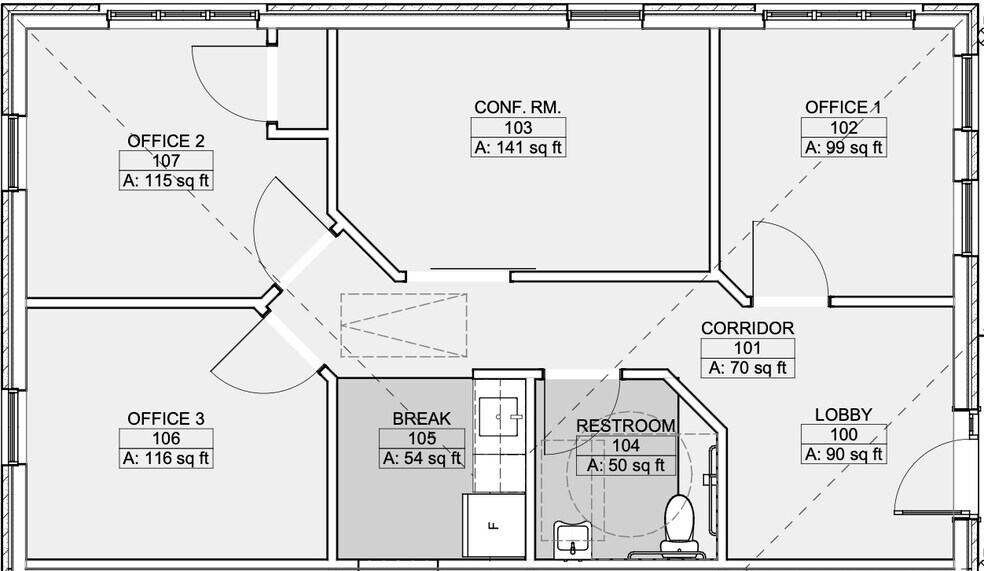
A 876 sq ft turn-key office space with reception, 3 office suites, conference room, break room, and bathroom
Unit Plan
Unit 300
| Unit Size | 876 SF | Condo Use | Office |
| Price | $360,000 | Sale Type | Investment or Owner User |
| Price Per SF | $410.96 |
| Unit Size | 876 SF |
| Price | $360,000 |
| Price Per SF | $410.96 |
| Condo Use | Office |
| Sale Type | Investment or Owner User |
Description
A 876 sq ft turn-key office space with reception, 3 office suites, conference room, break room, and bathroom
Unit Plan
Unit 400
| Unit Size | 876 SF | Condo Use | Office |
| Price | $370,000 | Sale Type | Investment or Owner User |
| Price Per SF | $422.37 |
| Unit Size | 876 SF |
| Price | $370,000 |
| Price Per SF | $422.37 |
| Condo Use | Office |
| Sale Type | Investment or Owner User |
Description
A 876 sq ft turn-key office space with reception, 3 office suites, conference room, break room, and bathroom
Unit Plan
Unit 1300
| Unit Size | 876 SF | Condo Use | Office |
| Price | $370,000 | Sale Type | Investment or Owner User |
| Price Per SF | $422.37 |
| Unit Size | 876 SF |
| Price | $370,000 |
| Price Per SF | $422.37 |
| Condo Use | Office |
| Sale Type | Investment or Owner User |
Description
A 876 sq ft turn-key office space with reception, 3 office suites, conference room, break room, and bathroom
Unit Plan
Property Facts
| Total Building Size | 11,185 SF | Typical Floor Size | 11,185 SF |
| Property Type | Office | Year Built | 2026 |
| Building Class | B | Lot Size | 1.55 AC |
| Floors | 1 |
| Total Building Size | 11,185 SF |
| Property Type | Office |
| Building Class | B |
| Floors | 1 |
| Typical Floor Size | 11,185 SF |
| Year Built | 2026 |
| Lot Size | 1.55 AC |
Presented by
3070 RM 1431 - Mayfield Office Commons
Hmm, there seems to have been an error sending your message. Please try again.
Thanks! Your message was sent.



