Your email has been sent.
Park Highlights
- 1,200 - 12,000 SF industrial flex units available in a full building. Multiple units can be combined.
- 22' Ceiling & 14' Bay Doors. High ceilings available for additional mezzanine.
- Located in Denton County jurisdiction. No city zoning.
- Leases are industrial gross and NNN expenses are not charged
- Additional overflow parking within the business park.
Park Facts
Features and Amenities
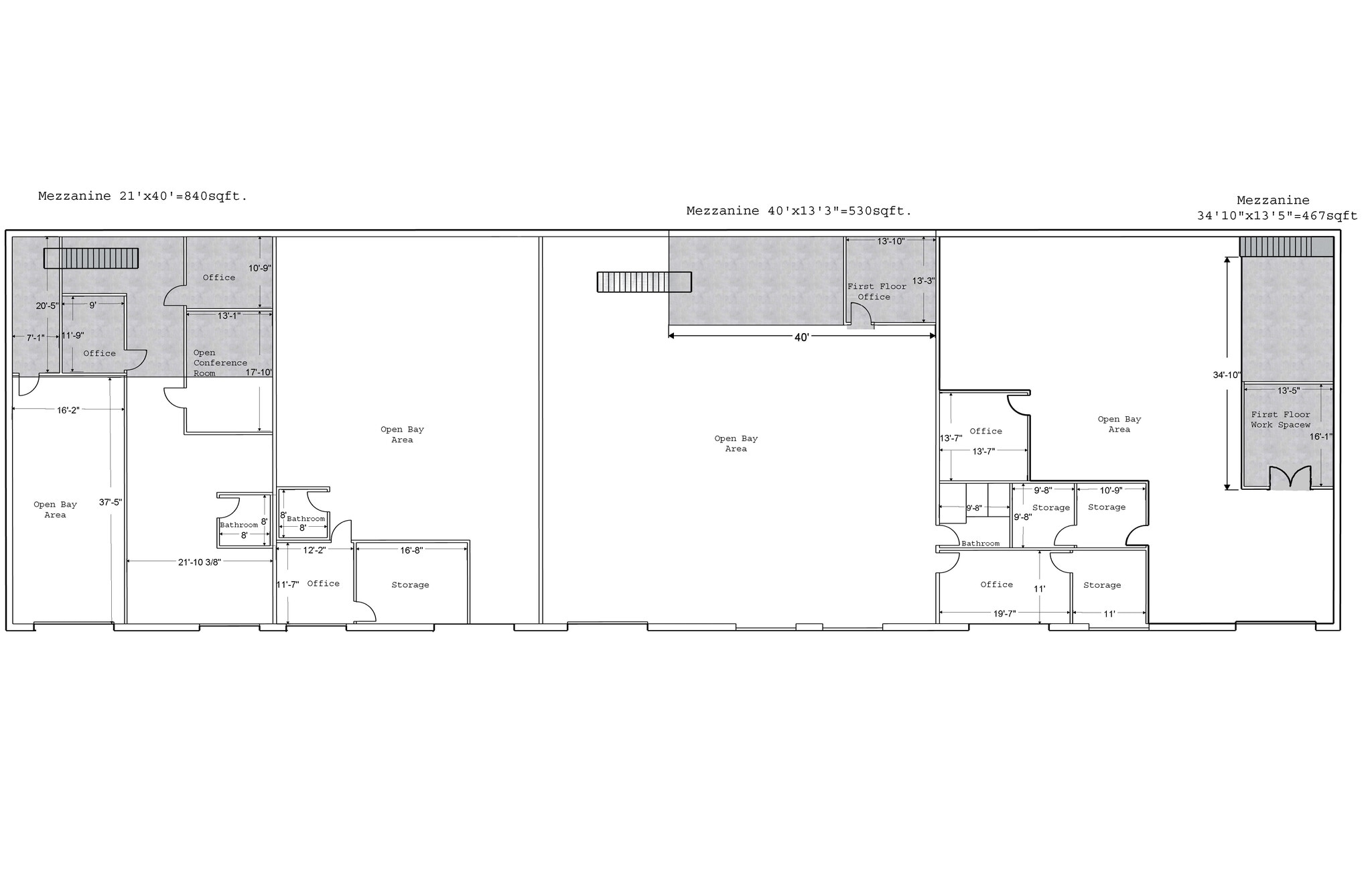
- Mezzanine
- Signage
- Tenant Controlled HVAC
- Air Conditioning
Display Rental Rate as
- Space
- Size
- Term
- Rental Rate
- Space Use
- Build-Out
- Available
2,100 Total SF Unit with one office and one bathroom Phase 3 power 22' high ceiling One 14' roll up door Full HVAC throughout unit Lease is industrial gross and does not include CAM's or NNN. Water and septic is paid for by business park.
- Listed rate may not include certain utilities, building services and property expenses
- Space is in Excellent Condition
- Reception Area
- Full HVAC throughout unit
- Three-Phase Power
- 1 Drive Bay
- Central Air and Heating
- Industrial Gross Lease. No NNN
- 22' High Ceiling
- No City Zoning Requirements
1,200 Total SF Unit with two offices, storage room, and bathroom Three-Phase Power 22' high ceiling One 14' roll up door Full HVAC throughout unit Lease is industrial gross and does not include CAM's or NNN. Water and septic is paid for by business park.
- Listed rate may not include certain utilities, building services and property expenses
- Space is in Excellent Condition
- Reception Area
- Industrial Gross Lease. No NNN
- 22' High Ceiling
- No City Zoning Requirements
- Includes 640 SF of dedicated office space
- Central Air and Heating
- Natural Light
- Full HVAC throughout unit
- Three-Phase Power
2,400 Total SF Unit with one bathroom and office near the front of the business park (building 5) Three-Phase Power 22' high ceiling One 14' roll up door Full HVAC throughout unit Lease is industrial gross and does not include CAM's or NNN. Water and septic is paid for by business park.
- Listed rate may not include certain utilities, building services and property expenses
- Space is in Excellent Condition
- Private Restrooms
- Industrial Gross Lease. No NNN.
- 22' High Ceiling
- No City Zoning Requirements
- 1 Drive Bay
- Central Air and Heating
- Natural Light
- Full HVAC throughout unit
- Three-Phase Power
7,200 Total SF Unit with one office and three bathroom Three-Phase Power 22' high ceiling Four 14' roll up doors Full HVAC throughout unit Lease is industrial gross and does not include CAM's or NNN. Water and septic is paid for by business park.
- Listed rate may not include certain utilities, building services and property expenses
- Space is in Excellent Condition
- Private Restrooms
- Industrial Gross Lease. No NNN.
- 22' High Ceiling
- No City Zoning Requirements
- 4 Drive Ins
- Central Air and Heating
- Natural Light
- Full HVAC throughout unit
- Three-Phase Power
4,800 Total SF Unit with two bathrooms Three-Phase Power 22' high ceiling Three 14' roll up doors Unit is located near the front of the business park near the entrance with close access to additional parking Lease is industrial gross and does not include CAM's or NNN. Water and septic is paid for by business park.
- 2 Drive Ins
- Central Air and Heating
- Full HVAC throughout unit
- Three-Phase Power
- Space is in Excellent Condition
- Industrial Gross Lease. No NNN.
- 22' High Ceiling
- No City Zoning Requirements
| Space | Size | Term | Rental Rate | Space Use | Build-Out | Available |
| 1st Floor - 13A | 2,100 SF | Negotiable | Upon Request Upon Request Upon Request Upon Request | Industrial | Full Build-Out | August 01, 2026 |
| 1st Floor - 3B | 1,200 SF | Negotiable | Upon Request Upon Request Upon Request Upon Request | Industrial | Full Build-Out | June 01, 2026 |
| 1st Floor - 5C | 2,400 SF | Negotiable | Upon Request Upon Request Upon Request Upon Request | Industrial | Full Build-Out | Now |
| 1st Floor - 5CDE | 7,200 SF | Negotiable | Upon Request Upon Request Upon Request Upon Request | Industrial | Full Build-Out | July 01, 2026 |
| 1st Floor - 5DE | 4,800 SF | Negotiable | Upon Request Upon Request Upon Request Upon Request | Industrial | Partial Build-Out | Now |
308 E FM 1830 - 1st Floor - 13A
308 E FM 1830 - 1st Floor - 3B
308 E FM 1830 - 1st Floor - 5C
308 E FM 1830 - 1st Floor - 5CDE
308 E FM 1830 - 1st Floor - 5DE
- Space
- Size
- Term
- Rental Rate
- Space Use
- Build-Out
- Available
2,100 Total SF Unit with one office and one bathroom Phase 3 power 22' high ceiling One 14' roll up door Full HVAC throughout unit Lease is industrial gross and does not include CAM's or NNN. Water and septic is paid for by business park.
- Listed rate may not include certain utilities, building services and property expenses
- Space is in Excellent Condition
- Reception Area
- Full HVAC throughout unit
- Three-Phase Power
- 1 Drive Bay
- Central Air and Heating
- Industrial Gross Lease. No NNN
- 22' High Ceiling
- No City Zoning Requirements
2,100 Total SF Unit with one office and one bathroom Three-Phase Power 22' high ceiling One 14' roll up door Full HVAC throughout unit Lease is industrial gross and does not include CAM's or NNN. Water and septic is paid for by business park.
- Listed rate may not include certain utilities, building services and property expenses
- 1 Drive Bay
- Partitioned Offices
- Industrial Gross Lease. No NNN
- 22' High Ceiling
- No City Zoning Requirements
- Space is in Excellent Condition
- Central Air and Heating
- High Ceilings
- Full HVAC throughout unit
- Three-Phase Power
1,200 Total SF Unit with two offices, storage room, and bathroom Three-Phase Power 22' high ceiling One 14' roll up door Full HVAC throughout unit Lease is industrial gross and does not include CAM's or NNN. Water and septic is paid for by business park.
- Listed rate may not include certain utilities, building services and property expenses
- Space is in Excellent Condition
- Central Air and Heating
- High Ceilings
- Full HVAC throughout unit
- Three-Phase Power
- Includes 640 SF of dedicated office space
- 1 Drive Bay
- Private Restrooms
- Industrial Gross Lease. No NNN
- 22' High Ceiling
- No City Zoning Requirements
1,200 Total SF Unit with two offices, storage room, and bathroom Three-Phase Power 22' high ceiling One 14' roll up door Full HVAC throughout unit Lease is industrial gross and does not include CAM's or NNN. Water and septic is paid for by business park.
- Listed rate may not include certain utilities, building services and property expenses
- Space is in Excellent Condition
- Reception Area
- Industrial Gross Lease. No NNN
- 22' High Ceiling
- No City Zoning Requirements
- Includes 640 SF of dedicated office space
- Central Air and Heating
- Natural Light
- Full HVAC throughout unit
- Three-Phase Power
2,400 Total SF Unit with one bathroom and office near the front of the business park (building 5) Three-Phase Power 22' high ceiling One 14' roll up door Full HVAC throughout unit Lease is industrial gross and does not include CAM's or NNN. Water and septic is paid for by business park.
- Listed rate may not include certain utilities, building services and property expenses
- Space is in Excellent Condition
- Private Restrooms
- Industrial Gross Lease. No NNN.
- 22' High Ceiling
- No City Zoning Requirements
- 1 Drive Bay
- Central Air and Heating
- Natural Light
- Full HVAC throughout unit
- Three-Phase Power
2,400 Total SF Unit with one bathroom and office near the front of the business park (building 5) Three-Phase Power 22' high ceiling One 14' roll up door Full HVAC throughout unit Lease is industrial gross and does not include CAM's or NNN. Water and septic is paid for by business park.
- Listed rate may not include certain utilities, building services and property expenses
- Industrial Gross Lease. No NNN.
- 22' High Ceiling
- No City Zoning Requirements
- Space is in Excellent Condition
- Full HVAC throughout unit
- Three-Phase Power
7,200 Total SF Unit with one office and three bathroom Three-Phase Power 22' high ceiling Four 14' roll up doors Full HVAC throughout unit Lease is industrial gross and does not include CAM's or NNN. Water and septic is paid for by business park.
- Listed rate may not include certain utilities, building services and property expenses
- Space is in Excellent Condition
- Private Restrooms
- Industrial Gross Lease. No NNN.
- 22' High Ceiling
- No City Zoning Requirements
- 4 Drive Ins
- Central Air and Heating
- Natural Light
- Full HVAC throughout unit
- Three-Phase Power
7,200 Total SF Unit with one office and three bathroom Three-Phase Power 22' high ceiling Four 14' roll up doors Full HVAC throughout unit Lease is industrial gross and does not include CAM's or NNN. Water and septic is paid for by business park.
- Listed rate may not include certain utilities, building services and property expenses
- 4 Drive Ins
- High Ceilings
- Full HVAC throughout unit
- Three-Phase Power
- Space is in Excellent Condition
- Central Air and Heating
- Industrial Gross Lease. No NNN.
- 22' High Ceiling
- No City Zoning Requirements
4,800 Total SF Unit with two bathrooms Three-Phase Power 22' high ceiling Three 14' roll up doors Unit is located near the front of the business park near the entrance with close access to additional parking Lease is industrial gross and does not include CAM's or NNN. Water and septic is paid for by business park.
- Listed rate may not include certain utilities, building services and property expenses
- 2 Drive Ins
- High Ceilings
- Full HVAC throughout unit
- Three-Phase Power
- Space is in Excellent Condition
- Central Air and Heating
- Industrial Gross Lease. No NNN.
- 22' High Ceiling
- No City Zoning Requirements
4,800 Total SF Unit with two bathrooms Three-Phase Power 22' high ceiling Three 14' roll up doors Unit is located near the front of the business park near the entrance with close access to additional parking Lease is industrial gross and does not include CAM's or NNN. Water and septic is paid for by business park.
- 2 Drive Ins
- Central Air and Heating
- Full HVAC throughout unit
- Three-Phase Power
- Space is in Excellent Condition
- Industrial Gross Lease. No NNN.
- 22' High Ceiling
- No City Zoning Requirements
| Space | Size | Term | Rental Rate | Space Use | Build-Out | Available |
| 1st Floor - 13A | 2,100 SF | Negotiable | Upon Request Upon Request Upon Request Upon Request | Industrial | Full Build-Out | August 01, 2026 |
| 1st Floor - 13A | 2,100 SF | Negotiable | Upon Request Upon Request Upon Request Upon Request | Flex | Full Build-Out | August 01, 2026 |
| 1st Floor - 3B | 1,200 SF | Negotiable | Upon Request Upon Request Upon Request Upon Request | Flex | Full Build-Out | Now |
| 1st Floor - 3B | 1,200 SF | Negotiable | Upon Request Upon Request Upon Request Upon Request | Industrial | Full Build-Out | June 01, 2026 |
| 1st Floor - 5C | 2,400 SF | Negotiable | Upon Request Upon Request Upon Request Upon Request | Industrial | Full Build-Out | Now |
| 1st Floor - 5C | 2,400 SF | Negotiable | Upon Request Upon Request Upon Request Upon Request | Flex | Full Build-Out | June 01, 2026 |
| 1st Floor - 5CDE | 7,200 SF | Negotiable | Upon Request Upon Request Upon Request Upon Request | Industrial | Full Build-Out | July 01, 2026 |
| 1st Floor - 5CDE | 7,200 SF | Negotiable | Upon Request Upon Request Upon Request Upon Request | Flex | Full Build-Out | July 01, 2026 |
| 1st Floor - 5DE | 4,800 SF | Negotiable | Upon Request Upon Request Upon Request Upon Request | Flex | Full Build-Out | Now |
| 1st Floor - 5DE | 4,800 SF | Negotiable | Upon Request Upon Request Upon Request Upon Request | Industrial | Partial Build-Out | Now |
308 E FM 1830 - 1st Floor - 13A
308 E FM 1830 - 1st Floor - 13A
308 E FM 1830 - 1st Floor - 3B
308 E FM 1830 - 1st Floor - 3B
308 E FM 1830 - 1st Floor - 5C
308 E FM 1830 - 1st Floor - 5C
308 E FM 1830 - 1st Floor - 5CDE
308 E FM 1830 - 1st Floor - 5CDE
308 E FM 1830 - 1st Floor - 5DE
308 E FM 1830 - 1st Floor - 5DE
308 E FM 1830 - 1st Floor - 13A
| Size | 2,100 SF |
| Term | Negotiable |
| Rental Rate | Upon Request |
| Space Use | Industrial |
| Build-Out | Full Build-Out |
| Available | August 01, 2026 |
2,100 Total SF Unit with one office and one bathroom Phase 3 power 22' high ceiling One 14' roll up door Full HVAC throughout unit Lease is industrial gross and does not include CAM's or NNN. Water and septic is paid for by business park.
- Listed rate may not include certain utilities, building services and property expenses
- 1 Drive Bay
- Space is in Excellent Condition
- Central Air and Heating
- Reception Area
- Industrial Gross Lease. No NNN
- Full HVAC throughout unit
- 22' High Ceiling
- Three-Phase Power
- No City Zoning Requirements
308 E FM 1830 - 1st Floor - 13A
| Size | 2,100 SF |
| Term | Negotiable |
| Rental Rate | Upon Request |
| Space Use | Flex |
| Build-Out | Full Build-Out |
| Available | August 01, 2026 |
2,100 Total SF Unit with one office and one bathroom Three-Phase Power 22' high ceiling One 14' roll up door Full HVAC throughout unit Lease is industrial gross and does not include CAM's or NNN. Water and septic is paid for by business park.
- Listed rate may not include certain utilities, building services and property expenses
- Space is in Excellent Condition
- 1 Drive Bay
- Central Air and Heating
- Partitioned Offices
- High Ceilings
- Industrial Gross Lease. No NNN
- Full HVAC throughout unit
- 22' High Ceiling
- Three-Phase Power
- No City Zoning Requirements
308 E FM 1830 - 1st Floor - 3B
| Size | 1,200 SF |
| Term | Negotiable |
| Rental Rate | Upon Request |
| Space Use | Flex |
| Build-Out | Full Build-Out |
| Available | Now |
1,200 Total SF Unit with two offices, storage room, and bathroom Three-Phase Power 22' high ceiling One 14' roll up door Full HVAC throughout unit Lease is industrial gross and does not include CAM's or NNN. Water and septic is paid for by business park.
- Listed rate may not include certain utilities, building services and property expenses
- Includes 640 SF of dedicated office space
- Space is in Excellent Condition
- 1 Drive Bay
- Central Air and Heating
- Private Restrooms
- High Ceilings
- Industrial Gross Lease. No NNN
- Full HVAC throughout unit
- 22' High Ceiling
- Three-Phase Power
- No City Zoning Requirements
308 E FM 1830 - 1st Floor - 3B
| Size | 1,200 SF |
| Term | Negotiable |
| Rental Rate | Upon Request |
| Space Use | Industrial |
| Build-Out | Full Build-Out |
| Available | June 01, 2026 |
1,200 Total SF Unit with two offices, storage room, and bathroom Three-Phase Power 22' high ceiling One 14' roll up door Full HVAC throughout unit Lease is industrial gross and does not include CAM's or NNN. Water and septic is paid for by business park.
- Listed rate may not include certain utilities, building services and property expenses
- Includes 640 SF of dedicated office space
- Space is in Excellent Condition
- Central Air and Heating
- Reception Area
- Natural Light
- Industrial Gross Lease. No NNN
- Full HVAC throughout unit
- 22' High Ceiling
- Three-Phase Power
- No City Zoning Requirements
308 E FM 1830 - 1st Floor - 5C
| Size | 2,400 SF |
| Term | Negotiable |
| Rental Rate | Upon Request |
| Space Use | Industrial |
| Build-Out | Full Build-Out |
| Available | Now |
2,400 Total SF Unit with one bathroom and office near the front of the business park (building 5) Three-Phase Power 22' high ceiling One 14' roll up door Full HVAC throughout unit Lease is industrial gross and does not include CAM's or NNN. Water and septic is paid for by business park.
- Listed rate may not include certain utilities, building services and property expenses
- 1 Drive Bay
- Space is in Excellent Condition
- Central Air and Heating
- Private Restrooms
- Natural Light
- Industrial Gross Lease. No NNN.
- Full HVAC throughout unit
- 22' High Ceiling
- Three-Phase Power
- No City Zoning Requirements
308 E FM 1830 - 1st Floor - 5C
| Size | 2,400 SF |
| Term | Negotiable |
| Rental Rate | Upon Request |
| Space Use | Flex |
| Build-Out | Full Build-Out |
| Available | June 01, 2026 |
2,400 Total SF Unit with one bathroom and office near the front of the business park (building 5) Three-Phase Power 22' high ceiling One 14' roll up door Full HVAC throughout unit Lease is industrial gross and does not include CAM's or NNN. Water and septic is paid for by business park.
- Listed rate may not include certain utilities, building services and property expenses
- Space is in Excellent Condition
- Industrial Gross Lease. No NNN.
- Full HVAC throughout unit
- 22' High Ceiling
- Three-Phase Power
- No City Zoning Requirements
308 E FM 1830 - 1st Floor - 5CDE
| Size | 7,200 SF |
| Term | Negotiable |
| Rental Rate | Upon Request |
| Space Use | Industrial |
| Build-Out | Full Build-Out |
| Available | July 01, 2026 |
7,200 Total SF Unit with one office and three bathroom Three-Phase Power 22' high ceiling Four 14' roll up doors Full HVAC throughout unit Lease is industrial gross and does not include CAM's or NNN. Water and septic is paid for by business park.
- Listed rate may not include certain utilities, building services and property expenses
- 4 Drive Ins
- Space is in Excellent Condition
- Central Air and Heating
- Private Restrooms
- Natural Light
- Industrial Gross Lease. No NNN.
- Full HVAC throughout unit
- 22' High Ceiling
- Three-Phase Power
- No City Zoning Requirements
308 E FM 1830 - 1st Floor - 5CDE
| Size | 7,200 SF |
| Term | Negotiable |
| Rental Rate | Upon Request |
| Space Use | Flex |
| Build-Out | Full Build-Out |
| Available | July 01, 2026 |
7,200 Total SF Unit with one office and three bathroom Three-Phase Power 22' high ceiling Four 14' roll up doors Full HVAC throughout unit Lease is industrial gross and does not include CAM's or NNN. Water and septic is paid for by business park.
- Listed rate may not include certain utilities, building services and property expenses
- Space is in Excellent Condition
- 4 Drive Ins
- Central Air and Heating
- High Ceilings
- Industrial Gross Lease. No NNN.
- Full HVAC throughout unit
- 22' High Ceiling
- Three-Phase Power
- No City Zoning Requirements
308 E FM 1830 - 1st Floor - 5DE
| Size | 4,800 SF |
| Term | Negotiable |
| Rental Rate | Upon Request |
| Space Use | Flex |
| Build-Out | Full Build-Out |
| Available | Now |
4,800 Total SF Unit with two bathrooms Three-Phase Power 22' high ceiling Three 14' roll up doors Unit is located near the front of the business park near the entrance with close access to additional parking Lease is industrial gross and does not include CAM's or NNN. Water and septic is paid for by business park.
- Listed rate may not include certain utilities, building services and property expenses
- Space is in Excellent Condition
- 2 Drive Ins
- Central Air and Heating
- High Ceilings
- Industrial Gross Lease. No NNN.
- Full HVAC throughout unit
- 22' High Ceiling
- Three-Phase Power
- No City Zoning Requirements
308 E FM 1830 - 1st Floor - 5DE
| Size | 4,800 SF |
| Term | Negotiable |
| Rental Rate | Upon Request |
| Space Use | Industrial |
| Build-Out | Partial Build-Out |
| Available | Now |
4,800 Total SF Unit with two bathrooms Three-Phase Power 22' high ceiling Three 14' roll up doors Unit is located near the front of the business park near the entrance with close access to additional parking Lease is industrial gross and does not include CAM's or NNN. Water and septic is paid for by business park.
- 2 Drive Ins
- Space is in Excellent Condition
- Central Air and Heating
- Industrial Gross Lease. No NNN.
- Full HVAC throughout unit
- 22' High Ceiling
- Three-Phase Power
- No City Zoning Requirements
Site Plan
Park Overview
Argyle Business Park offers modern and affordable industrial flex space (office/warehouse) located in one of the fastest-growing and highest-income areas of Denton County. The park is well suited for contractors, sports/athletic groups, service-based businesses, light industrial users, and storage operations that want to operate close to the expanding communities of Argyle, Lantana, Bartonville, Highland Village, Flower Mound, & Denton, The property is located less than one mile north of the intersection of FM 1830 and FM 407, providing convenient access to I-35W, I-35E, Highway 377, Flower Mound, and Denton. This central location allows businesses to efficiently serve the broader North DFW market. Argyle Business Park provides a rare opportunity for small-bay industrial users to operate within a high-income trade area experiencing strong residential and commercial growth. The property is located in Denton County jurisdiction (no city zoning) while still offering modern building features, including fire sprinkler systems installed in all units. PARK HIGHLIGHTS • Ideal for contractors, sports/athletic groups, service companies, storage users, and light industrial businesses • Full HVAC throughout all units • Fire sprinkler systems installed in all units • Glass storefront doors and windows • Stained and sealed concrete floor • Three Phase Power • Additional overflow parking • Located in the high-growth Argyle / Lantana corridor less than 1 mile from FM 1830 & FM 407 • Easy access to I-35W, I-35E, and Highway 377 • Serves Argyle, Denton, Lantana, Bartonville, Flower Mound, & Highland Village • Located in Denton County jurisdiction (no city zoning) • Located in a high-income demographic area with strong population growth BROKER INFORMATION Tenant representation brokers: 4.5% commission
Presented by
Argyle Business Park | Argyle, TX 76226
Hmm, there seems to have been an error sending your message. Please try again.
Thanks! Your message was sent.































