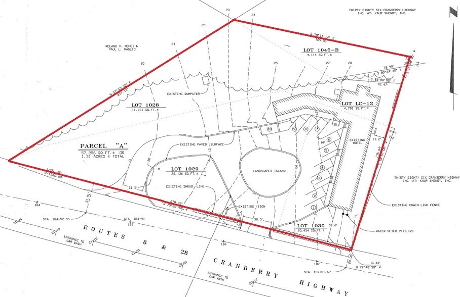
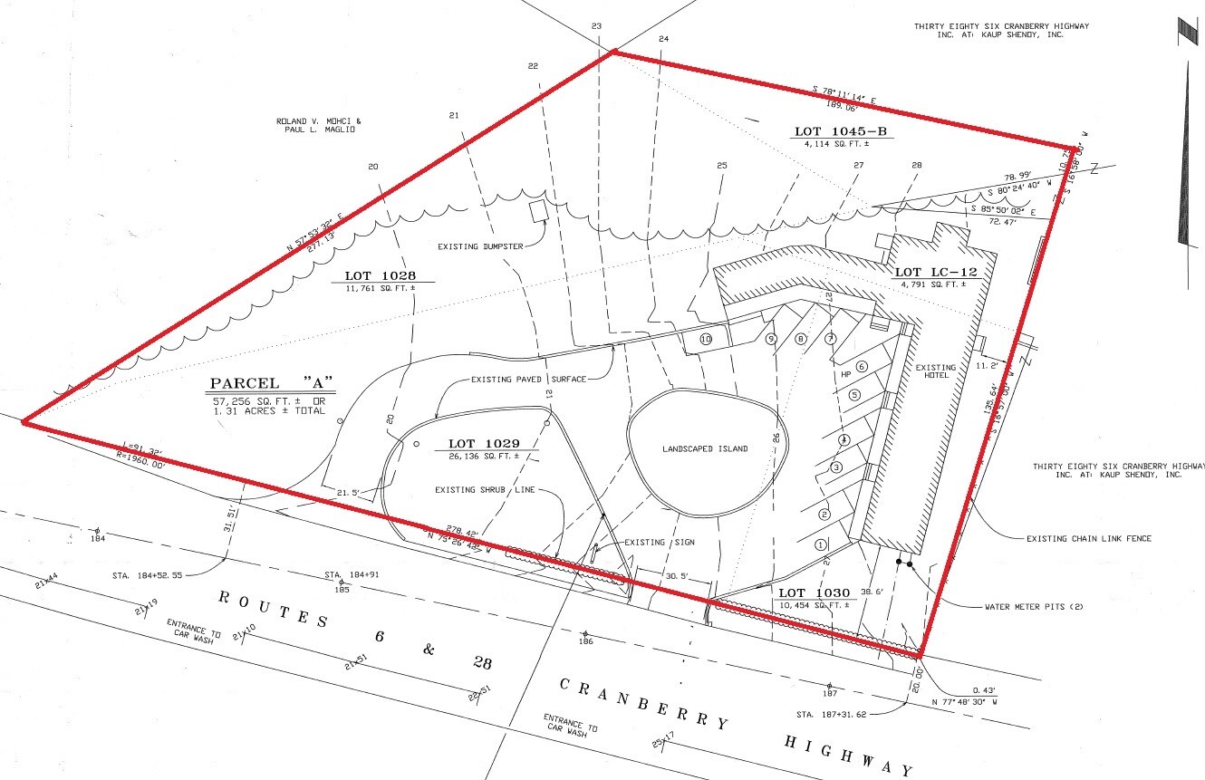
3082 Cranberry Hwy | East Wareham, MA 02538
This feature is unavailable at the moment.
We apologize, but the feature you are trying to access is currently unavailable. We are aware of this issue and our team is working hard to resolve the matter.
Please check back in a few minutes. We apologize for the inconvenience.
- LoopNet Team
This Land Property is no longer advertised on LoopNet.com.
3082 Cranberry Hwy
East Wareham, MA 02538
3082 Cranberry Hwy 1.31 Acres · Land For Sale
·
1.31 AC

PROPERTY FACTS
| Property Type | Land | Total Lot Size | 1.31 AC |
| Property Subtype | Commercial | No. Stories | 1 |
| Proposed Use | Retail |
| Property Type | Land |
| Property Subtype | Commercial |
| Proposed Use | Retail |
| Total Lot Size | 1.31 AC |
| No. Stories | 1 |
PROPERTY TAXES
| Parcel Numbers |
Multiple
|
Improvements Assessment | $239,000 |
| Land Assessment | $257,600 | Total Assessment | $496,600 |
PROPERTY TAXES
Parcel Numbers
Multiple
- WARE-000131-000000-001029
- WARE-000131-000000-001028
- WARE-000131-000000-001030
Land Assessment
$257,600
Improvements Assessment
$239,000
Total Assessment
$496,600
Listing ID: 7790218
Date on Market: 6/23/2017
Last Updated:
Address: 3082 Cranberry Hwy, East Wareham, MA 02538
The Land Property at 3082 Cranberry Hwy, East Wareham, MA 02538 is no longer being advertised on LoopNet.com. Contact the broker for information on availability.
LAND PROPERTIES IN NEARBY NEIGHBORHOODS
1 of 1
VIDEOS
MATTERPORT 3D EXTERIOR
MATTERPORT 3D TOUR
PHOTOS
STREET VIEW
STREET
MAP

Link copied
Your LoopNet account has been created!
Thank you for your feedback.
Please Share Your Feedback
We welcome any feedback on how we can improve LoopNet to better serve your needs.X
{{ getErrorText(feedbackForm.starRating, "rating") }}
255 character limit ({{ remainingChars() }} charactercharacters remainingover)
{{ getErrorText(feedbackForm.msg, "rating") }}
{{ getErrorText(feedbackForm.fname, "first name") }}
{{ getErrorText(feedbackForm.lname, "last name") }}
{{ getErrorText(feedbackForm.phone, "phone number") }}
{{ getErrorText(feedbackForm.phonex, "phone extension") }}
{{ getErrorText(feedbackForm.email, "email address") }}
You can provide feedback any time using the Help button at the top of the page.