Your email has been sent.
Sublease Highlights
- The building features a variety of specialized lab spaces, including fume hoods, workbenches, and dedicated hazardous storage.
- Two-story state-of-the-art life science facility designed to support cutting-edge research and development.
- Call to tour.
- The property offers robust backup power systems, executive office suites, and a spacious, modern lobby to enhance functionality and comfort.
- Highly visible Central Expressway location.
Features
All Available Spaces(2)
Display Rental Rate as
- Space
- Size
- Term
- Rental Rate
- Space Use
- Build-Out
- Available
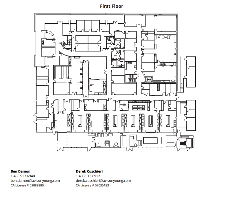
3100 Central Expressway is a ±39,176 SF, two-story state-of-the-art life science facility designed to support cutting-edge research and development. The building features a variety of specialized lab spaces, including fume hoods, workbenches, and dedicated hazardous storage with two H2 Hazardous Storage and Containment facilities. Additionally, the property offers robust backup power systems, executive office suites, and a spacious, modern lobby to enhance functionality and comfort. The first floor is a mix of office and lab space.
- Sublease space available from current tenant
- Fully Built-Out as Research and Development Space
- Fits 49 - 157 People
- Can be combined with additional space(s) for up to 39,176 SF of adjacent space
- Single tenant opportunity.
- Lease rate does not include utilities, property expenses or building services
- Office intensive layout
- Space is in Excellent Condition
- Laboratory
3100 Central Expressway is a ±39,176 SF, two-story state-of-the-art life science facility designed to support cutting-edge research and development. The building features a variety of specialized lab spaces, including fume hoods, workbenches, and dedicated hazardous storage with two H2 Hazardous Storage and Containment facilities. Additionally, the property offers robust backup power systems, executive office suites, and a spacious, modern lobby to enhance functionality and comfort. The second floor has executive offices, a small lab area, a data center area, and a cafeteria.
- Sublease space available from current tenant
- Fully Built-Out as Research and Development Space
- 16 Private Offices
- Space is in Excellent Condition
- Laboratory
- Lease rate does not include utilities, property expenses or building services
- Fits 49 - 157 People
- 3 Conference Rooms
- Can be combined with additional space(s) for up to 39,176 SF of adjacent space
- Single tenant opportunity.
| Space | Size | Term | Rental Rate | Space Use | Build-Out | Available |
| 1st Floor, Ste Single Tenant Bldg | 19,588 SF | Nov 2026 | Upon Request Upon Request Upon Request Upon Request | Office | Full Build-Out | Now |
| 2nd Floor, Ste Single Tenant Bldg | 19,588 SF | Nov 2026 | Upon Request Upon Request Upon Request Upon Request | Office | Full Build-Out | Now |
1st Floor, Ste Single Tenant Bldg
| Size |
| 19,588 SF |
| Term |
| Nov 2026 |
| Rental Rate |
| Upon Request Upon Request Upon Request Upon Request |
| Space Use |
| Office |
| Build-Out |
| Full Build-Out |
| Available |
| Now |
2nd Floor, Ste Single Tenant Bldg
| Size |
| 19,588 SF |
| Term |
| Nov 2026 |
| Rental Rate |
| Upon Request Upon Request Upon Request Upon Request |
| Space Use |
| Office |
| Build-Out |
| Full Build-Out |
| Available |
| Now |
1st Floor, Ste Single Tenant Bldg
| Size | 19,588 SF |
| Term | Nov 2026 |
| Rental Rate | Upon Request |
| Space Use | Office |
| Build-Out | Full Build-Out |
| Available | Now |
3100 Central Expressway is a ±39,176 SF, two-story state-of-the-art life science facility designed to support cutting-edge research and development. The building features a variety of specialized lab spaces, including fume hoods, workbenches, and dedicated hazardous storage with two H2 Hazardous Storage and Containment facilities. Additionally, the property offers robust backup power systems, executive office suites, and a spacious, modern lobby to enhance functionality and comfort. The first floor is a mix of office and lab space.
- Sublease space available from current tenant
- Lease rate does not include utilities, property expenses or building services
- Fully Built-Out as Research and Development Space
- Office intensive layout
- Fits 49 - 157 People
- Space is in Excellent Condition
- Can be combined with additional space(s) for up to 39,176 SF of adjacent space
- Laboratory
- Single tenant opportunity.
2nd Floor, Ste Single Tenant Bldg
| Size | 19,588 SF |
| Term | Nov 2026 |
| Rental Rate | Upon Request |
| Space Use | Office |
| Build-Out | Full Build-Out |
| Available | Now |
3100 Central Expressway is a ±39,176 SF, two-story state-of-the-art life science facility designed to support cutting-edge research and development. The building features a variety of specialized lab spaces, including fume hoods, workbenches, and dedicated hazardous storage with two H2 Hazardous Storage and Containment facilities. Additionally, the property offers robust backup power systems, executive office suites, and a spacious, modern lobby to enhance functionality and comfort. The second floor has executive offices, a small lab area, a data center area, and a cafeteria.
- Sublease space available from current tenant
- Lease rate does not include utilities, property expenses or building services
- Fully Built-Out as Research and Development Space
- Fits 49 - 157 People
- 16 Private Offices
- 3 Conference Rooms
- Space is in Excellent Condition
- Can be combined with additional space(s) for up to 39,176 SF of adjacent space
- Laboratory
- Single tenant opportunity.
Property Overview
3100 Central Expressway is a ±39,176 SF, two-story state-of-the-art life science facility designed to support cutting-edge research and development. The building features a variety of specialized lab spaces, including fume hoods, workbenches, and dedicated hazardous storage with two H2 Hazardous Storage and Containment facilities. Additionally, the property offers robust backup power systems, executive office suites, and a spacious, modern lobby to enhance functionality and comfort.
Property Facts
Select Tenants
- Floor
- Tenant Name
- Industry
- Multiple
- Nanosyn
- Manufacturing
Presented by
3100 Central Expy
Hmm, there seems to have been an error sending your message. Please try again.
Thanks! Your message was sent.








