Your email has been sent.
3114 E Garvey Ave S 0.37 Acres of Commercial Land Offered at $1,685,000 in West Covina, CA 91791



INVESTMENT HIGHLIGHTS
- High -Visibility location along freeway I-10
- Walking/Driving access to popular amenities -including McDonald's / In-N-Out Burger/ Eastland Center / IKEA/ LA Fitness
- High-Visibility location along busy commercial corridor
- Potential Large electronic billboard for Freeway I-10
EXECUTIVE SUMMARY
Potential large electronic billboard for I-10 Visible .
PROPERTY FACTS
1 LOT AVAILABLE
Lot
| Price | $1,685,000 | Lot Size | 0.37 AC |
| Price Per AC | $4,591,280.65 |
| Price | $1,685,000 |
| Price Per AC | $4,591,280.65 |
| Lot Size | 0.37 AC |
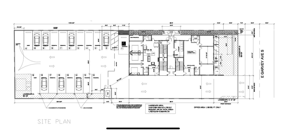
Lot Size : 16,272 SQFT Zoning: City upgrade to NMU (Commercial or Mix-USE ) All Civil Engineering report is ready Summit to city planning department : 5 units Residential and 1 office (Mix-use project )
DESCRIPTION
Prime land opportunity in the highly desirable city of West Covina. Located at 3114 E. Garvey Ave S, this parcel offers excellent visibility and convenient access near major freeways, retail centers, and established commercial corridors. The lot provides a versatile development opportunity with strong traffic exposure and close proximity to shopping, dining, and local amenities. Ideal for investors, developers, or owners looking to build a custom project. Buyer to verify zoning, permitted uses, and all development requirements with the city. Don’t miss this rare chance to secure land in a thriving and well-connected location.
PROPERTY TAXES
| Parcel Number | 8480-002-049 | Improvements Assessment | $0 |
| Land Assessment | $1,130,000 | Total Assessment | $1,130,000 |
PROPERTY TAXES
Presented by
Aitop Investment LLC
3114 E Garvey Ave S
Hmm, there seems to have been an error sending your message. Please try again.
Thanks! Your message was sent.
