Log In/Sign Up
Your email has been sent.
Investment Highlights
- Tremendous Build Opportunity
- Entitled for 6,509 Sq Foot Building
- Fully Entitled for 3 Condo Units with Roof Deck and Garage
Executive Summary
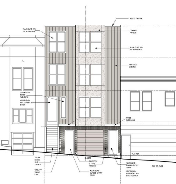
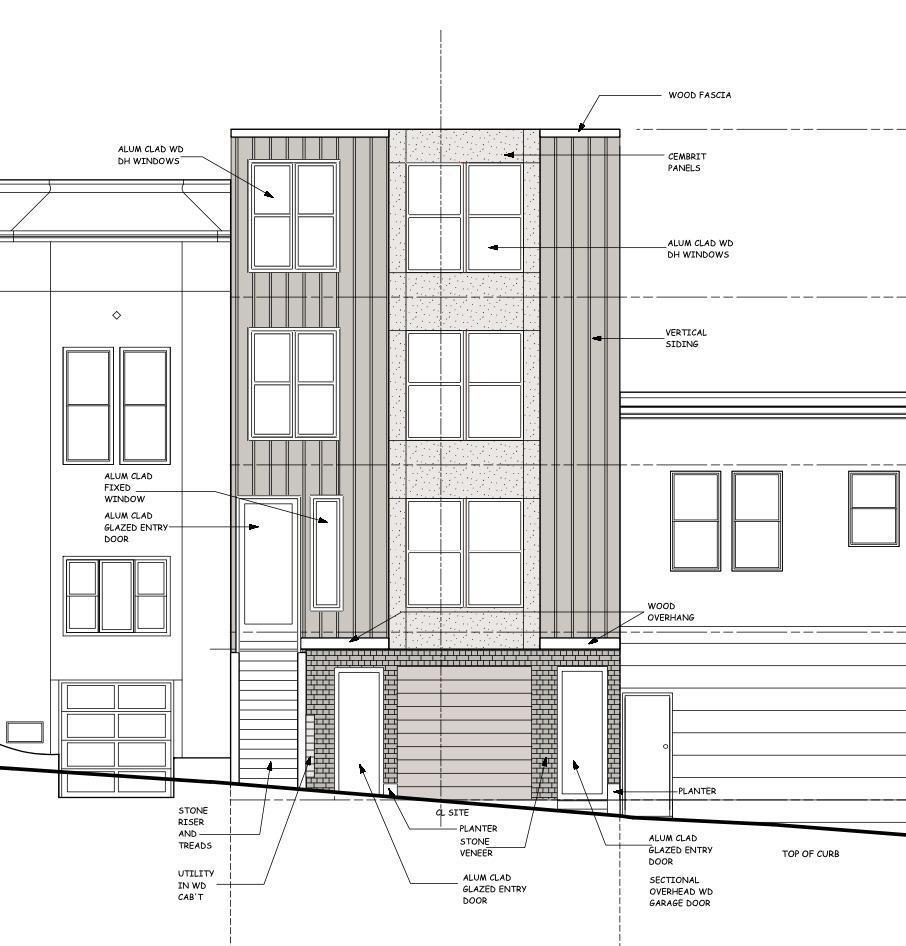
312 Utah Street is a fully entitled development opportunity on the Potrero Hill and Mission border. Approved plans call for a new four-story, three-unit building totaling 6,509 square feet of gross area, including 4,958 square feet of net livable space. The design features a 2,032 square foot full-floor residence with patio, a 910 square foot residence with balcony, and a 2,016 square foot two-level penthouse with private deck and roof deck. The project includes a two-car garage, bicycle storage, and a landscaped shared yard. Zoning is RH-3 with an approved building height of 40 feet.
Property Facts
1 Lot Available
Lot
| Price | $1,150,000 | Lot Size | 0.05 AC |
| Price Per AC | $21,732,557.26 |
| Price | $1,150,000 |
| Price Per AC | $21,732,557.26 |
| Lot Size | 0.05 AC |
1 1
Exceptionally walkable
90/100
Moderately drivable
70/100
Exceptional public transit
100/100
Moderately bikeable
60/100
Property Taxes
| Parcel Number | 3961-001A | Improvements Assessment | $0 |
| Land Assessment | $1,233,982 | Total Assessment | $1,233,982 |
Property Taxes
Parcel Number
3961-001A
Land Assessment
$1,233,982
Improvements Assessment
$0
Total Assessment
$1,233,982
1 of 3
Videos
Matterport 3D Exterior
Matterport 3D Tour
Photos
Street View
Street
Map
1 of 1
Presented by
312 Utah St
Already a member? Log In
Hmm, there seems to have been an error sending your message. Please try again.
Thanks! Your message was sent.


