Your email has been sent.
Highlights
- 1,452± SF To 3,755± SF Office / Mixed-Use Space Available
- Excellent Signage & Visibility
- Abundant Parking In Private Lot
- Floor Plans & 3D Tours Available
- 14,000 Average Daily Traffic Along W. 12th Street
- Join Pearson Professional Center, Trilogy Wellness & More
All Available Spaces(2)
Display Rental Rate as
- Space
- Size
- Term
- Rental Rate
- Space Use
- Build-Out
- Available
2,303± SF mixed-use space for lease at Edgewood Place. Layout includes large open area with tray ceiling, spacious office, restroom, storage room, mechanical room with washer hook-up and utility room/potential second restroom. Floor plan & 3D tour available. Excellent signage & visibility with 14,000 average daily traffic (PennDOT 2024 count year). Abundant parking. Zoned MU-2, Corridor Mixed Use, in Millcreek Township offering many potential uses: retail, office & more. Offered at $14.00/SF/YR + CAM + utilities. CAM estimated at $4.03/SF/YR based on 2025. Tenant pays approximately $3,460/month (base rent & CAM) plus utilities. Up to 3,755± SF available. Join Pearson Professional Center & Trilogy Wellness at Edgewood Place!
- Lease rate does not include utilities, property expenses or building services
- Mostly Open Floor Plan Layout
- Space is in Excellent Condition
- 2,303± SF Mixed-Use Space For Lease
- 1 - 2 Restrooms & Storage Rooms
- Excellent Signage & Visibility
- Fully Built-Out as Standard Retail Space
- 1 Private Office
- Can be combined with additional space(s) for up to 3,755 SF of adjacent space
- Mostly Open Floor Plan With Large Private Office
- Floor Plan & 3D Tour Available
- Abundance Parking Lot
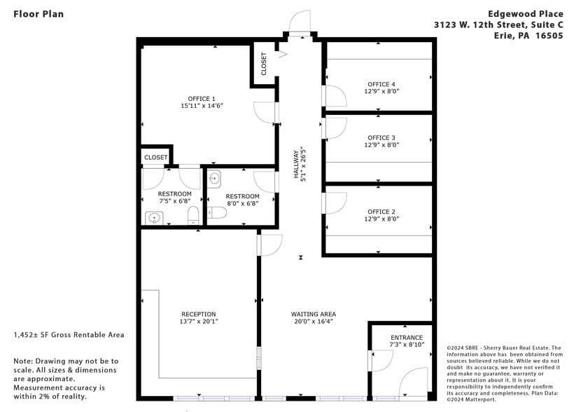
1,452± SF office suite for lease at Edgewood Place. Move-in ready! Completely renovated with new synthetic flooring & neutral paint throughout. Layout includes waiting area, reception with window to waiting area, 4 private offices including one private office with an en-suite restroom, ADA restroom & storage closet. Floor plan & 3D tour available. Excellent signage & visibility with 14,000 average daily traffic (PennDOT 2024 count year). Abundant parking. Zoned MU-2, Corridor Mixed Use, in Millcreek Township offering many potential uses: retail, office & more. Offered at $14.00/SF/YR + CAM + utilities. CAM estimated at $4.03/SF/YR based on 2025. Tenant pays approximately $2,182/month (base rent & CAM) plus utilities. Join Pearson Professional Center, Trilogy Wellness & more at Edgewood Place!
- Lease rate does not include utilities, property expenses or building services
- 4 Private Offices
- Can be combined with additional space(s) for up to 3,755 SF of adjacent space
- New Synthetic Flooring & Neutral Paint Throughout
- 4 Private Offices - One With En-Suite ADA Restroom
- 3D Tour & Floor Plan Available
- Fully Built-Out as Standard Office
- Space is in Excellent Condition
- 1,452± SF Office Suite For Lease - Move-In Ready
- Waiting Area & Reception With Windows
- Additional ADA Restroom & Storage Closet
| Space | Size | Term | Rental Rate | Space Use | Build-Out | Available |
| 1st Floor, Ste B | 2,303 SF | Negotiable | $14.00 /SF/YR $1.17 /SF/MO $32,242 /YR $2,687 /MO | Office/Retail | Full Build-Out | Now |
| 1st Floor, Ste C | 1,452 SF | Negotiable | $14.00 /SF/YR $1.17 /SF/MO $20,328 /YR $1,694 /MO | Office/Medical | Full Build-Out | Now |
1st Floor, Ste B
| Size |
| 2,303 SF |
| Term |
| Negotiable |
| Rental Rate |
| $14.00 /SF/YR $1.17 /SF/MO $32,242 /YR $2,687 /MO |
| Space Use |
| Office/Retail |
| Build-Out |
| Full Build-Out |
| Available |
| Now |
1st Floor, Ste C
| Size |
| 1,452 SF |
| Term |
| Negotiable |
| Rental Rate |
| $14.00 /SF/YR $1.17 /SF/MO $20,328 /YR $1,694 /MO |
| Space Use |
| Office/Medical |
| Build-Out |
| Full Build-Out |
| Available |
| Now |
1st Floor, Ste B
| Size | 2,303 SF |
| Term | Negotiable |
| Rental Rate | $14.00 /SF/YR |
| Space Use | Office/Retail |
| Build-Out | Full Build-Out |
| Available | Now |
2,303± SF mixed-use space for lease at Edgewood Place. Layout includes large open area with tray ceiling, spacious office, restroom, storage room, mechanical room with washer hook-up and utility room/potential second restroom. Floor plan & 3D tour available. Excellent signage & visibility with 14,000 average daily traffic (PennDOT 2024 count year). Abundant parking. Zoned MU-2, Corridor Mixed Use, in Millcreek Township offering many potential uses: retail, office & more. Offered at $14.00/SF/YR + CAM + utilities. CAM estimated at $4.03/SF/YR based on 2025. Tenant pays approximately $3,460/month (base rent & CAM) plus utilities. Up to 3,755± SF available. Join Pearson Professional Center & Trilogy Wellness at Edgewood Place!
- Lease rate does not include utilities, property expenses or building services
- Fully Built-Out as Standard Retail Space
- Mostly Open Floor Plan Layout
- 1 Private Office
- Space is in Excellent Condition
- Can be combined with additional space(s) for up to 3,755 SF of adjacent space
- 2,303± SF Mixed-Use Space For Lease
- Mostly Open Floor Plan With Large Private Office
- 1 - 2 Restrooms & Storage Rooms
- Floor Plan & 3D Tour Available
- Excellent Signage & Visibility
- Abundance Parking Lot
1st Floor, Ste C
| Size | 1,452 SF |
| Term | Negotiable |
| Rental Rate | $14.00 /SF/YR |
| Space Use | Office/Medical |
| Build-Out | Full Build-Out |
| Available | Now |
1,452± SF office suite for lease at Edgewood Place. Move-in ready! Completely renovated with new synthetic flooring & neutral paint throughout. Layout includes waiting area, reception with window to waiting area, 4 private offices including one private office with an en-suite restroom, ADA restroom & storage closet. Floor plan & 3D tour available. Excellent signage & visibility with 14,000 average daily traffic (PennDOT 2024 count year). Abundant parking. Zoned MU-2, Corridor Mixed Use, in Millcreek Township offering many potential uses: retail, office & more. Offered at $14.00/SF/YR + CAM + utilities. CAM estimated at $4.03/SF/YR based on 2025. Tenant pays approximately $2,182/month (base rent & CAM) plus utilities. Join Pearson Professional Center, Trilogy Wellness & more at Edgewood Place!
- Lease rate does not include utilities, property expenses or building services
- Fully Built-Out as Standard Office
- 4 Private Offices
- Space is in Excellent Condition
- Can be combined with additional space(s) for up to 3,755 SF of adjacent space
- 1,452± SF Office Suite For Lease - Move-In Ready
- New Synthetic Flooring & Neutral Paint Throughout
- Waiting Area & Reception With Windows
- 4 Private Offices - One With En-Suite ADA Restroom
- Additional ADA Restroom & Storage Closet
- 3D Tour & Floor Plan Available
Property Overview
Now leasing at Edgewood Place. 1,452± SF to 3,755± SF office / mixed-use space available. Floor plans & 3D tours available. Excellent signage & visibility with 14,000 average daily traffic (PennDOT 2024 count year). Abundant parking. Zoned MU-2, Corridor Mixed Use, in Millcreek Township offering many potential uses: retail, office, animal daycare, restaurants & more. Offered at $14.00/SF/YR + CAM + utilities. CAM estimated at $4.03/SF/YR based on 2025. Join Pearson Professional Center, Trilogy Wellness & more at Edgewood Place! Contact broker to learn more or schedule a tour.
- Bus Line
- Signage
Property Facts
Select Tenants
- Tenant Name
- Industry
- Pearson Professional Centers
- Educational Services
- Trilogy Wellness
- Health Care and Social Assistance
Presented by
Edgewood Place | 3123 W 12th St
Hmm, there seems to have been an error sending your message. Please try again.
Thanks! Your message was sent.







