Your email has been sent.
Highlights
- High Traffic Location
- Great Visibility on Redwood Road
Display Rental Rate as
- Space
- Size
- Term
- Rental Rate
- Rent Type
| Space | Size | Term | Rental Rate | Rent Type | ||
| 2nd Floor | 1,663-3,215 SF | 1-5 Years | $30.00 /SF/YR $2.50 /SF/MO $96,450 /YR $8,038 /MO | Triple Net (NNN) |
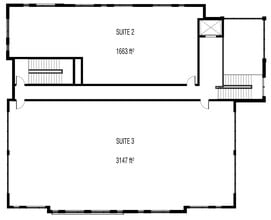
2nd Floor
The second floor provides flexible configurations with up to three available suites, customizable to suit varying space requirements.
- Lease rate does not include utilities, property expenses or building services
- Office intensive layout
- Fits 5 - 26 People
- Space
- Size
- Term
- Rental Rate
- Rent Type
| Space | Size | Term | Rental Rate | Rent Type | ||
| 1st Floor | 1,573-3,215 SF | 1-5 Years | $35.00 /SF/YR $2.92 /SF/MO $112,525 /YR $9,377 /MO | Triple Net (NNN) | ||
| 2nd Floor | 1,663-3,215 SF | 1-5 Years | $30.00 /SF/YR $2.50 /SF/MO $96,450 /YR $8,038 /MO | Triple Net (NNN) |
1st Floor
Designed with versatility in mind, the first floor features one available suite, ready to accommodate your business with ample space and modern amenities.
- Lease rate does not include utilities, property expenses or building services
2nd Floor
The second floor provides flexible configurations with up to three available suites, customizable to suit varying space requirements.
- Lease rate does not include utilities, property expenses or building services
- Office intensive layout
- Fits 5 - 26 People
Rent Types
The rent amount and type that the tenant (lessee) will be responsible to pay to the landlord (lessor) throughout the lease term is negotiated prior to both parties signing a lease agreement. The rent type will vary depending upon the services provided. For example, triple net rents are typically lower than full service rents due to additional expenses the tenant is required to pay in addition to the base rent. Contact the listing broker for a full understanding of any associated costs or additional expenses for each rent type.
1. Full Service: A rental rate that includes normal building standard services as provided by the landlord within a base year rental.
2. Double Net (NN): Tenant pays for only two of the building expenses; the landlord and tenant determine the specific expenses prior to signing the lease agreement.
3. Triple Net (NNN): A lease in which the tenant is responsible for all expenses associated with their proportional share of occupancy of the building.
4. Modified Gross: Modified Gross is a general type of lease rate where typically the tenant will be responsible for their proportional share of one or more of the expenses. The landlord will pay the remaining expenses. See the below list of common Modified Gross rental rate structures: 4. Plus All Utilities: A type of Modified Gross Lease where the tenant is responsible for their proportional share of utilities in addition to the rent. 4. Plus Cleaning: A type of Modified Gross Lease where the tenant is responsible for their proportional share of cleaning in addition to the rent. 4. Plus Electric: A type of Modified Gross Lease where the tenant is responsible for their proportional share of the electrical cost in addition to the rent. 4. Plus Electric & Cleaning: A type of Modified Gross Lease where the tenant is responsible for their proportional share of the electrical and cleaning cost in addition to the rent. 4. Plus Utilities and Char: A type of Modified Gross Lease where the tenant is responsible for their proportional share of the utilities and cleaning cost in addition to the rent. 4. Industrial Gross: A type of Modified Gross lease where the tenant pays one or more of the expenses in addition to the rent. The landlord and tenant determine these prior to signing the lease agreement.
5. Tenant Electric: The landlord pays for all services and the tenant is responsible for their usage of lights and electrical outlets in the space they occupy.
6. Negotiable or Upon Request: Used when the leasing contact does not provide the rent or service type.
7. TBD: To be determined; used for buildings for which no rent or service type is known, commonly utilized when the buildings are not yet built.
Property Facts
| Total Space Available | 6,430 SF | Gross Leasable Area | 6,439 SF |
| Min. Divisible | 1,573 SF | Year Built | 2026 |
| Property Type | Retail | Construction Status | Proposed |
| Property Subtype | Storefront Retail/Office |
| Total Space Available | 6,430 SF |
| Min. Divisible | 1,573 SF |
| Property Type | Retail |
| Property Subtype | Storefront Retail/Office |
| Gross Leasable Area | 6,439 SF |
| Year Built | 2026 |
| Construction Status | Proposed |
About the Property
We're pleased to present this 6,430 SF commercial building located in Saratoga Springs. Designed with versatility in mind, the first floor features one available suite, ready to accommodate your business with ample space and modern amenities. The second floor provides flexible configurations with up to three available suites, customizable to suit varying space requirements. With a pharmacy conveniently located on the first floor, this building is perfectly suited for medical offices or healthcare providers seeking complementary retail synergy. This prime high-traffic location offers unmatched visibility and accessibility, perfect for businesses seeking maximum exposure. Don't miss your chance to establish your business in this vibrant and rapidly growing community. See offering memorandum for more details.
- Signage
Nearby Major Retailers
Presented by
3154 S Redwood Rd
Hmm, there seems to have been an error sending your message. Please try again.
Thanks! Your message was sent.










