Your email has been sent.
Highlights
- Premier Retail Spaces Available
- High-End Design & Finishes
- Built-In Foot Traffic - Part of The Rune’s 4-story mixed-use development with 72 luxury apartments above, driving daily walk-ins and visibility.
- Unbeatable Location on Broadway Street
- Customizable Layouts - Spaces can be configured to meet your unique business needs—including expansion opportunities.
- Surrounded by Local Hotspots
All Available Spaces(3)
Display Rental Rate as
- Space
- Size
- Term
- Rental Rate
- Space Use
- Build-Out
- Available
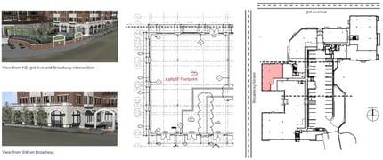
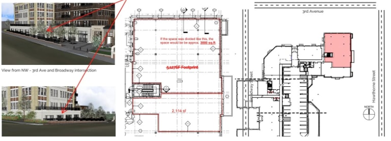
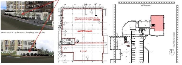
Retail space is available for lease within this multi-use property, offering flexible size options to accommodate a variety of users. The building includes a 3,376-square-foot space, with additional Space B comprising approximately 3,000 square feet and Space C offering 2,114 square feet. Spaces B and C can be combined to create a larger contiguous area totaling approximately 5,114 square feet, providing versatility for tenants seeking either a smaller footprint or an expanded retail presence.
- Fully Built-Out as Standard Retail Space
- Premier Retail Spaces Available
- Surrounded by Local Hotspots
- High ceilings, expansive storefront windows
- Highly Desirable End Cap Space
- Customizable Layouts
- Built-In Foot Traffic
- Average daily traffic count of 18,200 vehicles
Space B: 3,000 sq ft Space C: 2,114 sq ft Combined Option: Spaces B & C can be merged for a total of 5,114 sq ft
- Fully Built-Out as Standard Retail Space
- Average daily traffic count of 18,200 vehicles
- Built-In Foot Traffic
- Customizable Layouts
- Highly Desirable End Cap Space
- Premier Retail Spaces Available
- Surrounded by Local Hotspots
- Boasts high ceilings, expansive storefront windows
Space B: 3,000 sq ft Space C: 2,114 sq ft Combined Option: Spaces B & C can be merged for a total of 5,114 sq ft?
- Fully Built-Out as Standard Retail Space
- Boasts high ceilings, expansive storefront windows
- Customizable Layouts
- Built-In Foot Traffic
- Highly Desirable End Cap Space
- Average daily traffic count of 18,200 vehicles
- Surrounded by Local Hotspots
- Premier Retail Spaces Available
| Space | Size | Term | Rental Rate | Space Use | Build-Out | Available |
| 1st Floor, Ste A | 2,565 SF | Negotiable | $28.00 /SF/YR $2.33 /SF/MO $71,820 /YR $5,985 /MO | Retail | Full Build-Out | August 01, 2026 |
| 1st Floor, Ste B | 3,000 SF | Negotiable | $28.00 /SF/YR $2.33 /SF/MO $84,000 /YR $7,000 /MO | Retail | Full Build-Out | August 01, 2026 |
| 1st Floor, Ste C | 2,114 SF | Negotiable | $28.00 /SF/YR $2.33 /SF/MO $59,192 /YR $4,933 /MO | Retail | Full Build-Out | August 01, 2026 |
1st Floor, Ste A
| Size |
| 2,565 SF |
| Term |
| Negotiable |
| Rental Rate |
| $28.00 /SF/YR $2.33 /SF/MO $71,820 /YR $5,985 /MO |
| Space Use |
| Retail |
| Build-Out |
| Full Build-Out |
| Available |
| August 01, 2026 |
1st Floor, Ste B
| Size |
| 3,000 SF |
| Term |
| Negotiable |
| Rental Rate |
| $28.00 /SF/YR $2.33 /SF/MO $84,000 /YR $7,000 /MO |
| Space Use |
| Retail |
| Build-Out |
| Full Build-Out |
| Available |
| August 01, 2026 |
1st Floor, Ste C
| Size |
| 2,114 SF |
| Term |
| Negotiable |
| Rental Rate |
| $28.00 /SF/YR $2.33 /SF/MO $59,192 /YR $4,933 /MO |
| Space Use |
| Retail |
| Build-Out |
| Full Build-Out |
| Available |
| August 01, 2026 |
1st Floor, Ste A
| Size | 2,565 SF |
| Term | Negotiable |
| Rental Rate | $28.00 /SF/YR |
| Space Use | Retail |
| Build-Out | Full Build-Out |
| Available | August 01, 2026 |
Retail space is available for lease within this multi-use property, offering flexible size options to accommodate a variety of users. The building includes a 3,376-square-foot space, with additional Space B comprising approximately 3,000 square feet and Space C offering 2,114 square feet. Spaces B and C can be combined to create a larger contiguous area totaling approximately 5,114 square feet, providing versatility for tenants seeking either a smaller footprint or an expanded retail presence.
- Fully Built-Out as Standard Retail Space
- Highly Desirable End Cap Space
- Premier Retail Spaces Available
- Customizable Layouts
- Surrounded by Local Hotspots
- Built-In Foot Traffic
- High ceilings, expansive storefront windows
- Average daily traffic count of 18,200 vehicles
1st Floor, Ste B
| Size | 3,000 SF |
| Term | Negotiable |
| Rental Rate | $28.00 /SF/YR |
| Space Use | Retail |
| Build-Out | Full Build-Out |
| Available | August 01, 2026 |
Space B: 3,000 sq ft Space C: 2,114 sq ft Combined Option: Spaces B & C can be merged for a total of 5,114 sq ft
- Fully Built-Out as Standard Retail Space
- Highly Desirable End Cap Space
- Average daily traffic count of 18,200 vehicles
- Premier Retail Spaces Available
- Built-In Foot Traffic
- Surrounded by Local Hotspots
- Customizable Layouts
- Boasts high ceilings, expansive storefront windows
1st Floor, Ste C
| Size | 2,114 SF |
| Term | Negotiable |
| Rental Rate | $28.00 /SF/YR |
| Space Use | Retail |
| Build-Out | Full Build-Out |
| Available | August 01, 2026 |
Space B: 3,000 sq ft Space C: 2,114 sq ft Combined Option: Spaces B & C can be merged for a total of 5,114 sq ft?
- Fully Built-Out as Standard Retail Space
- Highly Desirable End Cap Space
- Boasts high ceilings, expansive storefront windows
- Average daily traffic count of 18,200 vehicles
- Customizable Layouts
- Surrounded by Local Hotspots
- Built-In Foot Traffic
- Premier Retail Spaces Available
Property Facts
| Total Space Available | 7,679 SF | Apartment Style | Mid-Rise |
| No. Units | 72 | Building Size | 214,185 SF |
| Property Type | Multifamily | Year Built | 2026 |
| Property Subtype | Apartment | Construction Status | Under Construction |
| Total Space Available | 7,679 SF |
| No. Units | 72 |
| Property Type | Multifamily |
| Property Subtype | Apartment |
| Apartment Style | Mid-Rise |
| Building Size | 214,185 SF |
| Year Built | 2026 |
| Construction Status | Under Construction |
About the Property
*Premier Retail Spaces Available* Welcome to The Rune, Alexandria’s most anticipated mixed-use development, strategically located at 317 Broadway Street in the heart of downtown. This four-story, Class A property offers a dynamic blend of upscale residential living and premium commercial spaces, designed to elevate both lifestyle and business in one of Minnesota’s most vibrant small cities. Each space boasts high ceilings, expansive storefront windows, and customizable layouts to suit a variety of retail or professional needs.? Prime Downtown Location Positioned on vibrant Broadway Street, The Rune delivers unmatched visibility, foot traffic, and access to Alexandria’s thriving downtown district. This location is part of a bustling commercial corridor, with an average daily traffic count of 18,200 vehicles, including 1,050 heavy commercial trucks, ensuring a steady flow of potential customers. ? The area is a hub for both locals and tourists, featuring attractions like the Central Lakes Trail, Lake Agnes, and a variety of dining and shopping options. Space A: 2,565 sq ft, with the potential to expand by an additional 811 sq ft, totaling 3,376 sq ft. Space B: 3,000 sq ft Space C: 2,114 sq ft Combined Option: Spaces B & C can be merged for a total of 5,114 sq ft
Nearby Major Retailers
Presented by
The Rune | 317 Broadway St
Hmm, there seems to have been an error sending your message. Please try again.
Thanks! Your message was sent.









