Your email has been sent.
Turnkey - 3-Month Free Rent 3195 Saint Rose Pky 4,889 SF of 4-Star Office Space Available in Henderson, NV 89052



SUBLEASE HIGHLIGHTS
- 3195 Saint Rose Parkway offers a sublease for Suite 131, a fully furnished space with controlled access and three dedicated covered parking spots.
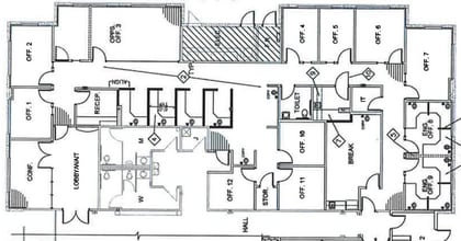
- Suite 131 features a lobby/reception area, two conference rooms, 12 private offices, four workstations, kitchen, breakroom, IT closet, and restroom.
- Client-based users can tap into the market’s top earners as 30,000 households contribute to $1B in annual spending within only a 2-mile radius.
- Exclusive opportunity with free rent for the first three months on a flexible lease with over two years available, the tenant only pays for utilities.
- Amenity-rich environment within 10 minutes of The District at Green Valley Ranch, Trader Joe’s, Target, over 100 restaurants, and much more.
ALL AVAILABLE SPACE(1)
Display Rental Rate as
- SPACE
- SIZE
- TERM
- RENTAL RATE
- SPACE USE
- CONDITION
- AVAILABLE
Enjoy the first 3 months rent-free in this executive office space, available for immediate occupancy. It is on a flexible sublease with 2+ years available on a plus-utilities lease structure. The space also includes a state-of-the-art Verkada security system for enhanced safety and secure access control. This office features a professional lobby and reception area, two spacious conference rooms, 12 private offices, four open cubicle workstations, a fully equipped kitchen and breakroom, a secure IT closet, and a private restroom.
- Sublease space available from current tenant
- Fully Built-Out as Standard Office
- 2 Conference Rooms
- Space is in Excellent Condition
- Reception Area
- Security System
- Natural Light
- 3 Dedicated Covered Parking Spots
- Listed rate may not include certain utilities, building services and property expenses
- 12 Private Offices
- 4 Workstations
- Central Air and Heating
- Private Restrooms
- Secure Storage
- Secure, Controlled Access
| Space | Size | Term | Rental Rate | Space Use | Condition | Available |
| 1st Floor, Ste 131 | 4,889 SF | May 2026 | $30.00 /SF/YR $2.50 /SF/MO $146,670 /YR $12,223 /MO | Office | Full Build-Out | Now |
1st Floor, Ste 131
| Size |
| 4,889 SF |
| Term |
| May 2026 |
| Rental Rate |
| $30.00 /SF/YR $2.50 /SF/MO $146,670 /YR $12,223 /MO |
| Space Use |
| Office |
| Condition |
| Full Build-Out |
| Available |
| Now |
1st Floor, Ste 131
| Size | 4,889 SF |
| Term | May 2026 |
| Rental Rate | $30.00 /SF/YR |
| Space Use | Office |
| Condition | Full Build-Out |
| Available | Now |
Enjoy the first 3 months rent-free in this executive office space, available for immediate occupancy. It is on a flexible sublease with 2+ years available on a plus-utilities lease structure. The space also includes a state-of-the-art Verkada security system for enhanced safety and secure access control. This office features a professional lobby and reception area, two spacious conference rooms, 12 private offices, four open cubicle workstations, a fully equipped kitchen and breakroom, a secure IT closet, and a private restroom.
- Sublease space available from current tenant
- Listed rate may not include certain utilities, building services and property expenses
- Fully Built-Out as Standard Office
- 12 Private Offices
- 2 Conference Rooms
- 4 Workstations
- Space is in Excellent Condition
- Central Air and Heating
- Reception Area
- Private Restrooms
- Security System
- Secure Storage
- Natural Light
- Secure, Controlled Access
- 3 Dedicated Covered Parking Spots
MATTERPORT 3D TOUR
PROPERTY OVERVIEW
3195 Saint Rose Parkway is a modernized office in the prominent Seven Hills Business Plaza, now offering a move-in-ready sublease opportunity to establish a presence or expand in booming Henderson, Nevada. Suite 131 spans 4,889 square feet on the building’s first floor and features a highly efficient layout with contemporary features like glazed glass walls and A/V-enabled rooms. The layout includes a professional lobby and reception area, two spacious conference rooms, 12 private offices, four open cubicle workstations, a fully equipped kitchen and breakroom, a secure IT closet, and a private restroom. Tenants of this space also get three reserved covered parking spaces. Hyper Networks is subleasing the space. The IT firm offers solutions for cloud services, cybersecurity, network connectivity, and more. The company has left the space in turnkey condition, allowing new users to get to work right away in a high-quality environment. The lease is highly flexible, with over two years remaining. Tenants only pay for utilities, and the subletter is offering the first three months free. Henderson has shifted the center of gravity of the Las Vegas metro as unprecedented development and migration invigorate the area and its businesses. Due to this immense expansion, amenities galore significantly enhance tenants' convenience. Employees can fit in a workout at one of the nearby gyms, grab coffee in a jiffy, dine with clients at a beloved local restaurant, and knock out errands at a department or grocery store in minutes and without jumping on congested roadways. 3195 Saint Rose Parkway is also near some of the region’s most affluent communities, like MacDonald Ranch and Green Valley, ideal positioning for any consumer-reliant business. The site is also easily accessible from anywhere, as the newly improved 215 Beltway is only 2 miles away.
- Property Manager on Site
- Signage
- Air Conditioning
PROPERTY FACTS
SELECT TENANTS
- Ear Nose & Throat Consultants of Nevada
- Practice dedicated to the diagnosis and treatment of diseases of the head and neck.
- Hyper Networks
- Data processing company providing simplified approach to business telecom services.
- Mann Mortgage
- National family-owned residential mortgage company.
- Optic Gallery
- Network of locally owned optometry offices serving the Las Vegas metro.
- Silver State Sports Medicine
- Board-certified family and sports medicine physician.
- Titanium Building Group
- General contracting and construction company serving the Las Vegas area.
NEARBY AMENITIES
HOSPITALS |
|||
|---|---|---|---|
| Harmon Hospital | Acute Care | 13 min drive | 8.2 mi |
| Desert Springs Hospital | Acute Care | 15 min drive | 9 mi |
| Saint Rose Dominican Hospitals - Rose De Lima | Acute Care | 13 min drive | 9.3 mi |
| Spring Valley Hospital Medical Center | Acute Care | 17 min drive | 12.6 mi |
| Saint Rose Dominican Hospitals - San Martin Campus | Acute Care | 18 min drive | 13.5 mi |
RESTAURANTS |
|||
|---|---|---|---|
| Angelina's Pizzerias & Italian Kitchens | Pizza | $$ | 4 min walk |
| Dairy Queen | - | - | 5 min walk |
| Subway | - | - | 5 min walk |
| Del Taco | - | - | 5 min walk |
| Chicken Shack | Chicken | $ | 6 min walk |
| Fireside Restaurant & Tavern | Pub Food | $$$ | 7 min walk |
| Starbucks | Cafe | $ | 7 min walk |
| Big B's BBQ | Barbecue | $$ | 14 min walk |
RETAIL |
||
|---|---|---|
| Anytime Fitness | Fitness | 4 min walk |
| 7-Eleven | Convenience Market | 4 min walk |
| CrossFit | Fitness | 5 min walk |
| United States Postal Service | Business/Copy/Postal Services | 8 min walk |
HOTELS |
|
|---|---|
| My Place |
94 rooms
2 min drive
|
| Hampton by Hilton |
133 rooms
2 min drive
|
| Residence Inn |
115 rooms
3 min drive
|
| aloft Hotel |
136 rooms
4 min drive
|
| Hilton Grand Vacations |
440 rooms
11 min drive
|
| Courtyard |
155 rooms
13 min drive
|
ABOUT SOUTH LAS VEGAS
South Las Vegas is the largest office area in the Las Vegas region, with close to 20% of the market’s total office inventory. Two of the major freeways in Las Vegas, Interstates15 and 215, provide access to the airport and abundance of office space from all over the region. McCarran International Airport, which sees more than 45 million passengers annually, is also located here.
The area is home to numerous shopping and dining options, including the Las Vegas South Premium Outlets. Casino and resort operators like Caesars Entertainment, MGM Resorts International, and Wynn Design and Development have sizable back-office operations in South Las Vegas. There are also a number of medical office tenants located in the area surrounding the Dignity Health – St. Rose Dominican hospital. Insurance, real estate, financial companies, and law firms also make up a sizable portion of the tenant mix.
New construction has been steady but moderate this cycle, which has helped vacancies compress below the historical average for the area to be in line with the market average. More than half the office space in South Las Vegas is Class B, and average rent levels in the area fall in the mid-range for the area.
ABOUT THE ARCHITECT
OTHER PROPERTIES IN THE MICHAEL BAKER INTERNATIONAL PORTFOLIO
Presented by
Turnkey - 3-Month Free Rent | 3195 Saint Rose Pky
Hmm, there seems to have been an error sending your message. Please try again.
Thanks! Your message was sent.



