Your email has been sent.
EXECUTIVE SUMMARY
PROPERTY FACTS
SPACE AVAILABILITY
- SPACE
- SIZE
- SPACE USE
- CONDITION
- AVAILABLE
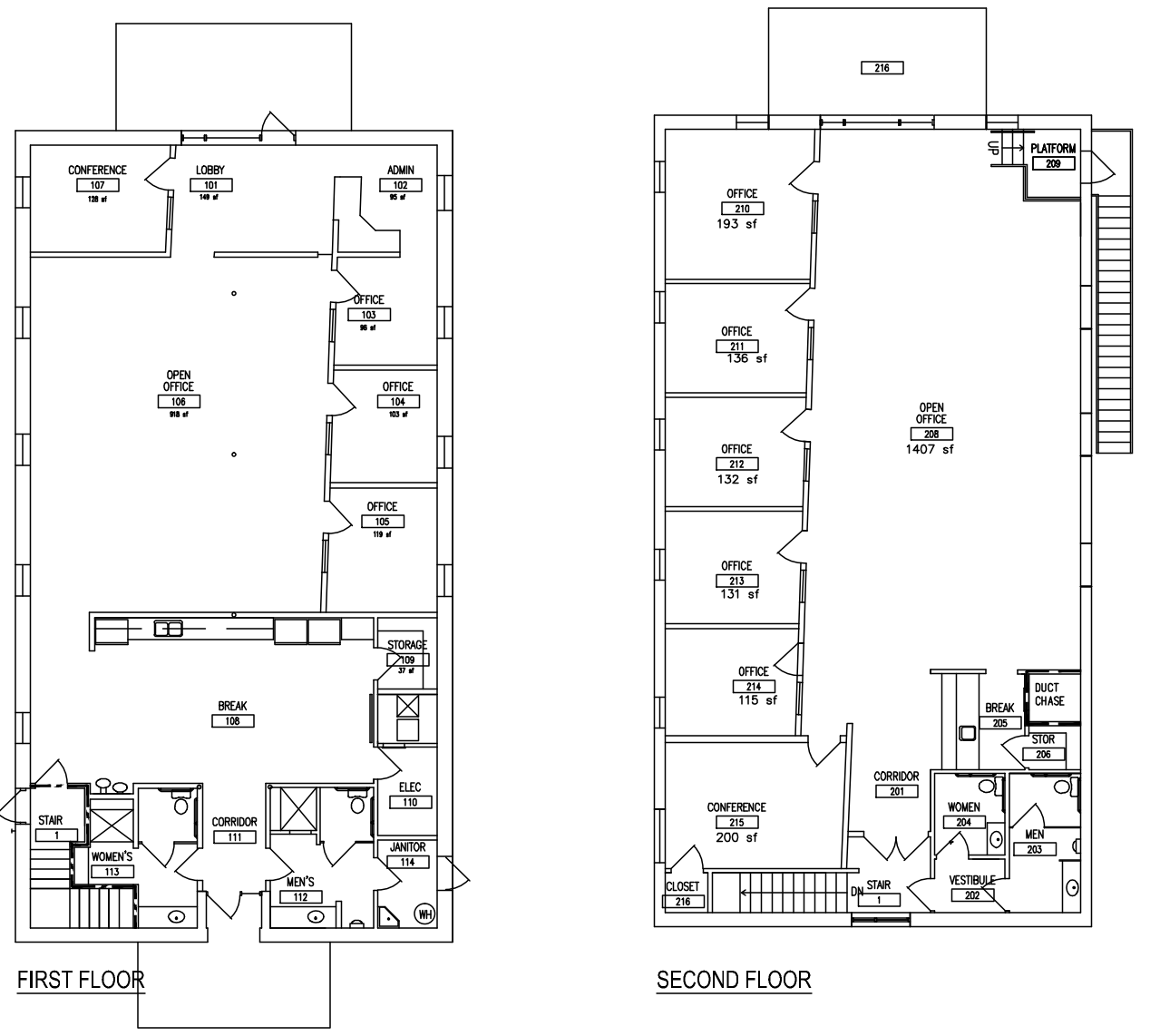
Freestanding two story building in an easy-to-find location off of Spruill Avenue located just minutes from the thriving Park Circle district. Complete interior renovation. The first floor includes a reception area, conference room, three private offices, an open work area, large kitchen that seats up to 20 people with pull down power and a projector. The bathrooms include a full shower in both men's & women's. The second floor includes five private offices, a conference room, open work area, kitchen and bathrooms. The property has an abundance of parking with over 5/1,000. Well landscaped parking is secured by gate entry system.
| Space | Size | Space Use | Condition | Available |
| 1st Floor | 5,562 SF | Office | Full Build-Out | Now |
1st Floor
| Size |
| 5,562 SF |
| Space Use |
| Office |
| Condition |
| Full Build-Out |
| Available |
| Now |
1st Floor
| Size | 5,562 SF |
| Space Use | Office |
| Condition | Full Build-Out |
| Available | Now |
Freestanding two story building in an easy-to-find location off of Spruill Avenue located just minutes from the thriving Park Circle district. Complete interior renovation. The first floor includes a reception area, conference room, three private offices, an open work area, large kitchen that seats up to 20 people with pull down power and a projector. The bathrooms include a full shower in both men's & women's. The second floor includes five private offices, a conference room, open work area, kitchen and bathrooms. The property has an abundance of parking with over 5/1,000. Well landscaped parking is secured by gate entry system.
PROPERTY TAXES
| Parcel Number | 469-12-00-271 | Improvements Assessment | $0 |
| Land Assessment | $0 | Total Assessment | $36,920 |
PROPERTY TAXES
Presented by
3200 N Carolina Ave
Hmm, there seems to have been an error sending your message. Please try again.
Thanks! Your message was sent.





