Log In/Sign Up
Your email has been sent.
33 W Jackson Blvd 1,100 SF Office Condo Unit Offered at $245,000 in Chicago, IL 60604



Investment Highlights
- Prime Chicago Loop location surrounded by major financial, legal, and corporate institutions.
Executive Summary
Office property with multiple office condos throughout. Spaces are fully built out and offer tons of natural lighting and convenient access to downtown Chicago.
Property Facts
| Total Building Size | 17,250 SF | Floors | 5 |
| Property Type | Office (Condo) | Typical Floor Size | 3,450 SF |
| Property Subtype | Loft/Creative Space | Year Built | 1910 |
| Building Class | C | Lot Size | 0.09 AC |
| Zoning | RBPD, Chicago - DC16 | ||
| Total Building Size | 17,250 SF |
| Property Type | Office (Condo) |
| Property Subtype | Loft/Creative Space |
| Building Class | C |
| Floors | 5 |
| Typical Floor Size | 3,450 SF |
| Year Built | 1910 |
| Lot Size | 0.09 AC |
| Zoning | RBPD, Chicago - DC16 |
Amenities
- Bus Line
- Commuter Rail
- Food Service
- Signage
1 Unit Available
Unit 200
| Unit Size | 1,100 SF | Condo Use | Office |
| Price | $245,000 | Sale Type | Owner User |
| Price Per SF | $222.73 | APN/Parcel ID | 17-16-234-007-1008 |
| Unit Size | 1,100 SF |
| Price | $245,000 |
| Price Per SF | $222.73 |
| Condo Use | Office |
| Sale Type | Owner User |
| APN/Parcel ID | 17-16-234-007-1008 |
Description
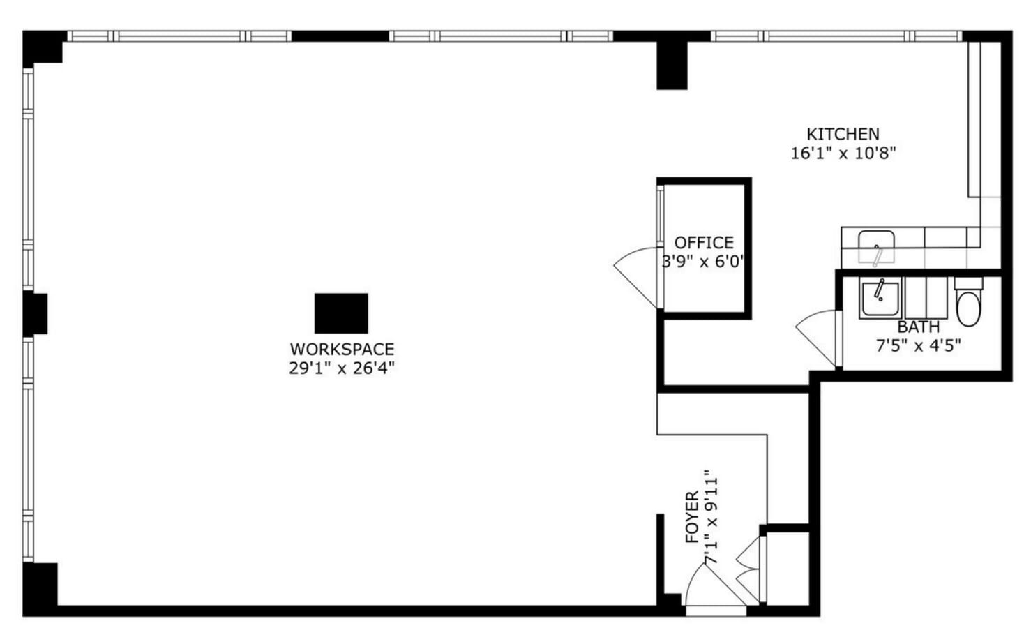
Condo sits above first floor with tons of natural lighting and a downtown Chicago location! Workspace makes of a majority of this suite; however, there is one private office, kitchen, and foyer.
Sale Notes
Office condo for sale ideal for legal, consulting, financial, or administrative uses.
Floor Plan
Interior
Interior
Interior
1 of 4
Videos
Matterport 3D Exterior
Matterport 3D Tour
Photos
Street View
Street
Map
1 1
Walk Score®
Walker's Paradise (100)
Transit Score®
Rider's Paradise (100)
Bike Score®
Very Bikeable (79)
1 of 6
Videos
Matterport 3D Exterior
Matterport 3D Tour
Photos
Street View
Street
Map
1 of 1
Presented by
33 W Jackson Blvd
Already a member? Log In
Hmm, there seems to have been an error sending your message. Please try again.
Thanks! Your message was sent.
Your message has been sent!
Activate your LoopNet account now to track properties, get real-time alerts, save time on future inquiries, and more.

