Log In/Sign Up
Your email has been sent.
INVESTMENT HIGHLIGHTS
- Prime Location & Accessibility
- High-Functionality Warehouse
- Class A Office/Warehouse Design
EXECUTIVE SUMMARY
±9,400 SF Office Warehouse Building
Two-Story Industrial Building located in South Stuart
Located just one block from US-1 and only 10 minutes from I-95, offering excellent connectivity in Stuart's thriving business corridor.
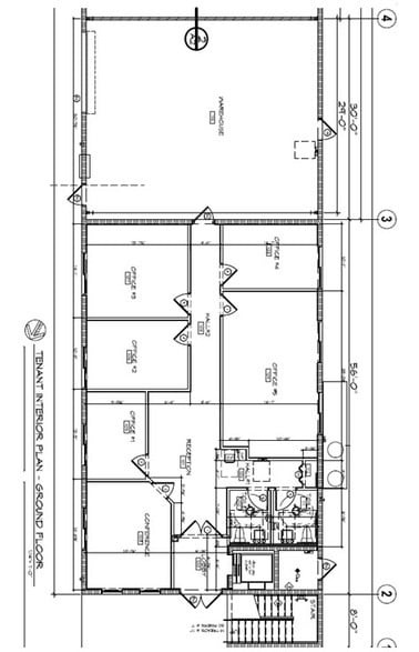
Class A Office/Warehouse Modern two-story office space with reception areas, multiple private offices, conference rooms, kitchens, and elevator access on both floors.
Includes five 12x16 overhead doors, 18' clear height, reinforced concrete construction - ideal for commercial operations.
Situated on a 0.63-acre lot with ±9,400 square feet of space, zoned for light industrial use.
3322-3324 SE Gran Park Way
Stuart, FL 34997
Two-Story Industrial Building located in South Stuart
Located just one block from US-1 and only 10 minutes from I-95, offering excellent connectivity in Stuart's thriving business corridor.
Class A Office/Warehouse Modern two-story office space with reception areas, multiple private offices, conference rooms, kitchens, and elevator access on both floors.
Includes five 12x16 overhead doors, 18' clear height, reinforced concrete construction - ideal for commercial operations.
Situated on a 0.63-acre lot with ±9,400 square feet of space, zoned for light industrial use.
3322-3324 SE Gran Park Way
Stuart, FL 34997
PROPERTY FACTS
| Price | $3,150,000 | Rentable Building Area | 9,395 SF |
| Price Per SF | $335.28 | No. Stories | 1 |
| Sale Type | Investment or Owner User | Year Built | 2009 |
| Property Type | Industrial | Parking Ratio | 2.45/1,000 SF |
| Property Subtype | Warehouse | Clear Ceiling Height | 18’ |
| Building Class | A | No. Drive In / Grade-Level Doors | 5 |
| Lot Size | 0.63 AC | ||
| Zoning | Light Industrial - Light Industrial | ||
| Price | $3,150,000 |
| Price Per SF | $335.28 |
| Sale Type | Investment or Owner User |
| Property Type | Industrial |
| Property Subtype | Warehouse |
| Building Class | A |
| Lot Size | 0.63 AC |
| Rentable Building Area | 9,395 SF |
| No. Stories | 1 |
| Year Built | 2009 |
| Parking Ratio | 2.45/1,000 SF |
| Clear Ceiling Height | 18’ |
| No. Drive In / Grade-Level Doors | 5 |
| Zoning | Light Industrial - Light Industrial |
1 1
PROPERTY TAXES
| Parcel Number | 52-38-41-400-006-00070-3 | Improvements Assessment | $840,340 |
| Land Assessment | $434,310 | Total Assessment | $1,274,650 |
PROPERTY TAXES
Parcel Number
52-38-41-400-006-00070-3
Land Assessment
$434,310
Improvements Assessment
$840,340
Total Assessment
$1,274,650
1 of 18
VIDEOS
MATTERPORT 3D EXTERIOR
MATTERPORT 3D TOUR
PHOTOS
STREET VIEW
STREET
MAP
1 of 1
Presented by
3322 SE Gran Park Way
Already a member? Log In
Hmm, there seems to have been an error sending your message. Please try again.
Thanks! Your message was sent.



