Your email has been sent.
Bay Adelaide West 333 Bay St 3,445 - 80,912 SF of 5-Star Office Space Available in Toronto, ON M5H 2R2



HIGHLIGHTS
- Premier office space located in downtown Toronto near City Hall.
- 24 hour state-of-the-art parking facilities for all tenant needs, morning and night.
- Prime Access to the PATH system.
ALL AVAILABLE SPACES(11)
Display Rental Rate as
- SPACE
- SIZE
- TERM
- RENTAL RATE
- SPACE USE
- CONDITION
- AVAILABLE
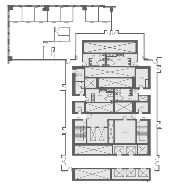
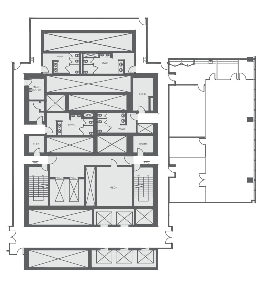
The 6th floor of the Bay Adelaide Centre - West Tower, located at 333 Bay Street, Toronto, Ontario, offers a 3,960 sq. ft. built-out space available from March 1, 2025. This efficiently designed office space includes mechanical and electrical rooms, as well as washroom facilities for both men and women, ensuring convenience for tenants. The layout provides flexible use, ideal for companies seeking modern and well-equipped office space in a prestigious downtown location. The floor features multiple fire hose cabinets (FHC) and clear entry and exit points, prioritizing both safety and accessibility.
- Lease rate does not include utilities, property expenses or building services
- Mostly Open Floor Plan Layout
- 3,960 sq. ft. built-out space
- Prime Bay Street location
- Partially Built-Out as Professional Services Office
- Central Air and Heating
- Available March 1, 2025
The 7th floor of the Bay Adelaide Centre - West Tower, located at 333 Bay Street, Toronto, Ontario, offers a 3,669 sq. ft. built-out office space. This compact yet highly functional office features essential infrastructure, including mechanical and electrical rooms, along with washroom facilities for both men and women. The layout is designed for optimal use, with fire hose cabinets and stairways enhancing safety. This built-out space is well-suited for businesses looking for a smaller, ready-to-move-in office environment in a prime downtown Toronto location.
- Lease rate does not include utilities, property expenses or building services
- Mostly Open Floor Plan Layout
- 3,669 sq. ft. built-out office
- Located in Bay Street's financial hub
- Fully Built-Out as Standard Office
- Central Air and Heating
- Ready-to-use functional space
Office space available for lease on the 7th floor
- Lease rate does not include utilities, property expenses or building services
- Central Air and Heating
- Partially Built-Out as Standard Office
The 11th floor of the Bay Adelaide Centre - West Tower, located at 333 Bay Street, Toronto, Ontario, offers a 5,183 sq. ft. built-out office space. This well-designed space includes multiple elevators and freight elevators for convenient vertical transportation, alongside strategically placed fire hose cabinets (FHC) for safety compliance. The layout is optimized for a variety of business needs, offering an ideal workspace in a prominent downtown Toronto address. This built-out space is perfect for companies seeking a move-in-ready environment in the heart of the financial district.
- Lease rate does not include utilities, property expenses or building services
- Mostly Open Floor Plan Layout
- 5,183 sq. ft. built-out space
- Located in downtown Toronto
- Partially Built-Out as Standard Office
- Central Air and Heating
- Freight elevators for convenience
This well-designed space includes multiple elevators and freight elevators for convenient vertical transportation, alongside strategically placed fire hose cabinets (FHC) for safety compliance. The layout is optimized for a variety of business needs, offering an ideal workspace in a prominent downtown Toronto address. This built-out space is perfect for companies seeking a move-in-ready environment in the heart of the financial district.
- Lease rate does not include utilities, property expenses or building services
- Mostly Open Floor Plan Layout
- Fully Built-Out as Standard Office
- Central Air and Heating
- Lease rate does not include utilities, property expenses or building services
- 6 Private Offices
- Fully Built-Out as Standard Office
- 1 Conference Room
- Fully Built-Out as Standard Office
- Mostly Open Floor Plan Layout
This well-designed space includes multiple elevators and freight elevators for convenient vertical transportation, alongside strategically placed fire hose cabinets (FHC) for safety compliance. The layout is optimized for a variety of business needs, offering an ideal workspace in a prominent downtown Toronto address. This built-out space is perfect for companies seeking a move-in-ready environment in the heart of the financial district.
- Lease rate does not include utilities, property expenses or building services
- Space is in Excellent Condition
- Fully Built-Out as Standard Office
- Central Air and Heating
- Lease rate does not include utilities, property expenses or building services
- 12 Private Offices
- 6 Workstations
- Fully Built-Out as Standard Office
- 4 Conference Rooms
- Reception Area
- Lease rate does not include utilities, property expenses or building services
- Mostly Open Floor Plan Layout
- Fully Built-Out as Standard Office
- 3 Private Offices
This well-designed space includes multiple elevators and freight elevators for convenient vertical transportation, alongside strategically placed fire hose cabinets (FHC) for safety compliance. The layout is optimized for a variety of business needs, offering an ideal workspace in a prominent downtown Toronto address. This built-out space is perfect for companies seeking a move-in-ready environment in the heart of the financial district.
- Lease rate does not include utilities, property expenses or building services
- Central Air and Heating
- Fully Built-Out as Standard Office
| Space | Size | Term | Rental Rate | Space Use | Condition | Available |
| 6th Floor | 3,960 SF | 1-10 Years | Upon Request Upon Request Upon Request Upon Request | Office | Partial Build-Out | Now |
| 7th Floor | 3,669 SF | 1-10 Years | Upon Request Upon Request Upon Request Upon Request | Office | Full Build-Out | Pending |
| 7th Floor, Ste 730 | 7,647 SF | 1-10 Years | Upon Request Upon Request Upon Request Upon Request | Office | Partial Build-Out | Now |
| 11th Floor | 5,183 SF | 1-10 Years | Upon Request Upon Request Upon Request Upon Request | Office | Partial Build-Out | Pending |
| 12th Floor | 5,044 SF | 1-10 Years | Upon Request Upon Request Upon Request Upon Request | Office | Full Build-Out | Now |
| 12th Floor | 5,007 SF | Negotiable | Upon Request Upon Request Upon Request Upon Request | Office | Full Build-Out | Now |
| 16th Floor | 22,760 SF | Negotiable | Upon Request Upon Request Upon Request Upon Request | Office | Full Build-Out | April 01, 2027 |
| 18th Floor | 8,010 SF | 1-10 Years | Upon Request Upon Request Upon Request Upon Request | Office | Full Build-Out | Now |
| 27th Floor | 7,092 SF | Negotiable | Upon Request Upon Request Upon Request Upon Request | Office | Full Build-Out | Now |
| 27th Floor | 3,445 SF | Negotiable | Upon Request Upon Request Upon Request Upon Request | Office | Full Build-Out | Now |
| 37th Floor | 9,095 SF | 1-10 Years | Upon Request Upon Request Upon Request Upon Request | Office | Full Build-Out | Now |
6th Floor
| Size |
| 3,960 SF |
| Term |
| 1-10 Years |
| Rental Rate |
| Upon Request Upon Request Upon Request Upon Request |
| Space Use |
| Office |
| Condition |
| Partial Build-Out |
| Available |
| Now |
7th Floor
| Size |
| 3,669 SF |
| Term |
| 1-10 Years |
| Rental Rate |
| Upon Request Upon Request Upon Request Upon Request |
| Space Use |
| Office |
| Condition |
| Full Build-Out |
| Available |
| Pending |
7th Floor, Ste 730
| Size |
| 7,647 SF |
| Term |
| 1-10 Years |
| Rental Rate |
| Upon Request Upon Request Upon Request Upon Request |
| Space Use |
| Office |
| Condition |
| Partial Build-Out |
| Available |
| Now |
11th Floor
| Size |
| 5,183 SF |
| Term |
| 1-10 Years |
| Rental Rate |
| Upon Request Upon Request Upon Request Upon Request |
| Space Use |
| Office |
| Condition |
| Partial Build-Out |
| Available |
| Pending |
12th Floor
| Size |
| 5,044 SF |
| Term |
| 1-10 Years |
| Rental Rate |
| Upon Request Upon Request Upon Request Upon Request |
| Space Use |
| Office |
| Condition |
| Full Build-Out |
| Available |
| Now |
12th Floor
| Size |
| 5,007 SF |
| Term |
| Negotiable |
| Rental Rate |
| Upon Request Upon Request Upon Request Upon Request |
| Space Use |
| Office |
| Condition |
| Full Build-Out |
| Available |
| Now |
16th Floor
| Size |
| 22,760 SF |
| Term |
| Negotiable |
| Rental Rate |
| Upon Request Upon Request Upon Request Upon Request |
| Space Use |
| Office |
| Condition |
| Full Build-Out |
| Available |
| April 01, 2027 |
18th Floor
| Size |
| 8,010 SF |
| Term |
| 1-10 Years |
| Rental Rate |
| Upon Request Upon Request Upon Request Upon Request |
| Space Use |
| Office |
| Condition |
| Full Build-Out |
| Available |
| Now |
27th Floor
| Size |
| 7,092 SF |
| Term |
| Negotiable |
| Rental Rate |
| Upon Request Upon Request Upon Request Upon Request |
| Space Use |
| Office |
| Condition |
| Full Build-Out |
| Available |
| Now |
27th Floor
| Size |
| 3,445 SF |
| Term |
| Negotiable |
| Rental Rate |
| Upon Request Upon Request Upon Request Upon Request |
| Space Use |
| Office |
| Condition |
| Full Build-Out |
| Available |
| Now |
37th Floor
| Size |
| 9,095 SF |
| Term |
| 1-10 Years |
| Rental Rate |
| Upon Request Upon Request Upon Request Upon Request |
| Space Use |
| Office |
| Condition |
| Full Build-Out |
| Available |
| Now |
6th Floor
| Size | 3,960 SF |
| Term | 1-10 Years |
| Rental Rate | Upon Request |
| Space Use | Office |
| Condition | Partial Build-Out |
| Available | Now |
The 6th floor of the Bay Adelaide Centre - West Tower, located at 333 Bay Street, Toronto, Ontario, offers a 3,960 sq. ft. built-out space available from March 1, 2025. This efficiently designed office space includes mechanical and electrical rooms, as well as washroom facilities for both men and women, ensuring convenience for tenants. The layout provides flexible use, ideal for companies seeking modern and well-equipped office space in a prestigious downtown location. The floor features multiple fire hose cabinets (FHC) and clear entry and exit points, prioritizing both safety and accessibility.
- Lease rate does not include utilities, property expenses or building services
- Partially Built-Out as Professional Services Office
- Mostly Open Floor Plan Layout
- Central Air and Heating
- 3,960 sq. ft. built-out space
- Available March 1, 2025
- Prime Bay Street location
7th Floor
| Size | 3,669 SF |
| Term | 1-10 Years |
| Rental Rate | Upon Request |
| Space Use | Office |
| Condition | Full Build-Out |
| Available | Pending |
The 7th floor of the Bay Adelaide Centre - West Tower, located at 333 Bay Street, Toronto, Ontario, offers a 3,669 sq. ft. built-out office space. This compact yet highly functional office features essential infrastructure, including mechanical and electrical rooms, along with washroom facilities for both men and women. The layout is designed for optimal use, with fire hose cabinets and stairways enhancing safety. This built-out space is well-suited for businesses looking for a smaller, ready-to-move-in office environment in a prime downtown Toronto location.
- Lease rate does not include utilities, property expenses or building services
- Fully Built-Out as Standard Office
- Mostly Open Floor Plan Layout
- Central Air and Heating
- 3,669 sq. ft. built-out office
- Ready-to-use functional space
- Located in Bay Street's financial hub
7th Floor, Ste 730
| Size | 7,647 SF |
| Term | 1-10 Years |
| Rental Rate | Upon Request |
| Space Use | Office |
| Condition | Partial Build-Out |
| Available | Now |
Office space available for lease on the 7th floor
- Lease rate does not include utilities, property expenses or building services
- Partially Built-Out as Standard Office
- Central Air and Heating
11th Floor
| Size | 5,183 SF |
| Term | 1-10 Years |
| Rental Rate | Upon Request |
| Space Use | Office |
| Condition | Partial Build-Out |
| Available | Pending |
The 11th floor of the Bay Adelaide Centre - West Tower, located at 333 Bay Street, Toronto, Ontario, offers a 5,183 sq. ft. built-out office space. This well-designed space includes multiple elevators and freight elevators for convenient vertical transportation, alongside strategically placed fire hose cabinets (FHC) for safety compliance. The layout is optimized for a variety of business needs, offering an ideal workspace in a prominent downtown Toronto address. This built-out space is perfect for companies seeking a move-in-ready environment in the heart of the financial district.
- Lease rate does not include utilities, property expenses or building services
- Partially Built-Out as Standard Office
- Mostly Open Floor Plan Layout
- Central Air and Heating
- 5,183 sq. ft. built-out space
- Freight elevators for convenience
- Located in downtown Toronto
12th Floor
| Size | 5,044 SF |
| Term | 1-10 Years |
| Rental Rate | Upon Request |
| Space Use | Office |
| Condition | Full Build-Out |
| Available | Now |
This well-designed space includes multiple elevators and freight elevators for convenient vertical transportation, alongside strategically placed fire hose cabinets (FHC) for safety compliance. The layout is optimized for a variety of business needs, offering an ideal workspace in a prominent downtown Toronto address. This built-out space is perfect for companies seeking a move-in-ready environment in the heart of the financial district.
- Lease rate does not include utilities, property expenses or building services
- Fully Built-Out as Standard Office
- Mostly Open Floor Plan Layout
- Central Air and Heating
12th Floor
| Size | 5,007 SF |
| Term | Negotiable |
| Rental Rate | Upon Request |
| Space Use | Office |
| Condition | Full Build-Out |
| Available | Now |
- Lease rate does not include utilities, property expenses or building services
- Fully Built-Out as Standard Office
- 6 Private Offices
- 1 Conference Room
16th Floor
| Size | 22,760 SF |
| Term | Negotiable |
| Rental Rate | Upon Request |
| Space Use | Office |
| Condition | Full Build-Out |
| Available | April 01, 2027 |
- Fully Built-Out as Standard Office
- Mostly Open Floor Plan Layout
18th Floor
| Size | 8,010 SF |
| Term | 1-10 Years |
| Rental Rate | Upon Request |
| Space Use | Office |
| Condition | Full Build-Out |
| Available | Now |
This well-designed space includes multiple elevators and freight elevators for convenient vertical transportation, alongside strategically placed fire hose cabinets (FHC) for safety compliance. The layout is optimized for a variety of business needs, offering an ideal workspace in a prominent downtown Toronto address. This built-out space is perfect for companies seeking a move-in-ready environment in the heart of the financial district.
- Lease rate does not include utilities, property expenses or building services
- Fully Built-Out as Standard Office
- Space is in Excellent Condition
- Central Air and Heating
27th Floor
| Size | 7,092 SF |
| Term | Negotiable |
| Rental Rate | Upon Request |
| Space Use | Office |
| Condition | Full Build-Out |
| Available | Now |
- Lease rate does not include utilities, property expenses or building services
- Fully Built-Out as Standard Office
- 12 Private Offices
- 4 Conference Rooms
- 6 Workstations
- Reception Area
27th Floor
| Size | 3,445 SF |
| Term | Negotiable |
| Rental Rate | Upon Request |
| Space Use | Office |
| Condition | Full Build-Out |
| Available | Now |
- Lease rate does not include utilities, property expenses or building services
- Fully Built-Out as Standard Office
- Mostly Open Floor Plan Layout
- 3 Private Offices
37th Floor
| Size | 9,095 SF |
| Term | 1-10 Years |
| Rental Rate | Upon Request |
| Space Use | Office |
| Condition | Full Build-Out |
| Available | Now |
This well-designed space includes multiple elevators and freight elevators for convenient vertical transportation, alongside strategically placed fire hose cabinets (FHC) for safety compliance. The layout is optimized for a variety of business needs, offering an ideal workspace in a prominent downtown Toronto address. This built-out space is perfect for companies seeking a move-in-ready environment in the heart of the financial district.
- Lease rate does not include utilities, property expenses or building services
- Fully Built-Out as Standard Office
- Central Air and Heating
PROPERTY OVERVIEW
Completed on-time and under-budget in June 2009, Bay Adelaide Centre is Toronto’s first LEED® Certified Core and Shell Gold high-rise office building. Bay Adelaide Centre is anchored by prestigious legal and accounting firms and is considered ‘the centre of business’ in Toronto, representing a new standard for premier "AAA" class commercial properties. Integrating past and present, Brookfield was the first developer to successfully incorporate the historic National Building façade at 347 Bay Street into the stunning design of a premier 51-storey office property.
- 24 Hour Access
- Bus Line
- Controlled Access
- Food Court
- Metro/Subway
- Property Manager on Site
- Security System
- Signage
- PATH
- Central Heating
- Air Conditioning
PROPERTY FACTS
SELECT TENANTS
- FLOOR
- TENANT NAME
- INDUSTRY
- 28th
- CIBC
- Finance and Insurance
- 14th
- Duff & Phelps
- Professional, Scientific, and Technical Services
- Multiple
- Fasken
- Professional, Scientific, and Technical Services
- 25th
- Filion Wakely Thorup Angeletti
- Professional, Scientific, and Technical Services
- 26th
- Fundserv
- Finance and Insurance
- Multiple
- Gluskin Sheff + Associates Inc.
- Finance and Insurance
- Multiple
- Goodmans LLP
- Professional, Scientific, and Technical Services
- Multiple
- KPMG LLP
- Professional, Scientific, and Technical Services
- 15th
- Medisys Health Group
- Health Care and Social Assistance
- Multiple
- Thomson Reuters
- Services
Presented by
Bay Adelaide West | 333 Bay St
Hmm, there seems to have been an error sending your message. Please try again.
Thanks! Your message was sent.






















