Log In/Sign Up
Your email has been sent.
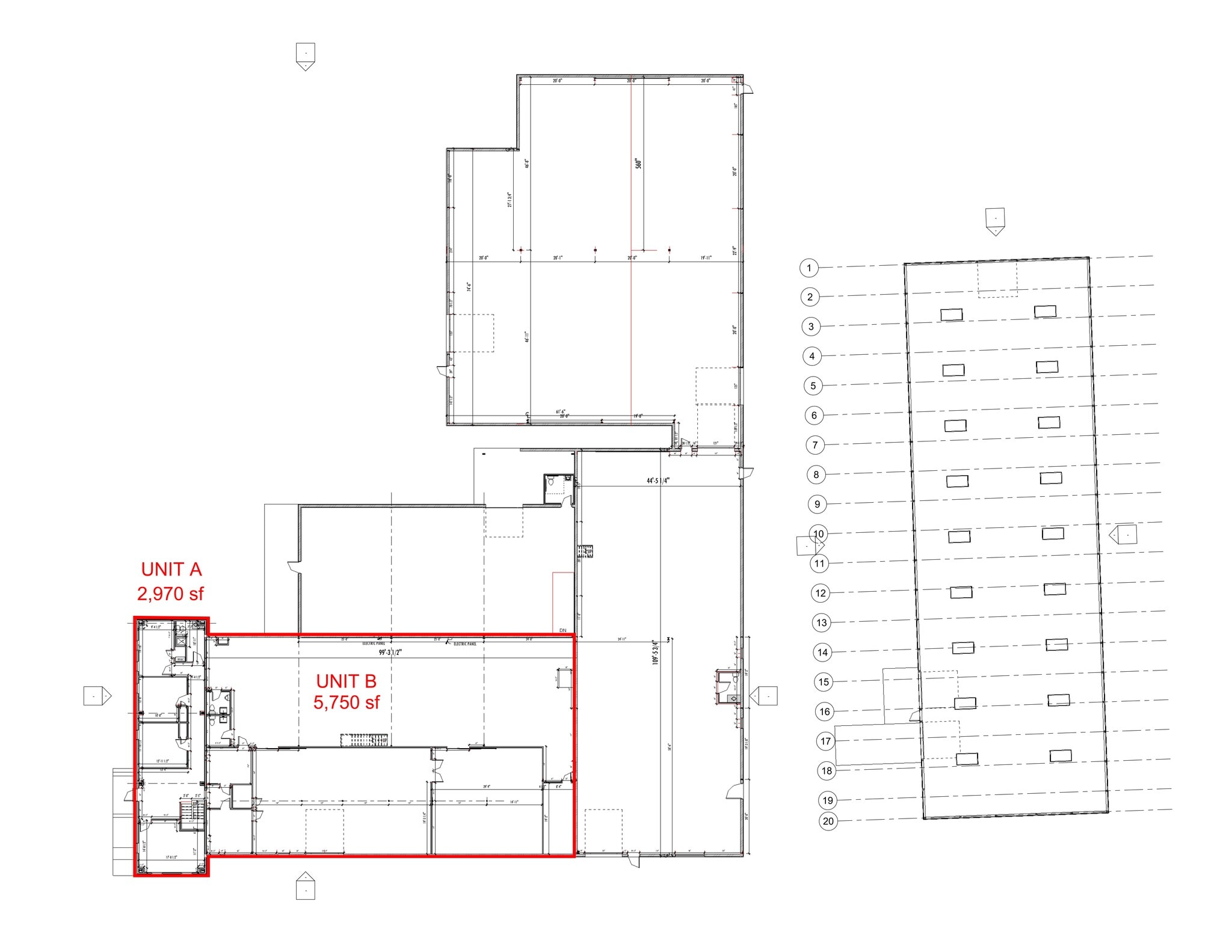
Industrial Station 335 Industrial Dr 8,720 SF of Industrial Space Available in Mount Juliet, TN 37122



Features
Drive In Bays
5
Exterior Dock Doors
4
Cross Docks
Yes
Standard Parking Spaces
53
All Available Space(1)
Display Rental Rate as
- Space
- Size
- Term
- Rental Rate
- Space Use
- Condition
- Available
Office/warehouse space combined. 2,970 SF is office space. 5,750 SF is industrial/warehouse space.
- Lease rate does not include certain property expenses
- 1 Loading Dock
- Includes 2,970 SF of dedicated office space
| Space | Size | Term | Rental Rate | Space Use | Condition | Available |
| 1st Floor - A/B | 8,720 SF | Negotiable | $15.00 /SF/YR $1.25 /SF/MO $130,800 /YR $10,900 /MO | Industrial | - | Now |
1st Floor - A/B
| Size |
| 8,720 SF |
| Term |
| Negotiable |
| Rental Rate |
| $15.00 /SF/YR $1.25 /SF/MO $130,800 /YR $10,900 /MO |
| Space Use |
| Industrial |
| Condition |
| - |
| Available |
| Now |
1 of 7
Videos
Matterport 3D Exterior
Matterport 3D Tour
Photos
Street View
Street
Map
1st Floor - A/B
| Size | 8,720 SF |
| Term | Negotiable |
| Rental Rate | $15.00 /SF/YR |
| Space Use | Industrial |
| Condition | - |
| Available | Now |
Office/warehouse space combined. 2,970 SF is office space. 5,750 SF is industrial/warehouse space.
- Lease rate does not include certain property expenses
- Includes 2,970 SF of dedicated office space
- 1 Loading Dock
Warehouse Facility Facts
Building Size
30,883 SF
Lot Size
3.57 AC
Year Built
1972
Construction
Metal
1 1
1 of 7
Videos
Matterport 3D Exterior
Matterport 3D Tour
Photos
Street View
Street
Map
1 of 1
Presented by
Industrial Station | 335 Industrial Dr
Already a member? Log In
Hmm, there seems to have been an error sending your message. Please try again.
Thanks! Your message was sent.
Your message has been sent!
Activate your LoopNet account now to track properties, get real-time alerts, save time on future inquiries, and more.



