Your email has been sent.
Citrus Tower 3390 University Ave 905 - 19,186 SF of 4-Star Office Space Available in Riverside, CA 92501



Highlights
- The property offers a Class A office environment in the center of Downtown Riverside.
- The building provides secure subterranean parking designed for daily tenant convenience.
- The tower is walking distance to key civic, legal, and government institutions.
- Tenants enjoy immediate access to the 91 Freeway for seamless regional connectivity.
- An enclosed outdoor terrace offers an inviting on-site amenity for occupant use.
- Numerous dining, retail, and service amenities surround the property.
All Available Spaces(5)
Display Rental Rate as
- Space
- Size
- Term
- Rental Rate
- Space Use
- Build-Out
- Available
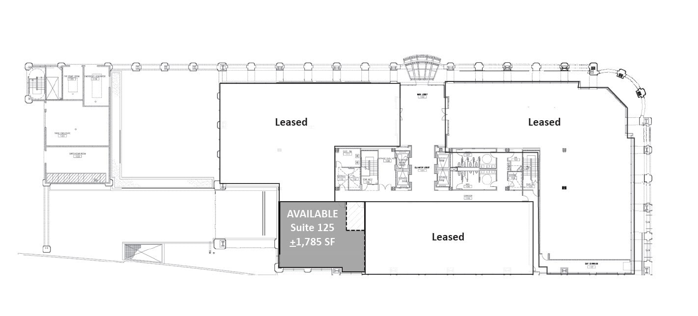
Suite 125 offers a shell configuration suited for users seeking the flexibility to design a highly customized layout. Positioned on the first floor, the suite provides convenient access to the main lobby and building circulation paths. Its open condition allows incoming tenants to shape office, conference, or reception areas according to their operational needs while benefiting from the building’s Class A setting and downtown amenities.
- Rate includes utilities, building services and property expenses
- Elevator Access
- Open-Plan
- Wheelchair Accessible
- First-floor suite with access
- Central Air and Heating
- After Hours HVAC Available
- Smoke Detector
- Shell layout ready for build
- Flexible configuration for users
Suite 350 features a combination of multiple private offices and open work areas, offering a balanced environment for collaborative and heads-down tasks. The suite is well positioned within the building, creating a functional and efficient layout for a variety of operational needs. With its mix of enclosed and open workspace, this suite supports groups requiring departmental separation, meeting areas, or future growth capacity while maintaining connectivity to building amenities and downtown conveniences.
- Rate includes utilities, building services and property expenses
- Mostly Open Floor Plan Layout
- Multiple offices with open space
- Ideal for blended operations
- Fully Built-Out as Standard Office
- Open-Plan
- Versatile layout for teams
Suite 470 includes multiple private offices paired with open area space, delivering a functional footprint for professional users who value both privacy and collaboration. Located on the fourth floor, the suite offers efficient circulation and access to shared building features. This configuration accommodates small teams, consulting practices, or service-based operations seeking a manageable and polished workspace within a prominent downtown tower.
- Rate includes utilities, building services and property expenses
- Office intensive layout
- Offices with open work zones
- Fourth-floor professional suite
- Fully Built-Out as Standard Office
- Print/Copy Room
- Functional layout for small teams
Suite 620 is a built-out office suite featuring defined workspace elements suited for small professional groups. Located on the sixth floor, the suite benefits from a thoughtfully planned footprint that includes workstation or office separation opportunities. Its size and configuration make it ideal for boutique firms or service providers seeking an efficient and polished environment within a Class A setting surrounded by downtown amenities.
- Rate includes utilities, building services and property expenses
- Mostly Open Floor Plan Layout
- Elevator Access
- Smoke Detector
- Open area with kitchen and large conference room.
- Fully Built-Out as Standard Office
- Central Air and Heating
- After Hours HVAC Available
- Wheelchair Accessible
- Can add a private office or two.
Suite 640 is a built-out sixth-floor suite that incorporates office space, conference room elements, reception features, and a coffee bar area as shown in the brochure’s plan. This configuration supports users seeking a turnkey environment with defined functional zones. The suite’s position and layout offer an elevated experience for tenants wanting a refined workspace within a well-amenitized downtown tower.
- Rate includes utilities, building services and property expenses
- 2 Private Offices
- Reception Area
- Conference and reception included
- Fully Built-Out as Standard Office
- 1 Conference Room
- Built-out suite with open area
- Two private offices
| Space | Size | Term | Rental Rate | Space Use | Build-Out | Available |
| 1st Floor, Ste 125 | 1,785 SF | 5-10 Years | $40.80 /SF/YR $3.40 /SF/MO $72,828 /YR $6,069 /MO | Office | Shell Space | Now |
| 3rd Floor, Ste 350 | 13,933 SF | 5-10 Years | $39.00 /SF/YR $3.25 /SF/MO $543,387 /YR $45,282 /MO | Office | Full Build-Out | Now |
| 4th Floor, Ste 470 | 1,384 SF | 5-10 Years | $40.80 /SF/YR $3.40 /SF/MO $56,467 /YR $4,706 /MO | Office | Full Build-Out | 30 Days |
| 6th Floor, Ste 620 | 905 SF | 5-10 Years | $40.80 /SF/YR $3.40 /SF/MO $36,924 /YR $3,077 /MO | Office | Full Build-Out | Now |
| 6th Floor, Ste 640 | 1,179 SF | 5-10 Years | $40.80 /SF/YR $3.40 /SF/MO $48,103 /YR $4,009 /MO | Office | Full Build-Out | 30 Days |
1st Floor, Ste 125
| Size |
| 1,785 SF |
| Term |
| 5-10 Years |
| Rental Rate |
| $40.80 /SF/YR $3.40 /SF/MO $72,828 /YR $6,069 /MO |
| Space Use |
| Office |
| Build-Out |
| Shell Space |
| Available |
| Now |
3rd Floor, Ste 350
| Size |
| 13,933 SF |
| Term |
| 5-10 Years |
| Rental Rate |
| $39.00 /SF/YR $3.25 /SF/MO $543,387 /YR $45,282 /MO |
| Space Use |
| Office |
| Build-Out |
| Full Build-Out |
| Available |
| Now |
4th Floor, Ste 470
| Size |
| 1,384 SF |
| Term |
| 5-10 Years |
| Rental Rate |
| $40.80 /SF/YR $3.40 /SF/MO $56,467 /YR $4,706 /MO |
| Space Use |
| Office |
| Build-Out |
| Full Build-Out |
| Available |
| 30 Days |
6th Floor, Ste 620
| Size |
| 905 SF |
| Term |
| 5-10 Years |
| Rental Rate |
| $40.80 /SF/YR $3.40 /SF/MO $36,924 /YR $3,077 /MO |
| Space Use |
| Office |
| Build-Out |
| Full Build-Out |
| Available |
| Now |
6th Floor, Ste 640
| Size |
| 1,179 SF |
| Term |
| 5-10 Years |
| Rental Rate |
| $40.80 /SF/YR $3.40 /SF/MO $48,103 /YR $4,009 /MO |
| Space Use |
| Office |
| Build-Out |
| Full Build-Out |
| Available |
| 30 Days |
1st Floor, Ste 125
| Size | 1,785 SF |
| Term | 5-10 Years |
| Rental Rate | $40.80 /SF/YR |
| Space Use | Office |
| Build-Out | Shell Space |
| Available | Now |
Suite 125 offers a shell configuration suited for users seeking the flexibility to design a highly customized layout. Positioned on the first floor, the suite provides convenient access to the main lobby and building circulation paths. Its open condition allows incoming tenants to shape office, conference, or reception areas according to their operational needs while benefiting from the building’s Class A setting and downtown amenities.
- Rate includes utilities, building services and property expenses
- Central Air and Heating
- Elevator Access
- After Hours HVAC Available
- Open-Plan
- Smoke Detector
- Wheelchair Accessible
- Shell layout ready for build
- First-floor suite with access
- Flexible configuration for users
3rd Floor, Ste 350
| Size | 13,933 SF |
| Term | 5-10 Years |
| Rental Rate | $39.00 /SF/YR |
| Space Use | Office |
| Build-Out | Full Build-Out |
| Available | Now |
Suite 350 features a combination of multiple private offices and open work areas, offering a balanced environment for collaborative and heads-down tasks. The suite is well positioned within the building, creating a functional and efficient layout for a variety of operational needs. With its mix of enclosed and open workspace, this suite supports groups requiring departmental separation, meeting areas, or future growth capacity while maintaining connectivity to building amenities and downtown conveniences.
- Rate includes utilities, building services and property expenses
- Fully Built-Out as Standard Office
- Mostly Open Floor Plan Layout
- Open-Plan
- Multiple offices with open space
- Versatile layout for teams
- Ideal for blended operations
4th Floor, Ste 470
| Size | 1,384 SF |
| Term | 5-10 Years |
| Rental Rate | $40.80 /SF/YR |
| Space Use | Office |
| Build-Out | Full Build-Out |
| Available | 30 Days |
Suite 470 includes multiple private offices paired with open area space, delivering a functional footprint for professional users who value both privacy and collaboration. Located on the fourth floor, the suite offers efficient circulation and access to shared building features. This configuration accommodates small teams, consulting practices, or service-based operations seeking a manageable and polished workspace within a prominent downtown tower.
- Rate includes utilities, building services and property expenses
- Fully Built-Out as Standard Office
- Office intensive layout
- Print/Copy Room
- Offices with open work zones
- Functional layout for small teams
- Fourth-floor professional suite
6th Floor, Ste 620
| Size | 905 SF |
| Term | 5-10 Years |
| Rental Rate | $40.80 /SF/YR |
| Space Use | Office |
| Build-Out | Full Build-Out |
| Available | Now |
Suite 620 is a built-out office suite featuring defined workspace elements suited for small professional groups. Located on the sixth floor, the suite benefits from a thoughtfully planned footprint that includes workstation or office separation opportunities. Its size and configuration make it ideal for boutique firms or service providers seeking an efficient and polished environment within a Class A setting surrounded by downtown amenities.
- Rate includes utilities, building services and property expenses
- Fully Built-Out as Standard Office
- Mostly Open Floor Plan Layout
- Central Air and Heating
- Elevator Access
- After Hours HVAC Available
- Smoke Detector
- Wheelchair Accessible
- Open area with kitchen and large conference room.
- Can add a private office or two.
6th Floor, Ste 640
| Size | 1,179 SF |
| Term | 5-10 Years |
| Rental Rate | $40.80 /SF/YR |
| Space Use | Office |
| Build-Out | Full Build-Out |
| Available | 30 Days |
Suite 640 is a built-out sixth-floor suite that incorporates office space, conference room elements, reception features, and a coffee bar area as shown in the brochure’s plan. This configuration supports users seeking a turnkey environment with defined functional zones. The suite’s position and layout offer an elevated experience for tenants wanting a refined workspace within a well-amenitized downtown tower.
- Rate includes utilities, building services and property expenses
- Fully Built-Out as Standard Office
- 2 Private Offices
- 1 Conference Room
- Reception Area
- Built-out suite with open area
- Conference and reception included
- Two private offices
Property Overview
Citrus Tower is a modern Class A office destination situated in the heart of historic Downtown Riverside, offering a refined professional environment with strong regional connectivity. The six-story tower features prominent freeway-visible signage and immediate access to the 91 Freeway, ensuring exceptional visibility and convenience for tenants and visitors. The property benefits from secure subterranean parking, an outdoor terrace designed for tenant use, and proximity to an array of restaurants, retail amenities, hotels, entertainment venues, and business services. Its walkable location places occupants steps from key civic and governmental institutions including the state and federal courts, administrative centers, the convention center, and a major regional hospital. With its polished architecture, prominent presence, and central downtown positioning, Citrus Tower provides an elevated workplace experience designed to support professional firms, service providers, and organizations seeking a high-quality office setting within Riverside’s established commercial core.
- Courtyard
- Signage
- Air Conditioning
Property Facts
Presented by
Citrus Tower | 3390 University Ave
Hmm, there seems to have been an error sending your message. Please try again.
Thanks! Your message was sent.









